




Vente Local d'activité 3 615 m²
91000 Évry
3 615 m²
Divisible dès 860 m²
à partir de 1 419 000 €
HT/HD
Disponibilité : 18 mois après accord

Romain LENOBLE
Description
EVRY COURCOURONNES - A VENDRE
BNP PARIBAS REAL ESTATE vous propose, à Evry Courcouronnes, ,des lots d'activité à l'acquisition.
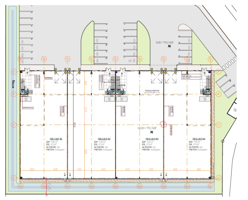
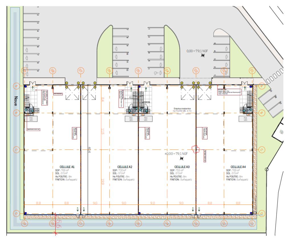
BNP PARIBAS REAL ESTATE vous propose, à l'acquisition, des locaux d'activité avec bureaux d'accompagnement d'une surface de 3 615 m² divisible à partir de 860 m².
Le bâtiment offre de grands plateaux permettant une grande flexibilité d'aménagement, un accès aux véhicules légers/lourds et de nombreuses autres services et prestations techniques. Ces locaux bénéficient d'une accessibilité remarquable dans un environnement tertiaire et dynamique.
Accessibilité :
- Accès routiers : N107; N7;A6
- RER D : Bras de fer - Evry - Genopôle
- Bus 401 - 404 : Pasteur
Services/prestations
- Charge au sol RDC : 3t/m²
- Porte d'accès plain pied : 4x4,5m
- Hauteur libre : 8m et 4,50m sous mezzanine
- Site clôturé et sécurisé
- Sécurité : portail coulissant motorisé - interphone
Pour toute information complémentaire, n'hésitez pas à prendre contact avec nos consultants BNP PARIBAS REAL ESTATE.
Services & prestations
Hauteurs
-
Hauteur libre : 8,00 mètre(s) et 4,50 m sous mezzanine
Equipements
-
Charge au sol Rdc : 3,00 tonne(s)/m²
-
Eclairage intérieur : Industriel de 250 lux moyen
-
Porte d'accès plain-pied : 4 x 4,5 m
-
Puissance électrique : Tarif Bleu ou jaune selon les cellules
-
Sols du bâtiment : Béton
-
Source chauffage : Gaz
-
Type de chauffage : Individuel aérotherme indépendant
Type / Etat du bâtiment
-
Etat du terrain : Voirie lourde pour les aires de manoeuvre et de circulation
Structure du bâtiment
-
Murs : Parpaings de 20 cm pour les mitoyens
Prestations de service
-
Parking
-
Sécurité : Portail coulissant motorisé - interphone
Extérieurs
-
Terrasses - jardins : Plantations d’espèces indigènes variées
Normes, Certifications et Labels
-
Certification : BREEAM
Informations complémentaires
-
Contre bardage intérieur blanc










