




Vente Local d'activité 772 m²
94260 Fresnes
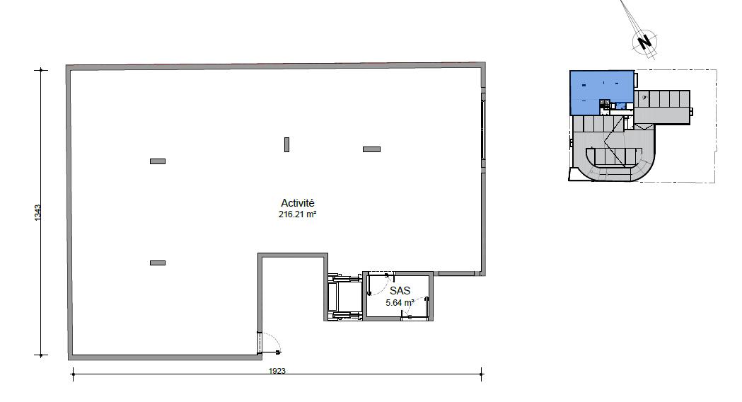
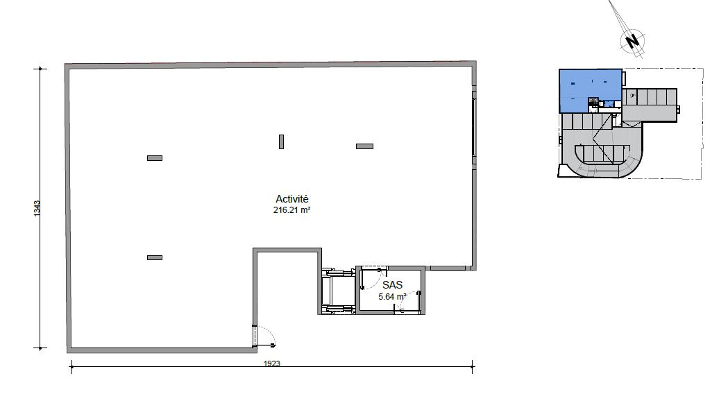
772 m²
3 010 000 €
HT/HD
Disponibilité : 12 mois après accord

Paul SCHAMING
Description
A VENDRE
(FRESNES)
BNP PARIBAS REAL ESTATE vous propose un bâtiment d'activité à vendre à FRESNES
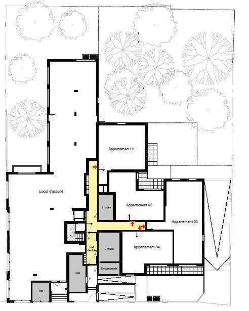
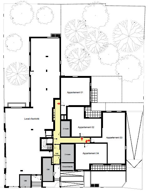
BNP PARIBAS REAL ESTATE vous propose, à la vente, un bâtiment d'activité neuf d’une surface de 772 m².
Ce bâtiment neuf offre de grands plateaux permettant une grande flexibilité d'aménagement et de nombreux autres services et prestations techniques. Ces locaux bénéficient d’une accessibilité remarquable dans un environnement tertiaire et dynamique.
Accessibilité :
- Dessertes routières : A86, A6
- RER B : LA CROIX DE BERNY
- Bus : N62- BERNY
Pour toute information complémentaire, n'hésitez pas à prendre contact avec nos consultants BNP PARIBAS REAL ESTATE.
Services & prestations
Type / Etat du bâtiment
-
Etat de l'immeuble : Neuf
-
Etat du terrain : Goudronné










