


Le 843
843 Avenue de la République
59700 Marcq-en-Baroeul
984 m²
245 €
HT/HC/m²/an
Disponibilité : 30/06/2027

Benjamin GOUSSET
Description
Bureaux à louer sur l'Avenue de la République de Marcq-en-Barœul.
Nouveau programme de bureaux, situé à Marcq-en-Baroeul – 843 avenue de la République
BNPPRE Présente : A LOUER Nouveau Programme de Bureaux à Marcq-en-Baroeul
Adresse : 843 Avenue de la République, Marcq-en-Baroeul
BNPPRE est fier de vous présenter ce nouveau programme immobilier de bureaux, idéalement situé au coeur de Marcq-en-Baroeul. Conçu pour répondre aux besoins des entreprises locales et des acteurs économiques de la région, ce projet offre des espaces de travail modernes et fonctionnels.
Caractéristiques Clés :
Emplacement Stratégique : Situé sur l'avenue de la République, ce projet bénéficie d'une accessibilité exceptionnelle. Il est directement connecté aux principaux axes routiers de la métropole lilloise, facilitant un accès rapide au centre-ville de Lille et aux grands pôles économiques environnants.
Transports en Commun : Station de Tramway "BUISSON" à 270 m, gare Lille flandres à 10 minutes en tramway, station V'Lille "Buisson" à moins de 100 mètres. Le HUB des Gares de Lille est accessible en seulement 12 minutes à vélo.
Innovation et Qualité : Ce développement allie innovation, qualité de construction et respect des normes environnementales actuelles, offrant un cadre de travail idéal pour les entreprises soucieuses de leur impact écologique.
Délais de Réalisation :
Démarrage des travaux : mars/avril 2025
Livraison prévisionnelle : T3 2026
Bureaux à louer Marcq-en-Baroeul
Immobilier d'entreprise Lille
Espaces de travail modernes
Accessibilité bureaux Lille
Développement immobilier durable
Emplacement stratégique Marcq-en-Baroeul
Transports en commun Lille
BNPPRE nouveaux projets
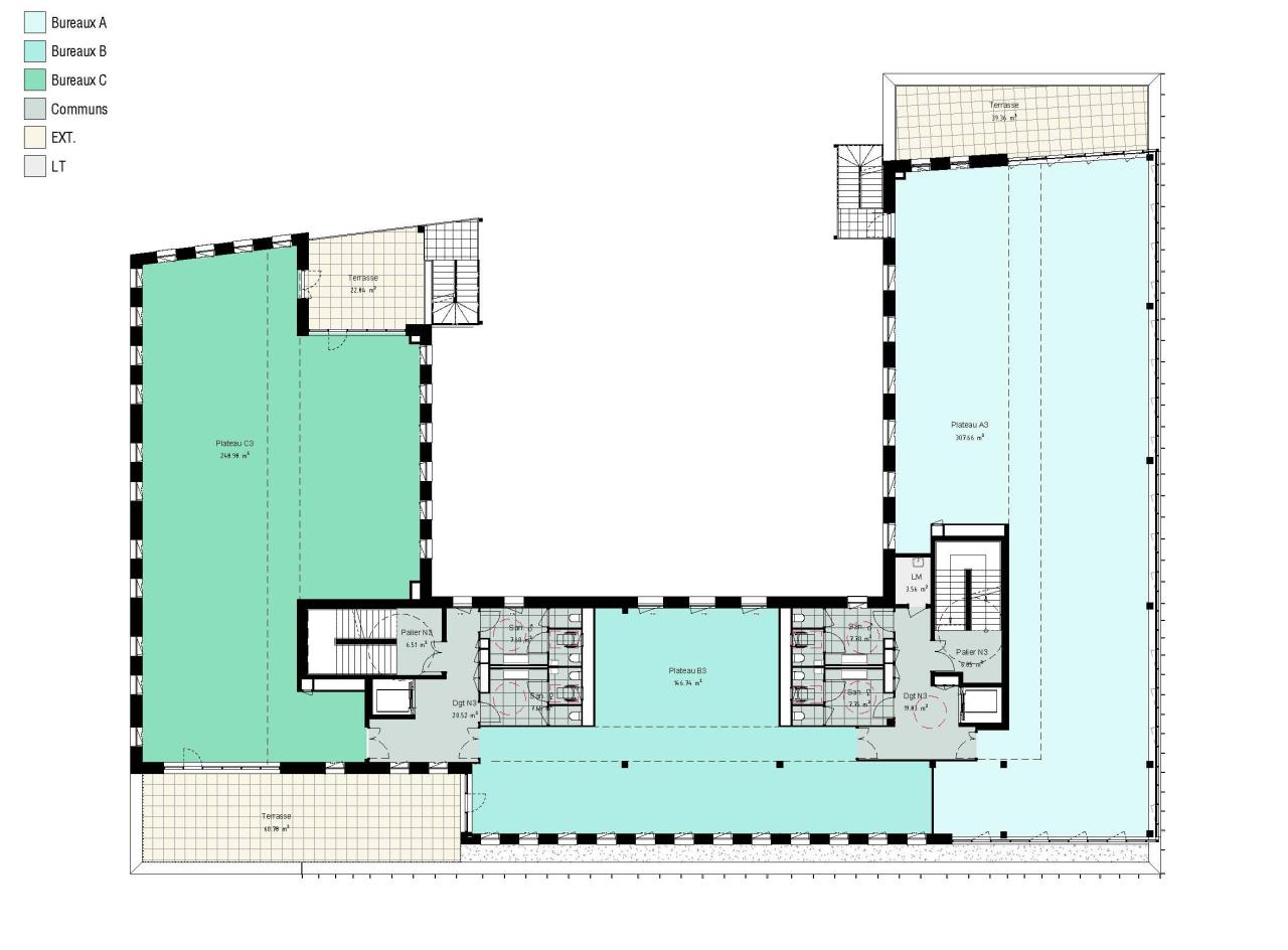
D'autres plateaux sont disponibles dans cet immeuble, n'hésitez pas à nous contacter pour en échanger !
Services & prestations
Prestations de service
-
Parking : 57 Places
Type / Etat du bâtiment
-
Etat des locaux : Rénové Uniquement les parties communes










