




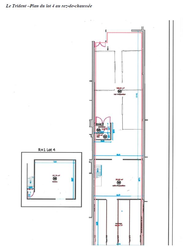
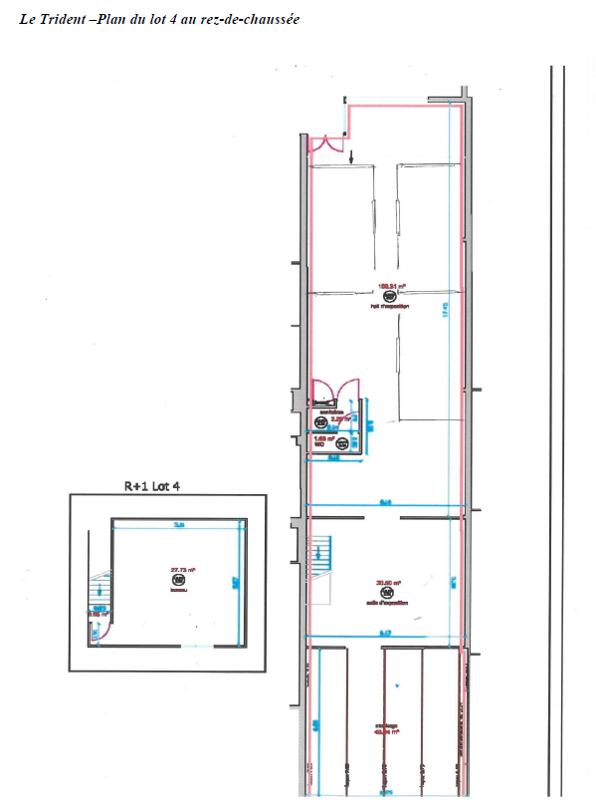
Location Local d'activité 209 m²
34130 Mauguio
209 m²
110 €
HT/HC/m²/an
Disponibilité : 1 mois après accord

Rodolphe CHEVALLIER
Description
MONTPELLIER EST - FREJORGUES OUEST - LE TRIDENT - LOCAUX À LOUER
A louer, local d'activité d'une surface de 209 m² environ situés dans la zone de Fréjorgues Ouest, au sein de l'immeuble LE TRIDENT.
Les caractéristiques :
- Climatisation réversible
- Partie bureaux et tisanerie
- Chauffage Pompe à chaleur
- Belle visibilité depuis la 4 voies menant à la mer.
- Parkings extérieurs
Disponibilité : Rapide, un mois après accord
Véritables vitrines commerciales, les parcs d'activités de Fréjorgues Est et Ouest sont situés sur la commune de
Mauguio. Grâce à sa position stratégique au sein de l'air urbaine montpelliéraine, Fréjorgues attire de nombreuses enseignes nationales et internationales qui viennent y trouver une forte visibilité auprès des habitants des communes limitrophes de Montpellier qui y passent quotidiennement mais également des nombreux salariés présents sur les parcs avoisinants (parc de l'aéroport, Port Marianne, PIOM) Ce sont plus de 400 entreprises qui se sont installées sur les 67 hectares qui composent ce parc d'activité. À quelques minutes de l'autoroute A9, de l'aéroport et de la gare TGV, les parcs de Fréjorgues sont facile d'accès.
Accessibilités :
- Autoroutes A9/A709 à 5 minutes
- Gare Saint Roch à 20 minutes
- Gare Sud de France à 5 minutes
- Aéroport Montpellier Méditerranée à 5 minutes
Services & prestations
Equipements
-
Climatisation : Réversible
-
Type de chauffage : Pompe à chaleur
Type / Etat du bâtiment
-
Etat de l'immeuble : Etat d'usage
-
Etat des locaux : Etat d'usage
Aménagements
-
Accès Pers. Mobilité Réduite
Informations complémentaires
-
Accès Pers. Mobilité Réduite : En étude










