




Zone de Fret Eurogare, 34130, MAUGUIO, France
34130 Mauguio
7 162 m²
Divisible dès 946 m²
à partir de 110 €
HT/HC/m²/an
Disponibilité : Nous consulter

Caroline DE BOISGELIN-ABECASSIS
Description
MONTPELLIER EST - FREJORGUES EST/VAUGUIERES LE HAUT - ZONE DE FRET AÉROPORTUAIRE - A LOUER
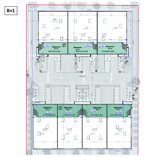
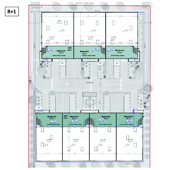
A louer au sein de la Zone de Fret de l'aéroport de Montpellier, secteur Fréjorgues Est, locaux d'activité neufs d'une surface totale de 7 162 m², divisibles à partir de 949 m².
Situé à au sein de la Zone d'Activités Fréjorgues Est, locaux d'activités neufs de 7 162 m² divisibles à partir de 949 m², répartis sur 2 bâtiments.
Le premier bâtiment de 3 309 m² est composé de 2 641 m² d'entrepôt et de 668 m² de mezzanine. Le second bâtiment de 3 853 m² est constitué de 3 054 m² d'entrepôt et de 799 m² de mezzanine. Terrain clos et bitumé de 12 000 m².
Ces locaux bénéficient d'une excellente localisation avec son accès direct à l'aéroport international de Montpellier.
Panneaux photovoltaïque en toiture.
AOT de 43 ans.
ACCESSIBILITES :
- Aéroport(s) : Montpellier Med à 1 min
- Gare : Gare TGV Sud de France à 5 min
- Autre(s) desserte(s) : Gare TGV Saint Roch à 20 min
- Desserte(s) routière(s) : A9 à 15 min
- Bus : Navette n°620 reliant Aéroport à Odysséum
Services & prestations
Hauteurs
-
Hauteur sous poutre : 8,00 mètre(s)
-
Hauteur sous-plafond : 2,70 mètre(s)
Accès véhicules
-
Accessibilité type véhicules : Tous porteurs
Equipements
-
Charge au sol Rdc : 3,00 tonne(s)/m²
-
Eclairage intérieur : Led + skydome en toiture
-
Faux plafond
-
Plinthes techniques périphériques : électrique en PVC
Type / Etat du bâtiment
-
Etat du terrain : Clos et bitumé
-
Immeuble indépendant
Structure du bâtiment
-
Couverture : Bac acier isolé
-
Murs : Bardage double peau
Prestations de service
-
Parking
Aménagements
-
Aménagement des bureaux : Espaces Ouverts
Informations complémentaires
-
7 Accès de plain-pied (4 m H x 3 m L), Climatisation double flux sur la partie Mezzanine, Structure en béton ou mixte bois lamellé-collé / béton
-
7 Accès à quai, Centrale voltaïque en toiture (revente à fournisseur)
-
Alimentation en tarif jaune, Chauffage entrepôt pour maintien hors-gel










