




Location Bureau 928 m²
67960 Entzheim
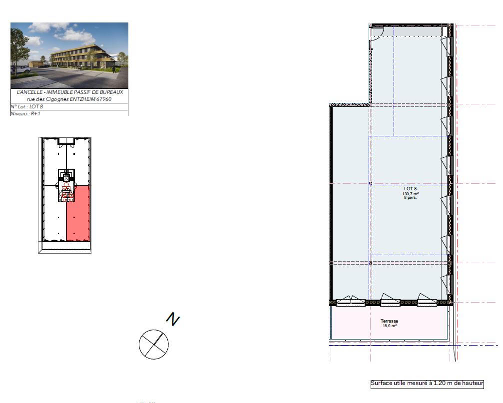
928 m²
Divisible dès 140 m²
à partir de 160 €
HT/HC/m²/an
Disponibilité : 23 mois après accord

Nalan KOLAT
Description
BUREAUX SYMBIOSE - A LOUER- STRASBOURG- ENTZHEIM
Réf OLBUR2604524
A LOUER Programme neuf à construire à Entzheim: un immeuble de bureaux en R+2, d'une surface totale d'environ 1511 m², disposant de surfaces en espace paysagé, prêt à être cloisonné selon votre besoin, de 95 m² à 586 m² environ, situées en RDC et au R+2. Aux normes PMR, certifié Bâtiment Basse Consommations pour une faible consommation en énergie & fluides. Terrasses, grand parking extérieur, l'arrêt de bus à 1 min de marche et divers services et commerces à proximité immédiate, complètent l'offre. Frais de déménagement jusqu'à 3000 € HT offert pour toute signature avant 09/2026.
Programme neuf de BUREAUX à construire à LOUER: Bâtiment Basse Consommation, Le SYMBIOSE sera situé au sud d'Eurométropole de STRASBOURG, proche l'aéroport d'ENTZHEIM, une zone d'activité dynamique située à seulement 20 minutes en voiture du centre-ville de STRASBOURG et à 3 mn de l'Aéroport de STRASBOURG ENTZHEIM. Une navette TER permet de rallier l'Aéroport de STRASBOURG à la Gare TGV de STRASBOURG en moins de 8 minutes. Les navettes de BUS de la ligne 12 sont également mises en place pour une desserte optimale de la zone. Le site est situé à la sortie de l'AUTOROUTE A35. Plus de 300 entreprises, ce qui représente plus de 2 000 salariés, ont fait le choix de s'implanter sur ce parc éco-responsable. Le parc est doté de services pour les usagers tels que restaurants, hôtels, et crèches .Les informations sur les risques auxquels ce bien est exposé sont disponibles sur le site Géorisques : www.georisques.gouv.fr
Consultez BNP PRE pour plus d'information et une visite !
Services & prestations
Aménagements
-
Accueil : Espace d'attente
-
Hall d'accueil : Collectif
-
Sanitaires : Parties communes
Equipements
-
Ascenseurs : 1
-
Climatisation : Réversible
-
Eclairage Bureaux : LED
-
Faux plafond : Dal. fibres minéral.
-
Fenêtres : Double vitrage
-
Sol bureaux : Moquette Dalles de moquette 50x50cm
Prestations de service
-
Parking : Places à l'extérieur
Type / Etat du bâtiment
-
Etat de l'immeuble : Neuf
Informations complémentaires
-
Hôtels et restaurants à proximité










