




Avenue Nina Simone
34000 Montpellier
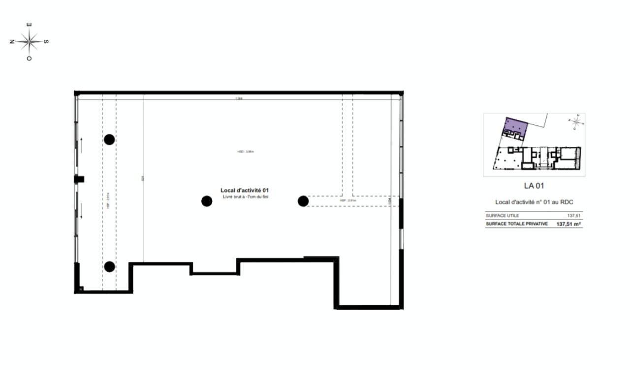
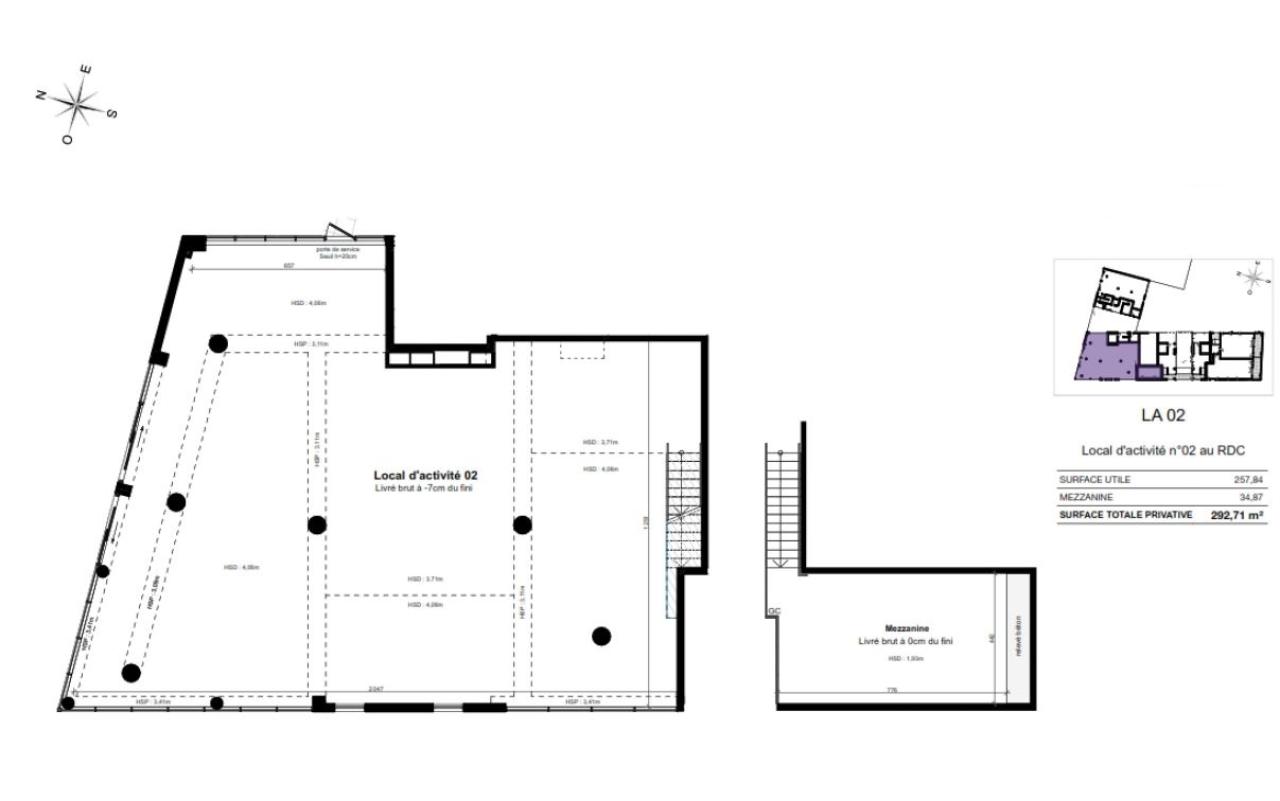
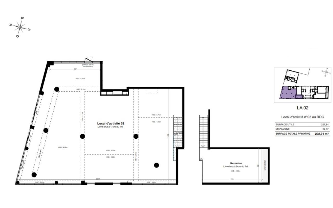
430 m²
Divisible dès 92 m²
à partir de 258 720 €
HT/HD
Disponibilité : 30/06/2026

Rodolphe CHEVALLIER
Description
MONTPELLIER EST - HIPPOCRATE - ORION SKY - LOCAL COMMERCIAL DERNIERS LOTS A VENDRE
A vendre secteur Est au sein du quartier Hippocrate, en plein essor, derniers locaux commerciaux disponibles sur Orion Sky, d'une surface de 137 m² et 292 m² divisibles en deux cellules de 92 m² et 163 m².
A l'Est de Montpellier, dans le quartier Hippocrate, au centre des quartiers Odysseum et Port Marianne, nous vous proposons ces derniers locaux commerciaux disponibles à la vente dans l'immeuble ORION SKY, de surfaces de 137 m² et 292 m².
Possibilité de diviser le local de 292 m² en 2 cellules de 92,4 m² et 163,7 m².
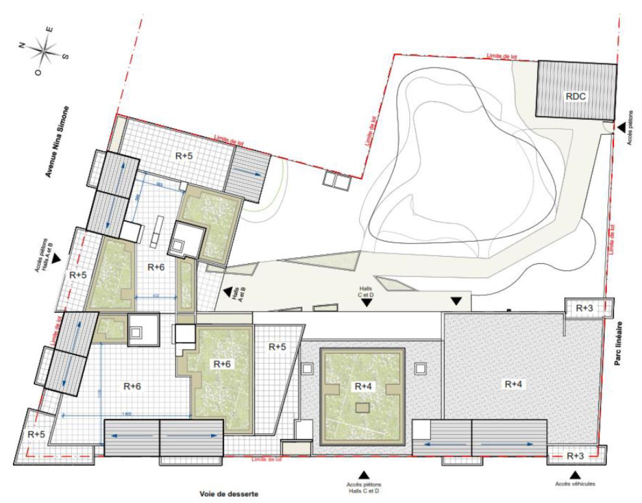
Belles hauteurs sous plafond, mezzanines ou possibilité de mezzanine. Visibilité d'angle sur l'avenue Nina Simone, axe majeur du quartier Hippocrate.
Les locaux disposeront d'une visibilité sur l'avenue Nina Simone et de prestations qualitatives : une architecture rythmée mêlant métal, bois et enduit blanc. Deux porches traversants ouverts sur un coeur d'îlot paysager.
L'emplacement de cet immeuble permet aux utilisateurs de profiter de nombreux services comme : une crèche, restauration, équipements sportifs et culturels, commerces et hôtellerie.
L'immeuble est idéalement situé, sur un emplacement stratégique, proche de toutes commodités : transports, axes routiers et autoroutiers, commerces et services ainsi que le Centre Commercial Odysseum.
La ZAC Hippocrate regroupe plus de 1 000 emplois, et s'étend sur une surface de 7 ha.
Ce versant de la ville est amené à muter grâce au pôle commercial et aux réseaux de transport (qui s'étendront très prochainement). Cette zone s'inscrira dans la continuité du quartier Port Marianne : elle prolongera son parc. La ZAC Hippocrate sera bien desservie (transports en commun, desserte routière, promenade intérieure ouverte aux vélos).
La rue du Mas de Barlet, désormais élargie, deviendra l'axe le plus important de la zone puisqu'il devrait lier les quartiers Hippocrate et Port Marianne à celui de la gare Sud de France.
Livraison T2 2026 !
Accessibilités :
Tramway L1 - Arrêt "Millénaire" et L3 - Arrêt "Pablo Picasso" à 4 min
A709 à 5 minutes
Gare Montpellier Saint Roch à 9 minutes
Gare Sud de France à 4 minutes
Aéroport de Montpellier à 10 min
Pour plus d'informations, contactez nous dès maintenant !
Services & prestations
Aménagements
-
Mezzanine : Pour le lot 02
Normes, Certifications et Labels
-
Catégorie ERP : 5
Informations complémentaires
-
Livrés brut, Livrés brut de béton, fluides en attentes










