




Location Bureau 326 m²
34000 Montpellier
326 m²
185 €
HT/HC/m²/an
Disponibilité : 09/03/2026

Rodolphe CHEVALLIER
Description
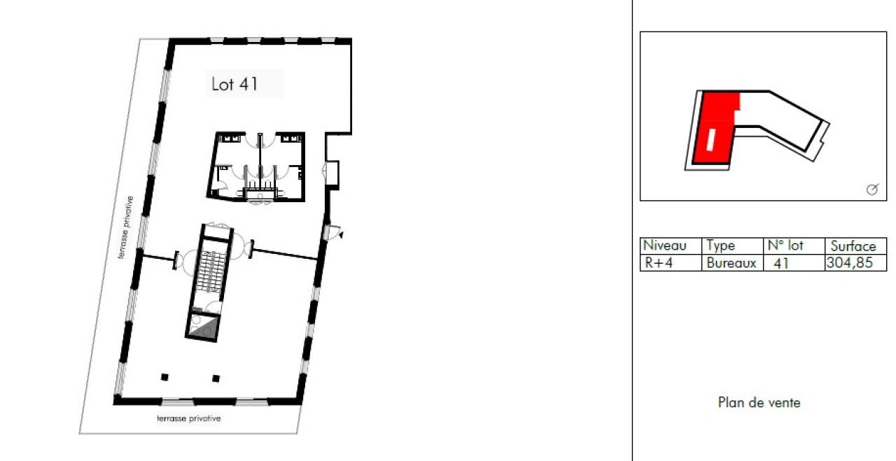
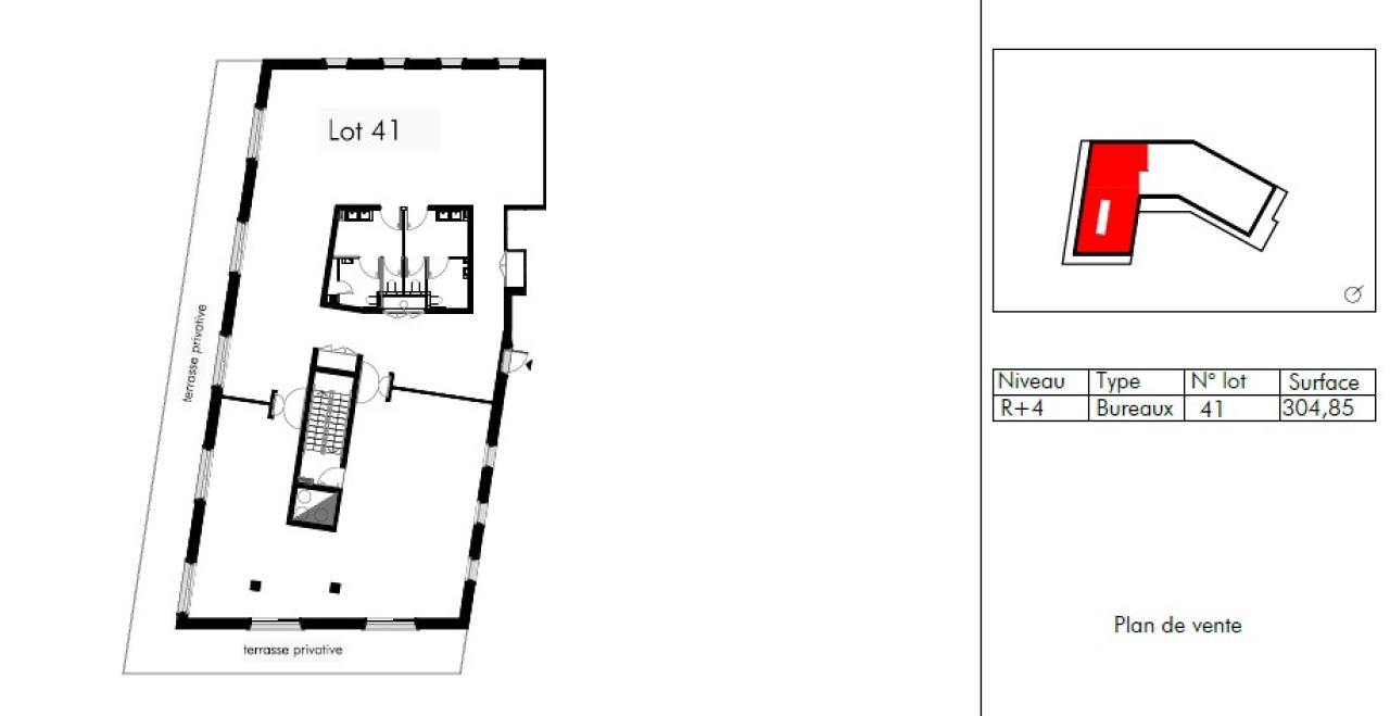
MONTPELLIER EST - A LOUER - HIPPOCRATE - WEKO - LOT EN R+4
Nous vous proposons à la location des bureaux neuf d'une surface de 325m² environ, dans le nouveau quartier Hippocrate, à l'Est de Montpellier.
MONTPELLIER EST - A LOUER - HIPPOCRATE - WEKO - LOT EN R+4
A l'Est de Montpellier, dans le quartier Hippocrate, au centre des quartiers Odysseum et Port-Marianne, nous vous proposons des bureaux neuf d'une surface de 325m² environ, à la location au R+4 de l'immeuble WEKO.
Ces bureaux climatisés disposeront de prestations qualitatives : un hall d'accueil collectif, des éclairages en pavé LED et 2 ascenseurs .
Le lot comprend également 3 places de parking intérieur et 1 place de parkings moto. Mise à disposition d'un local à vélo.
Cet Immeuble certifié BREEAM - BDO niveau Or bénéficie d'un coeur d'ilot arboré où la végétation est omniprésente au sol et grimpante aux façades se prolongeant jusqu'aux terrasses et coursives.
L'emplacement de cet immeuble permet aux utilisateurs de profiter de nombreux services comme : une crèche, restauration, équipements sportifs et culturels, commerces et hôtellerie et de profiter d'un environnement de travail sain et confortable avec des matériaux biosourcés.
Livraison au T1 2026.
L'immeuble est idéalement situé, sur un emplacement stratégique, proche de toutes commodités : transports, axes routiers et autoroutiers, commerces et services ainsi que le Centre Commercial Odysseum.
La ZAC Hippocrate regroupe plus de 1 000 emplois, et s'étend sur une surface de 7 ha.
Ce versant de la ville est amené à muter grâce au pôle commercial et aux réseaux de transport (qui s'étendront très prochainement). Cette zone s'inscrira dans la continuité du quartier Port Marianne : elle prolongera son parc. La ZAC Hippocrate sera bien desservie (transports en commun, desserte routière, promenade intérieure ouverte aux vélos).
La rue du Mas de Barlet, désormais élargie, deviendra l'axe le plus important de la zone puisqu'il devrait lier les quartiers Hippocrate et Port Marianne à celui de la gare Sud de France.
Accessibilités :
Bus Lignes 9 et 10 à 300 m
Tramway Ligne 1 arrêt 'Millénaire' à 200 m et Ligne 3 arrêt 'Pablo Picasso' à 600 m
Gare TGV Sud de France à 10 min
Aéroport Montpellier Méditerranée à 12 min
Gare Saint-Roch à 15 min
Services & prestations
Aménagements
-
Aménagement des bureaux : Espaces Ouverts
-
Hall d'accueil : Collectif
-
Sanitaires : Parties communes
Equipements
-
Ascenseurs : 2
-
Charge au sol Etage : 350 kg/m² avec zones archives et réunion
-
Charge au sol Rdc : 500 kg/m²
-
Distribution climatisation : Ventilo convecteur en plafonnier
-
Eclairage Bureaux : LED
-
Faux plafond : Dal. fibres minéral.
-
Fenêtres : Aluminium
-
Production climatisation : Réseau urbain
-
Sols du bâtiment : Béton
Hauteurs
-
Hauteur sous-plafond : 2,70 mètre(s)
Prestations de service
-
Fitness : A proximité
-
Parking : Publics Odysseum/Circé à proximité
-
Restauration : A proximité
-
Sécurité : Vidéo-surveillance et digicode
Extérieurs
-
Terrasses - jardins : Terrasses et cœur d'ilot
Normes, Certifications et Labels
-
Certification : BREEAM
-
Label cible : BDO niveau Or
Type / Etat du bâtiment
-
Etat de l'immeuble : Neuf
-
Etat des locaux : Neuf
Informations complémentaires
-
Charges sol rdc : 500 kg/m², Equipements sportifs et culturels, Isolation thermique
-
Charges au sol étage : 350 kg/m² archives et réunion incluses, Commerces, Hôtellerie
-
Charges sous-sol : 250 kg/m², Stationnement vélos / douches et vestiaires










