




NOTASIE
20 Allée de Boutaut
33300 Bordeaux
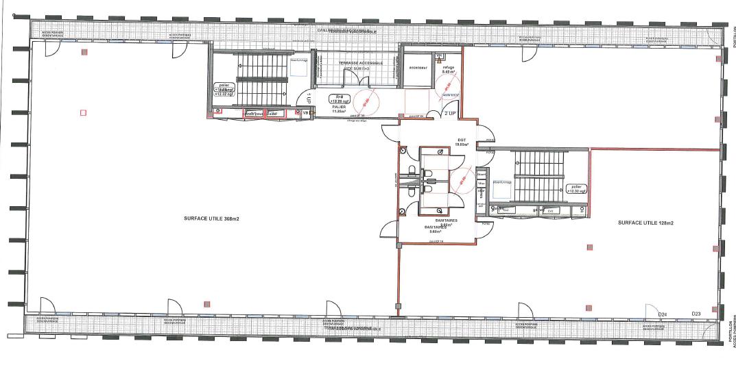
1 271 m²
Divisible dès 234 m²
à partir de 160 €
HT/HC/m²/an
Disponibilité : Immédiate

Maxence DUMONT
Description
Bureaux à louer Bordeaux Ravezies – Immeuble NOTASIE à proximité immédiate du tramway
Au sein d'un immeuble récent, BNP Paribas Real Estate vous proposons des bureaux rénovés, climatisés, lumineux, et fonctionnels. A proximité de la place Ravezies et au pied de l'arrêt du Tramway Ravezies, la localisation et la visibilité sont des véritables atouts pour cet immeuble.
BNP Paribas Real Estate vous propose à la location un immeuble de bureaux récent situé au coeur du quartier Ravezies, à l'ouest de Bordeaux. Idéalement implanté au pied de la place Ravezies, l'immeuble bénéficie d'une excellente accessibilité et d'un environnement tertiaire dynamique, avec la proximité immédiate des transports, des commerces et des services.
Un immeuble fonctionnel et lumineux
Le bâtiment développe une surface d'environ 1 900 m², répartie entre une agence commerciale en rez-de-chaussée et trois étages de bureaux aménagés.
Prestations proposées :
Bureaux cloisonnés et open space
Salle de réunion et cuisine
Climatisation double flux
Fibre optique
Ascenseur
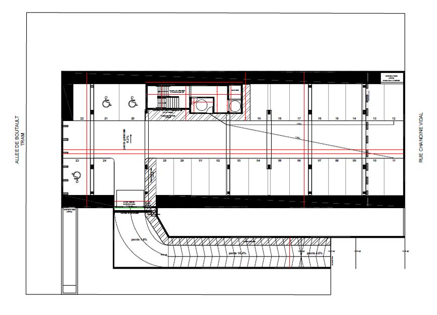
Accès PMR (personnes à mobilité réduite)
Cet immeuble récent réunit toutes les conditions d'un bâtiment tertiaire fonctionnel, pensé pour le confort et la performance de vos collaborateurs.
Un emplacement stratégique à Bordeaux Ravezies
L'immeuble se situe dans un secteur très recherché, bénéficiant d'une excellente connexion aux infrastructures de transport :
Tramway ligne C arrêt Place Ravezies au pied de l'immeuble
Lignes de bus 7, 45, 46 à proximité immédiate
Station V3 (vélo) à moins de 2 minutes
Accès rapide aux boulevards et à la rocade
À 10 minutes en tramway du centre-ville de Bordeaux
Le quartier est également doté de nombreux restaurants, hôtels, commerces et services, favorisant la qualité de vie au travail.
Disponible immédiatement Venez découvrir cet immeuble de bureaux à fort potentiel, idéal pour les entreprises souhaitant s'installer dans un secteur visible, accessible et dynamique.
Contact : 05 56 44 09 12
Découvrez d'autres bureaux disponibles à proximité :
Services & prestations
Aménagements
-
Aménagement des bureaux : Espaces Ouverts
-
Hall d'accueil : Collectif
-
Sanitaires : Privatif(s)
Equipements
-
Ascenseurs : 1
-
Climatisation : Réversible
-
Faux plafond : Dal. fibres minéral.
-
Sol bureaux : Moquette
Prestations de service
-
Parking
Extérieurs
-
Terrasses - jardins : 1er étage et 3e étage
Type / Etat du bâtiment
-
Etat de l'immeuble : Rénové
-
Etat des locaux : Rénové
-
IGH / Code du travail : Code du travail
-
Immeuble indépendant










