




68 Rue Achard
33300 Bordeaux
2 940 m²
Divisible dès 344 m²
à partir de 190 €
HT/HC/m²/an
Disponibilité : Immédiate

Ludovic MICHELON
Description
Bureaux à louer à Bordeaux à Bassins à Flot : N2 OFFICE
Immeuble de bureaux récent de bureaux livré en 2017 au cœur des Bassins à Flot, à proximité de la Cité du Vin et au pied du tramway. N2 OFFICE est un bâtiment innovant alliant performances énergétiques et bien être de l'utilisateur. Vastes plateaux disponibles (2 niveaux de 1 470 m² SUBL) en bon état et partiellement aménagés. Trame efficace flexible et propice à tout type d'aménagement (profondeur des plateaux optimale, luminosité, nombreuses fenêtres).
Au coeur du quartier dynamique des Bassins à Flot à Bordeaux, découvrez un ensemble de bureaux idéalement situé et parfaitement agencé. Le bâtiment N2 OFFICE, se trouve au pied de la ligne de tramway B (arrêt Achard), à quelques minutes du pont ChabanDelmas et de la rocade bordelaise, offrant une accessibilité exceptionnelle pour vos collaborateurs.
Les locaux proposés sont modulables, mêlant openspace et bureaux cloisonnés, dans un immeuble récent livré en 2017 et performant sur le plan technique. Vous profiterez d'un environnement professionnel de qualité, proche de la Halle Bacalan, des restaurants, hôtels et autres services d'affaires.
Caractéristiques & prestations
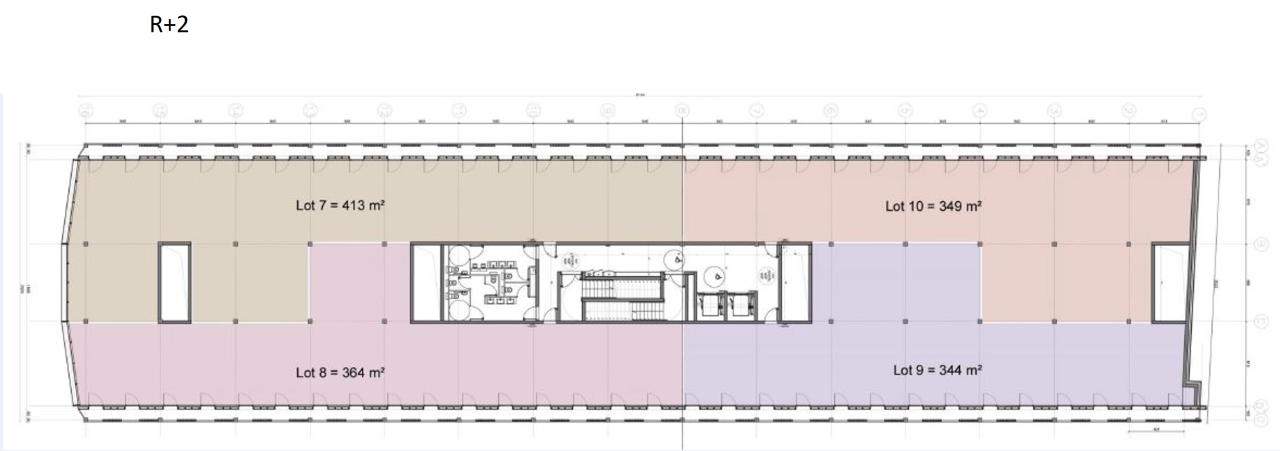
Plateaux disponibles dans N2 OFFICE : surface d'environ 2 940 m² divisible dès 190 m².
Système de rafraîchissement nocturne, climatisation réversible, coursives accessibles depuis chaque fenêtre.
Accès sécurisé par contrôle d'accès, ascenseur, locaux vélos, accès PMR.
Aménagement possible en espaces ouverts, bureaux privatifs, salle de réunion, cuisine et plinthes techniques périphériques.
Nombreuses places de stationnement au sein de l'immeuble.
Emplacement et environnement
Installé dans un secteur tertiaire en plein essor, l'immeuble bénéficie d'une visibilité forte ainsi que d'une desserte remarquable :
Ligne de tramway B juste au pied de l'immeuble (arrêt Achard)
Accès direct au réseau routier et à la rocade via le pont ChabanDelmas
Zone boisée alentour, services de restauration et loisirs à proximité immédiate
Cadre de travail attractif pour vos collaborateurs et partenaires
Pourquoi choisir cette offre
Cette opportunité s'adresse aux entreprises recherchant :
Une implantation moderne et flexible dans l'un des quartiers les plus dynamiques de Bordeaux
Une accessibilité optimale en transport (tram, voiture)
Des surfaces modulables et un immeuble techniquement avancé, prêt à accueillir leurs équipes
Références utiles
Bureaux à louer dans la zone des Bassins à Flot à Bordeaux
Bureaux divisible dès 219 m² sur les Bassins à flot
Services & prestations
Aménagements
-
Accès Pers. Mobilité Réduite
-
Aménagement des bureaux : Cloisonnés/Ouverts
-
Complexe Salle de réunion
-
Espace bien-être : Détente
-
Sanitaires
Equipements
-
Ascenseurs : 2
-
Climatisation : Réversible
-
Câblage informatique : RJ 45
-
Eclairage Bureaux : Luminaires encastrés LED
-
Plinthes techniques périphériques
-
Sol bureaux : Moquette
Hauteurs
-
Hauteur sous-plafond : 2,70 mètre(s)
Prestations de service
-
Cafétéria
-
Parking
Extérieurs
-
Trame de façade : 1,35 m
Normes, Certifications et Labels
-
Label actuel : RT 2012
Type / Etat du bâtiment
-
Etat de l'immeuble : Etat d'usage
-
Etat des locaux : Très bon état Très bon état
Informations complémentaires
-
Cheminées pour rafraichissement nocturne du bâtiment, Fibre optique
-
Fibre optique, Vitrage à isolation thermique et phonique
-
Coursives accessibles depuis chaque fenêtres, Stores manuels










