




Location Bureau 1 955 m²
33110 Bouscat
1 955 m²
Divisible dès 60 m²
à partir de 180 €
HT/HC/m²/an
Disponibilité : T4 2023

Laura MOURGUIART
Description
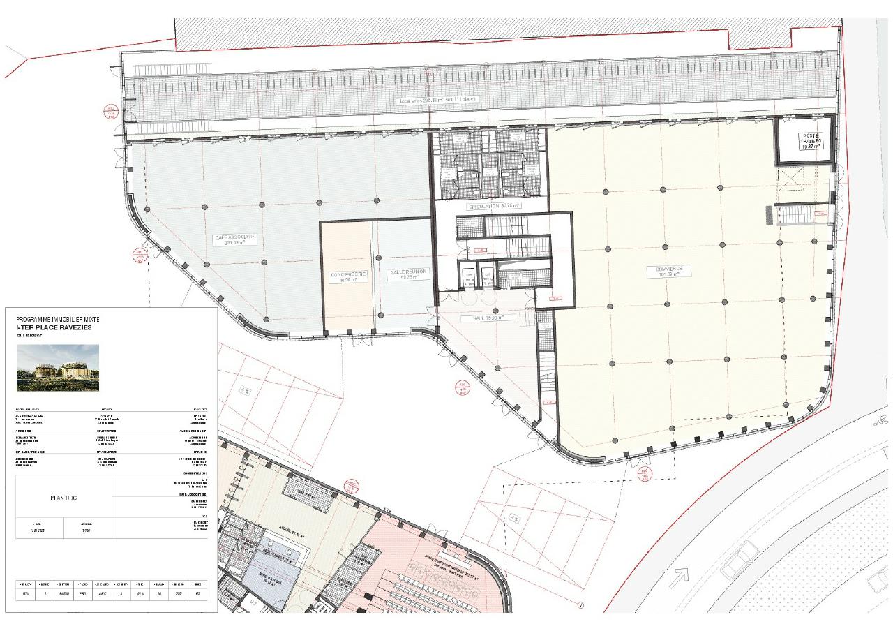
Location de bureaux à Le Bouscat – Immeuble neuf I‑TER face à la place Ravezies
BNP Paribas Real Estate vous propose une offre de locaux tertiaires sur la place Ravezies, point d'entrée de la ville par le Nord.
Locaux d'une qualité d'usage exceptionnelle avec de nombreux parkings et une proximité avec les transports en commun et commerces.
Nombreux emplacements de parkings publics disponible à 1.200 €/unité/an
Vous recherchez des bureaux à louer à proximité de Bordeaux, dans un immeuble emblématique, moderne et parfaitement connecté ?
BNP Paribas Real Estate vous propose l'immeuble I-TER, un programme tertiaire neuf situé au pied de la place Ravezies.
Cet ensemble se distingue par une architecture soignée, des prestations techniques de qualité, une terrasse commune en rooftop, ainsi qu'une excellente desserte par les transports en commun (tramway ligne C à 1 minute). À louer immédiatement, un plateau de 1 423 m² environ est disponible, divisible à partir de 404 m².
Caractéristiques des bureaux à louer
Immeuble neuf à l'architecture contemporaine
Surface disponible : 1 423 m² environ, divisible dès 404 m²
Aménagement modulable : open space et/ou cloisonné
Faux plancher technique, grande luminosité naturelle
Terrasse commune sur le toit avec vue dégagée
Stationnements disponibles + local vélos (20 places)
Adresse : 5 Esplanade de la Gare Le Bouscat (33110)
Au pied du tram C station Place Ravezies
Disponibilité : immédiate
Un emplacement stratégique dans la métropole bordelaise
Situé à Le Bouscat, dans le prolongement du quartier Ravezies, cet immeuble bénéficie d'un accès rapide au centre-ville de Bordeaux, aux axes majeurs et à la gare Saint-Jean via le tram C. À proximité immédiate de restaurants, commerces et services, c'est un emplacement idéal pour les entreprises à la recherche de visibilité, confort et accessibilité dans un environnement tertiaire dynamique.
Pourquoi choisir ITER pour vos bureaux à louer ?
Immeuble neuf & indépendant, dans un environnement urbain attractif
Plateaux divisibles selon vos besoins, jusqu'à 1 423 m²
Terrasse commune, architecture contemporaine, excellente lumière naturelle
Desserte directe tram C vers la gare Saint-Jean et le centre de Bordeaux
Adresse stratégique entre Bordeaux centre et zones d'activités ouest
Contactez-nous dès maintenant au 05 56 44 09 12 pour visiter ou recevoir une documentation complète.
Envie de découvrir d'autres bureaux à louer à Bordeaux et ses environs ?
Parcourez toutes nos offres de bureaux à louer à Bordeaux pour élargir vos recherches.
Découvrez ces bureaux à louer au Bouscat 1 954 m² divisibles dès 60 m², dans le même immeuble I-TER, idéal pour les entreprises recherchant flexibilité et confort.
Et explorez ces bureaux de 477 m² à louer aux Bassins à flot, parfaitement aménagés et situés dans un quartier innovant, à proximité du tram B.
Services & prestations
Aménagements
-
Accès Pers. Mobilité Réduite
-
Aménagement des bureaux : Cloisonnés/Ouverts
-
Complexe Salle de réunion : Salle de réunion mutualisée en RDC
Equipements
-
Climatisation
-
Faux plancher : Technique
-
Plinthes techniques périphériques
Prestations de service
-
Parking : 30 Places
Extérieurs
-
Terrasses - jardins : Privatifs
Type / Etat du bâtiment
-
Etat de l'immeuble : Neuf
-
Etat des locaux : Neuf
Informations complémentaires
-
20 places de vélo, Dalle active pour le chauffage
-
Espaces exterieurs
-
Désenfumage mécanique










