




Location Local d'activité 1 819 m²
92000 Nanterre
1 819 m²
180 €
HT/HC/m²/an
Disponibilité : Immédiate

Maxime LANDAIS
Description
NANTERRE
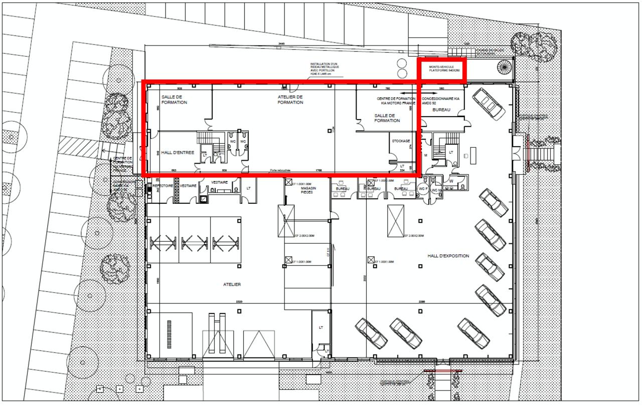
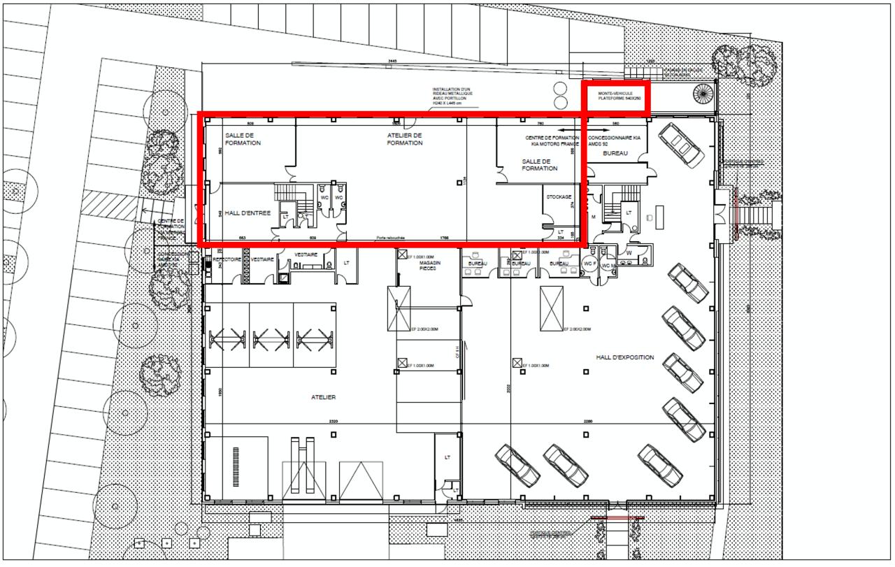
BNP Paribas Real Estate vous propose à la location une surface de 386 m² d’activité /show-room en RDC et 1200 m² environ de bureaux à l’étage + 200 m² environ de patio.
Belle visibilité sur l'A86
Bâtiment mixte activité/bureaux de 1819 m² avec visibilité A86 et 29 places de parkings .
Au cœur du parc d’activité de Nanterre Seine
Belles Prestations
Possibilité ERP
Services & prestations
Accès véhicules
-
Accessibilité type véhicules : Moyens porteurs
Equipements
-
Capacité monte-charge : 2500,00 Kg
-
Charge au sol Etage : 350,00 kg/m²
-
Climatisation
-
Puissance électrique : Tarif Jaune
Type / Etat du bâtiment
-
Etat des locaux : Rénové
Structure du bâtiment
-
Charpente : Béton
Normes, Certifications et Labels
-
Catégorie ERP : 5 sur l’ensemble du local
Informations complémentaires
-
2 bornes de rechargement pour véhicules électriques de 11 KVa










