




6 Mail de la Méditerranée
34550 Bessan
900 m²
Divisible dès 40 m²
à partir de 108 270 €
HT/HD
Disponibilité : Nous consulter

Rodolphe CHEVALLIER
Description
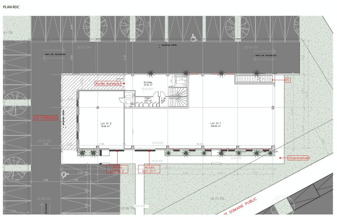
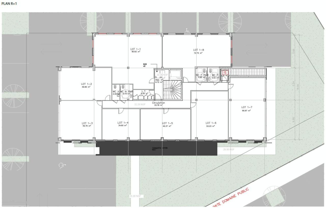
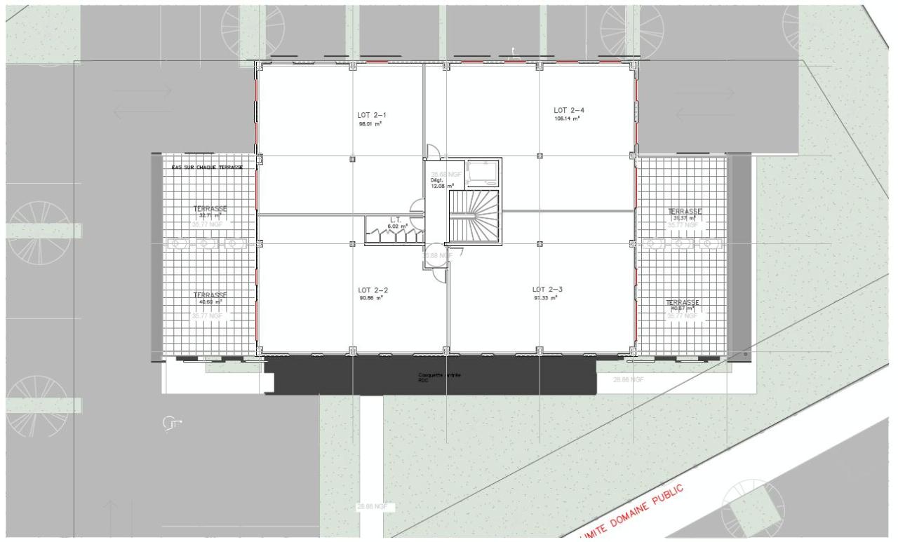
À VENDRE - BESSAN L7 – IMMEUBLE DE BUREAUX
Nous vous proposons un ensemble de bureaux à vendre au sein du programme L7 sur la commune de Bessan.
Situé au coeur de la ZAC La Capucière à Bessan, BESSAN L7 est un immeuble de bureaux moderne et fonctionnel.
À proximité immédiate de l'autoroute A9, ce projet s'inscrit dans le développement dynamique de la zone, offrant un cadre de travail performant et accessible.
Un projet pensé pour la performance
14 lots de bureaux répartis sur 3 niveaux
Structure métallique avec planchers collaborants béton + bac acier
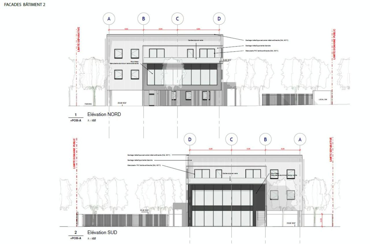
Façades contemporaines : bardage blanc, murs rideaux et finitions en métal anthracite
Conformité RE2020 : une construction éco-responsable et optimisée énergétiquement
Parcelle de 3 352 m² avec 20 places de stationnement
Un emplacement stratégique
Accès rapide à l'A9 pour une connexion optimale
Entre nature et zone d'activités : un cadre agréable et dynamique
Développement attractif au sein d'un secteur en pleine expansion
Équipe de projet
Architecte : PLUS ARCHITECTS, Montpellier
Contactez-nous dès maintenant pour plus d'informations
ACCESSIBILITES :
Gare d'Agde (~13 min en voiture, 12 km) Trains TER et TGV
Gare de Béziers (~25 min en voiture, 30 km) Trains TER, TGV et Intercités
Autoroute A9 (Sortie 34 - Agde / Pézenas) à 4 min en voiture (~3 km)
D612 (liaison Agde - Pézenas) à 2 min
Aéroport Béziers Cap d'Agde (~14 min en voiture, 15 km)