




Vente Bureau 611 m²
54000 Nancy
611 m²
1 700 000 €
HT/HD
Disponibilité : Immédiate

Florine DEVEAUX
Description
A VENDRE (location possible) - BUREAUX ERP 5
NANCY- réf OVBUR2534077
Nouveau à NANCY, proche GARE. Bureaux aménagés en salle de cours, entièrement rénovés en 2023. Précédemment occupés par une ECOLE, ces locaux disposent d'un classement ERP.
En excellent état, le local est équipé d'un traitement de l'air performant et de grands espaces de travail. Il dispose également d'une place de stationnement privative dans la cour intérieure.
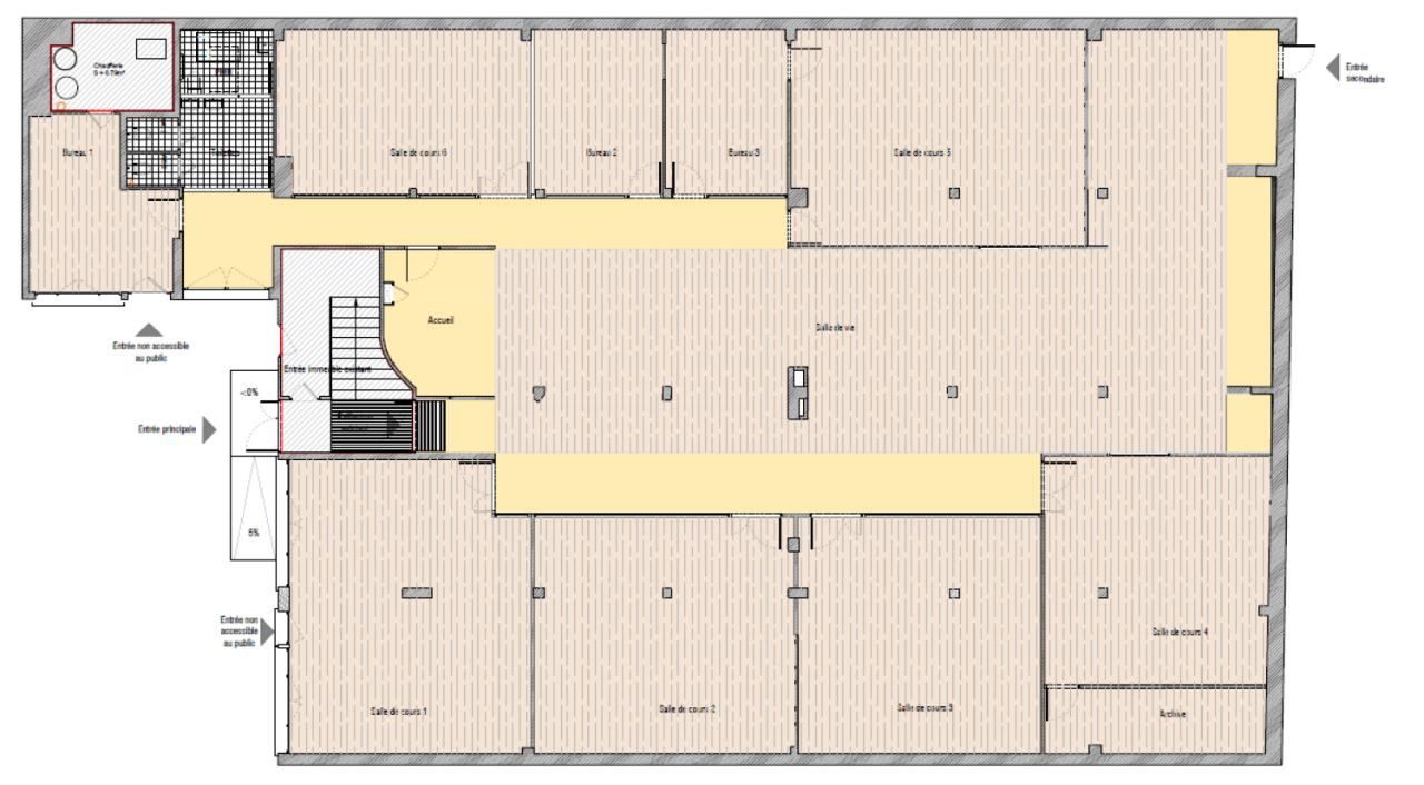
BUREAUX EN REZ-DE-CHAUSSEE - 611 m² - VENTE - NANCY (54)
Nous vous proposons à la vente ou à la location, un local de bureaux en plain-pied, idéalement situé à Nancy, au sein d'un environnement professionnel dynamique et facilement accessible. L'espace à été entièrement réhabilité et aménagé en 2023 et dispose de plusieurs espaces qui pourront satisfaire vos besoins.
Caractéristiques
6 grandes salles / 2 bureaux / 1 salle de réunion / 1 kitchenette / plusieurs sanitaires / grandes zones de rencontre
Stationnement privatif
Accès PMR
ERP
Ensemble sécurisé
Accessibilité
Accès autoroutiers rapide :
A31 vers Metz, Luxembourg et Bruxelles ou Dijon et Lyon.
A33 / A330
Transports en commun
Arrêts de bus (5min à pied) lignes 11, 16, T3, T4, COROL,
Gare Nancy TER (7min à pied)
Arrêt de tram (13min à pied env.)
Services et commodités
Caf et France Service à proximité
Place Stanislas (env. 1,2 km)
Marché couvert de Nancy (15 min à pied env.)
Services & prestations
Aménagements
-
Accueil
-
Accès Pers. Mobilité Réduite
-
Aménagement des bureaux : 1 open space
-
Bureaux cloisonnés : 2
-
Sanitaires : +1 PMR
Equipements
-
Eclairage Bureaux : Luminaires suspendus
-
Fenêtres
-
Revêtement mural : Peinture
-
Sol bureaux : Parquet
-
Source chauffage : Gaz
Prestations de service
-
Parking : 2 Places
-
Sécurité : Contrôle d'accès
Normes, Certifications et Labels
-
Catégorie ERP : 5 possibilité d'accueil au public
Type / Etat du bâtiment
-
Etat des locaux : Etat d'usage
-
Immeuble copropriété
Informations complémentaires
-
1 Kitchenette, 1 salle de reunion, 6 salles cloisonnées, Chaudière individuelle gaz










