




Location Bureau 161 m²
54000 Nancy
161 m²
140 €
HT/HC/m²/an
Disponibilité : Immédiate

Florine DEVEAUX
Description
LOCATION - BUREAUX
CENTRE AFFAIRES GARE réf OLBUR2640096
LOCATION - BUREAUX - 162 m² - CENTRE AFFAIRES GARE- NANCY (54)
Bnppre vous propose à la location une surface de bureaux, au 1er étage d'un immeuble situé à proximité du centre-ville et de la gare SNCF
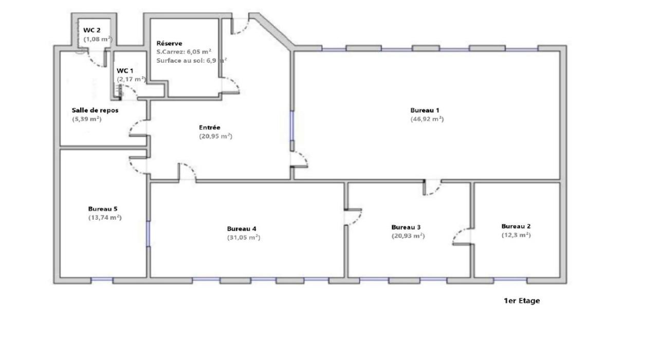
Surface : 162 m² environ
Loyer annuel : 22 540 HT
Charges annuelles : HT
Paiement du loyer : Trimestriel et d'avance
Dépôt de garantie : 3 mois de loyer HT
Bail commercial 3/6/9 ans
Taxe foncière : à la charge du preneur
Atouts des ces bureaux :
Hauteur sous plafond : 3 m minimum
Cheminée
Parquet stratifié et parquet chêne
Chauffage collectif gaz
Alarme
Baie de brassage
Prises RJ 45
2 WC
Kitchenette
Bureaux cloisonnés
Entrée
Porte blindée
Interphone
Fenêtres double vitrage neuves (marque SCHÜKO)
Localisation :
Ces bureaux se situent à un emplacement stratégique, à quelques pas de la gare SNCF et un accès direct aux axes routiers et autoroutiers :
Gare SNCF à 350 m (à 5 min à pied)
Restauration à proximité : Pidélice, Les cousins, Brasserie L'Excelsior, L'Ambassy
Hôtels : REVOTEL, Ibis Style
Services : Tabac Presse Saint Leon, Commissariat de Police
Services & prestations
Aménagements
-
Bureaux cloisonnés
-
Sanitaires : 2
Equipements
-
Fenêtres : Double vitrage neuves
-
Sol bureaux : Parquet stratifié et en chêne
Hauteurs
-
Hauteur sous-plafond : 3,00 mètre(s)
Prestations de service
-
Sécurité : Alarme
Informations complémentaires
-
Cheminée
-
Kitchenette










