




Location Bureau 611 m²
54000 Nancy
611 m²
213 €
HT/HC/m²/an
Disponibilité : Immédiate

Florine DEVEAUX
Description
A LOUER (vente possible) - BUREAUX ERP 5
NANCY- réf OLBUR2534072
RARE à NANCY, local de plain-pied avec accès PMR et classement ERP.
Précédemment exploité par une école, l'espace a été entièrement réhabilité et aménagé en 2023. Il est en excellent état et dispose de plusieurs espaces de travail et de grands endroit de rencontre.
2 places de stationnement privatives sont comprises dans la location.
BUREAUX EN REZ-DE-CHAUSSEE - 611 m² - LOCATION - NANCY (54)
Découvrez cet ancienne école réhabilitée en local de bureaux plain-pied, idéalement situé à Nancy, au sein d'un environnement dynamique et facilement accessible. L'espace dispose de plusieurs espaces qui pourront satisfaire vos besoins.
Le bien est disponible à la location ou à la vente.
Caractéristiques
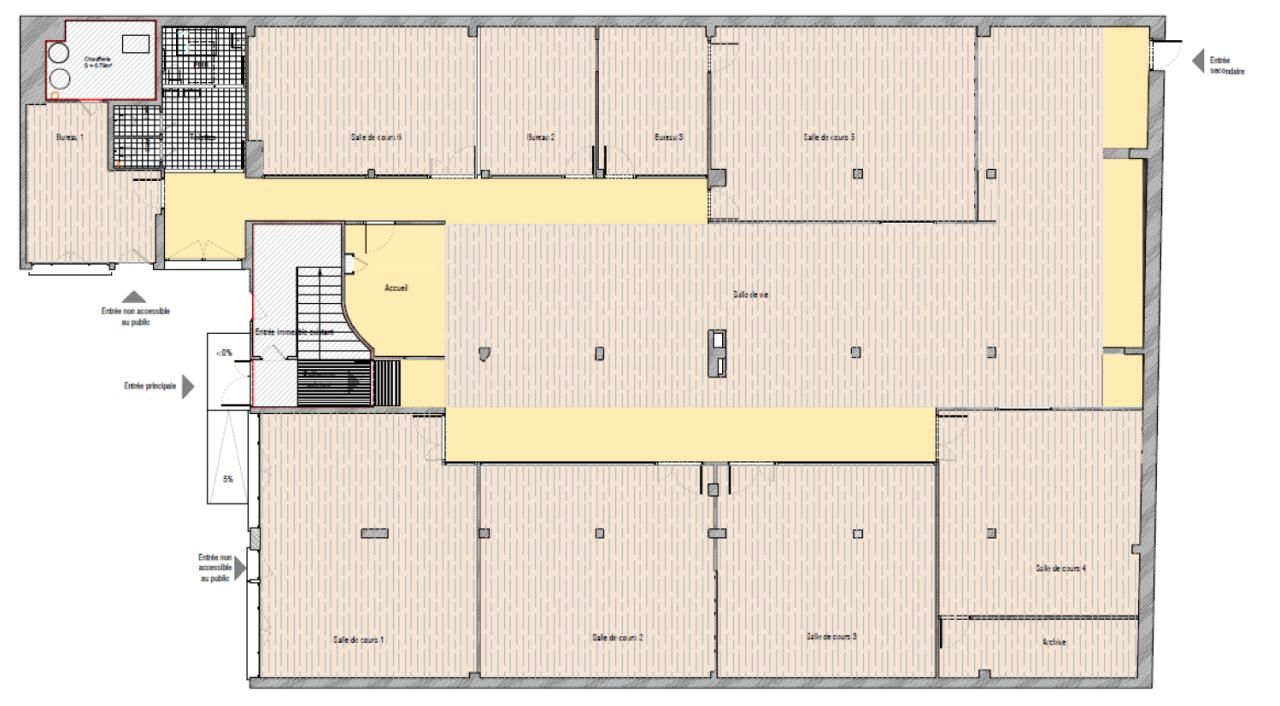
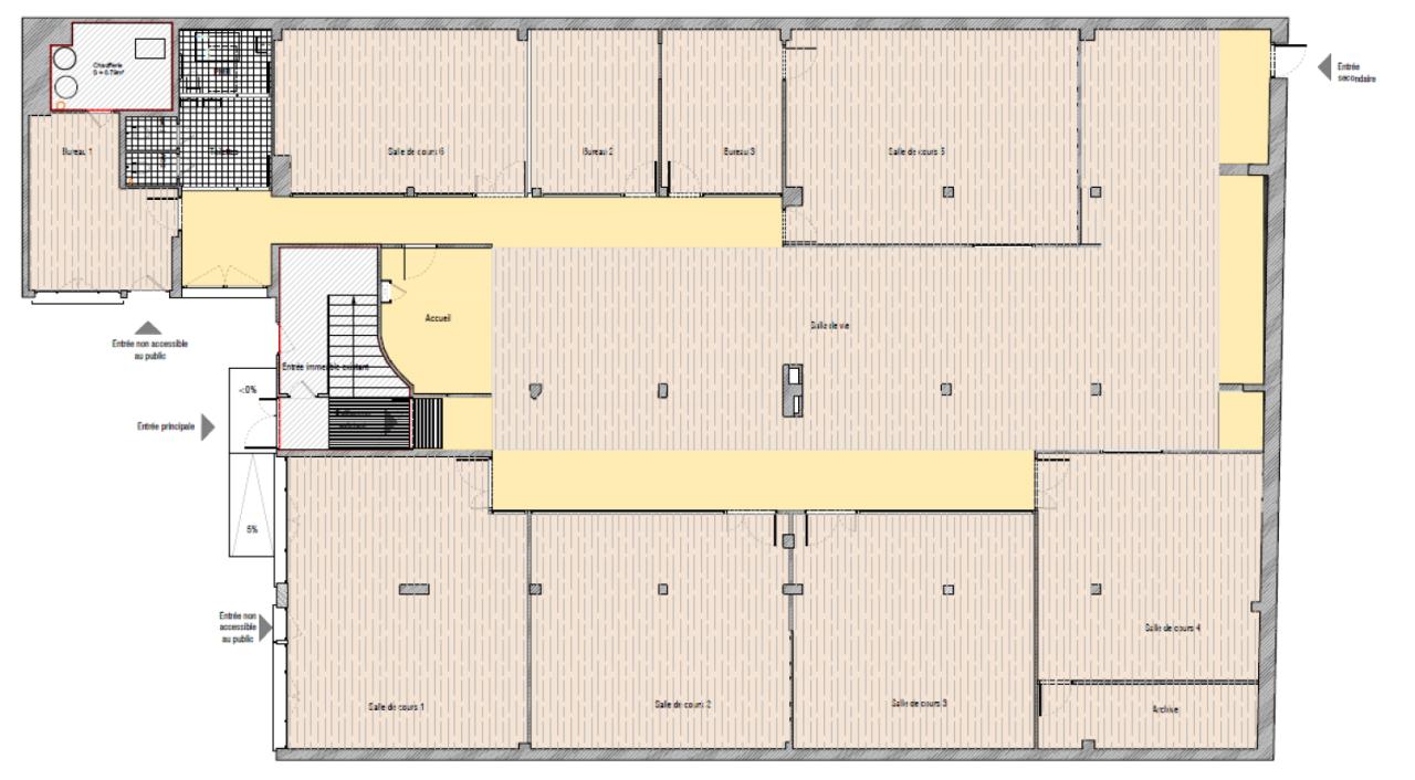
6 grandes salles / 2 bureaux / 1 salle de réunion / 1 kitchenette / plusieurs sanitaires / grandes zones de rencontre
2 stationnement privatif
Accès PMR et normes ERP
Ensemble sécurisé
Accessibilité
A31 vers Metz, Luxembourg et Bruxelles ou Dijon et Lyon.
A33 / A330
Transports en commun
Arrêts de bus (5min à pied) lignes 11, 16, T3, T4, COROL,
Gare Nancy TER (7min à pied)
Arrêt de tram (13min à pied env.)
Services et commodités
Caf et France Service à proximité
Place Stanislas (env. 1,2 km)
Marché couvert de Nancy (15 min à pied env.)
Services & prestations
Aménagements
-
Accueil
-
Accès Pers. Mobilité Réduite
-
Aménagement des bureaux : 1 open space
-
Bureaux cloisonnés : 2
-
Sanitaires : +1 PMR
Equipements
-
Eclairage Bureaux : Luminaires suspendus
-
Fenêtres
-
Revêtement mural : Peinture
-
Sol bureaux : Parquet
-
Source chauffage : Gaz
Prestations de service
-
Sécurité : Contrôle d'accès
Normes, Certifications et Labels
-
Catégorie ERP : 5 possibilité d'accueil au public
Type / Etat du bâtiment
-
Etat des locaux : Etat d'usage
-
Immeuble copropriété
Informations complémentaires
-
1 Kitchenette, 1 salle de reunion, 6 salles cloisonnées, Chaudière individuelle gaz










