




Location Bureau 500 m²
54000 Nancy
500 m²
160 €
HT/HC/m²/an
Disponibilité : Immédiate

Florine DEVEAUX
Description
A LOUER - BUREAUX
NANCY CENTRE AFFAIRES GARE - ref OLBUR2428460
Nancy centre affaires gare compte 2 transactions au T42024 pour des surfaces équivalentes. Il s'agit donc du dernier lot de 500 m² disponible dans le quartier. Quelques rafraîchissement sont à prévoir, ne tarder pas à venir visiter !
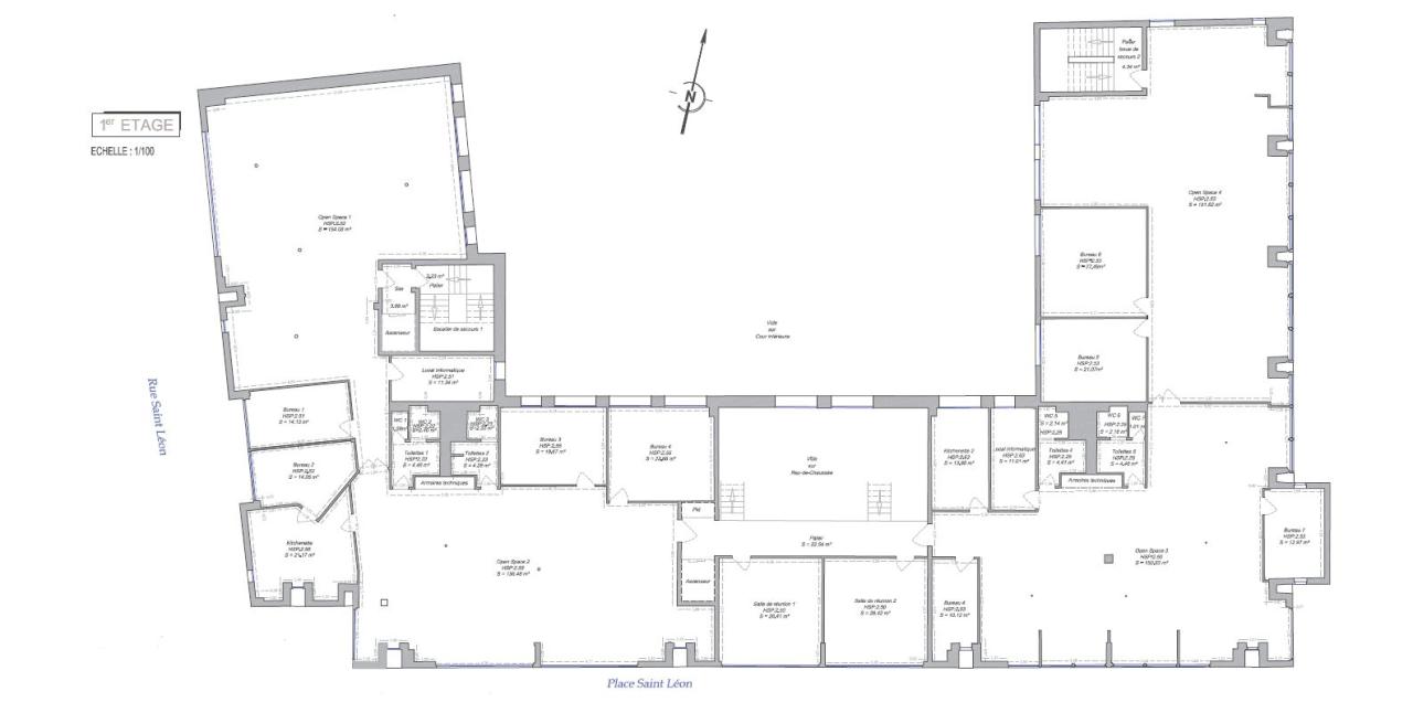
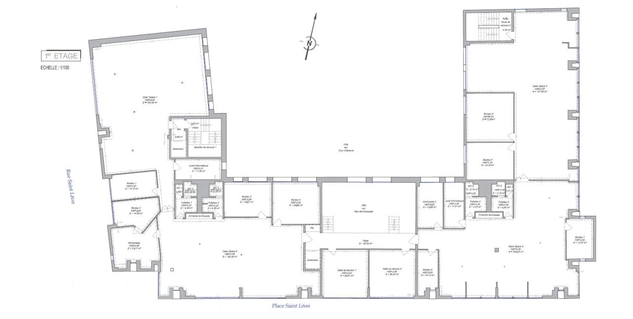
Plateau de 500 m² au 1er étage, belle luminosité, cloisons avec vitrage intégré, modulable, sanitaires privatifs, cuisine aménagée, espaces extérieurs arborés et au calme. Ce site dispose également d'un abris pour vélos/trotinettes et de 10 emplacements de stationnement accessibles directement depuis le bâtiment, par ascenseur. Entrée de la gare sur le parvis.
LOCATION - BUREAUX - NANCY CENTRE AFFAIRES GARE - NANCY (54)
Caractéristiques :
- 1er étage
- 500 m² environ
- 10 emplacements de stationnement en sous-sol
- Loyer : 80 000,00 € HT/HC/an + 1000 €/HT par emplacement de stationnement (10)
- Charges : 27 190,00 € HT soit 54,38 € HT/m²
Localisation :
Le quartier Centre d’Affaires - Gare se situe dans le prolongement du centre-ville historique de Nancy. Nancy Grand Cœur est un quartier agréable à vivre et tourné vers l’écologie. Il s’agit également d’un véritable pôle d’échange multimodal où les différents moyens de transport s’articulent (TGV, TER, tram, bus, taxis, vélos). C’est un lieu dynamique qui accueille des bureaux, commerces, restaurants, logements ainsi que des espaces culturels et services :
- Le Centre des Congrès Prouvé
- De nombreux hôtels (Mercure, B&B, Ibis, Best Western, etc.)
- Salle de sport Keepcool
- Plusieurs crèches
- Restauration : Paul, Starbucks, Quick, Piopa, Tanto Bene, Pidélice, etc.
- Commerces : centre commercial Saint-Sébastien, Fnac, Printemps, etc.
Vos futurs bureaux ont un emplacement exceptionnel et sont directement connectés à la gare et aux transports en commun de la ville.
Accessibilité :
- Gare de Nancy : 3 accès possibles – place Simone Veil, place de la République ou parvis Saint-Léon
- Gare routière : place de la République (tram, bus, taxis, train, vélos)
- Gare Lorraine TGV : à 30 min en voiture (Paris en 1h30, aéroport de Roissy en 1h10)
- Parkings publics : République Centre de Congrès Prouvé, Thiers, Joffre Saint-Thiébaut, Gare Saint-Léon, Kennedy
Conseiller en Immobilier d'Entreprise, BNP PARIBAS REAL ESTATE TRANSACTION vous accompagne dans votre recherche de bureaux, locaux d'activités et entrepôts logistiques en Meuthe-et-Moselle, à la location et à la vente.
Services & prestations
Aménagements
-
Aménagement des bureaux : Cloisonnés modulaires vitrées
-
Sanitaires : Privatif(s)
Equipements
-
Ascenseurs
-
Câblage informatique : Prises RJ45
-
Eclairage Bureaux : LED
-
Faux plafond : En dalle
-
Fenêtres : Double vitrage
-
Sol bureaux : Moquette
Prestations de service
-
Sécurité : Contrôle d'accès interphone (pas d'ouverture à distance)
Informations complémentaires
-
Espaces extérieurs aménagés (tables extérieurs)
-
VMC et clim réversible
-
Abri vélos / trottinettes










