




Location Bureau 1 675 m²
11100 Narbonne
1 675 m²
Divisible dès 838 m²
à partir de 145 €
HT/HC/m²/an
Disponibilité : 15/06/2026

Marie Laure ROLANDO
Description
NARBONNE - ZAC DE LA BONNE SOURCE - BATIMENT DE BUREAUX A LOUER
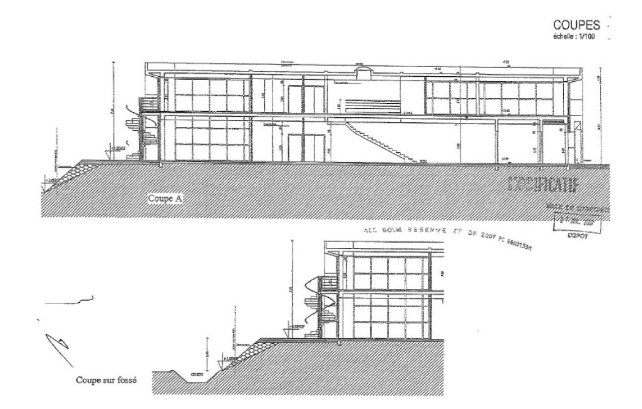
Découvrez ce bâtiment de bureaux, situé au sein de la ZAC de la Bonne Source à Narbonne, d'une surface totale de 1 675 m² divisibles entre le RDC et R+1 à partir de 837 m².
Bureaux à louer au sein d'un bâtiment indépendant au sein de la ZAC de la Bonne Source, sur la commune de Narbonne.
Les bureaux, d'une surface totale de 1 675 m² sont divisibles en deux plateaux de 837 m² entre le RDC et le R+1.
Climatisation, faux planchers techniques, ascenseurs.
Le lot bénéficie également de 57 places de stationnement en extérieur.
Disponibilité : Juin 2026
LA ZAC DE LA BONNE SOURCE
Située à 3km du centre-ville de Narbonne, la Zac de la Bonne Source regroupe un environnement mixte très dynamiques d'immeubles tertiaires, de commerces et d'hôtellerie, avec un passage régulier. La zone bénéficie d'un accès immédiat aux grands axes routiers et d'une excellente visibilité. C'est un emplacement recherché pour les activités commerciales et tertiaires.
ACCESSIBILITES :
- Centre-ville à 3 kilomètres
- Gare SNCF de Narbonne à 12 minutes
- Bus lignes A, B et E arrêt Creissel à 7 minutes à pied
- Autoroutes A9 sortie n°37 à 5 minutes
Services & prestations
Aménagements
-
Accès Pers. Mobilité Réduite : Ascenseur
Equipements
-
Climatisation
-
Faux plancher
Prestations de service
-
Parking : 57 Places Ratio d’une place pour 29 m²
Normes, Certifications et Labels
-
Catégorie ERP

