




2 Rue du Grenier À Sel
21200 Beaune
124 m²
242 €
HT/HC/m²/an
Disponibilité : Immédiate

Edouard CHADAN
Description
BEAUNE - Centre-ville
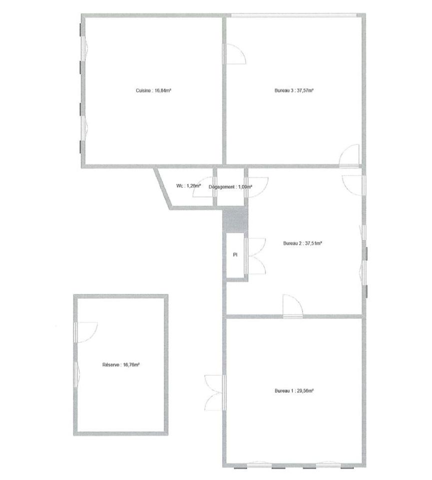
Au centre ville de Beaune, bureaux de standing de 140 m² environ.
Dans un bâtiment situé au centre ville de Beaune, dans une rue dynamique accueillant diverses activités professionnelles notamment dans le secteur viticole, 140,59 m² environ de bureaux en rez-de-chaussée.
Dans un cadre élégant et professionnel parfaitement adapté à une activité tertiaire, trois bureaux, une cuisine équipée, des sanitaires privatifs et un local archives idéal pour le stockage.
Chaque pièce est soigneusement aménagée, avec des finitions de qualité. Ces bureaux allient le charme de l'architecture locale et la modernité des équipements nécessaires à une entreprise.
Un espace de travail idéal pour une entreprise souhaitant allier confort, prestige et fonctionnalité.
Services & prestations
Aménagements
-
Bureaux cloisonnés
-
Sanitaires : Privatif(s)
Equipements
-
Climatisation : Réversible
-
Eclairage Bureaux : Luminaires encastrés
-
Faux plafond : Dal. fibres minéral.
-
Revêtement mural : Peinture
-
Sol bureaux : Pierre de Bourgogne / Parquet
Prestations de service
-
Fitness : A proximité
-
Restauration : A proximité
-
Sécurité : Accès par badge
Informations complémentaires
-
Cuisine / Espace convivialité
-
Chauffage / Clim. réversible


