




CANOPEE
9 Rue René Char
21000 Dijon
3 002 m²
Divisible dès 246 m²
à partir de 165 €
HT/HC/m²/an
Disponibilité : 15 mois après accord

Edouard CHADAN
Description
DIJON NORD -
PARC DE L'EUROPE
Au cœur du Parc de l'Europe et à proximité immédiate du Centre Commercial de la Toison d'Or et du Zenith de Dijon,
LA CANOPÉE : Déjà au Seuil 2031, bien au-delà de la RE2020 - Une Référence Inédite à Dijon.
Contribuez Activement à vos Objectifs RSE
Réduction des Charges d'Exploitation : 60 % d’Économies sur vos Factures Énergétiques - La Canopée, un Bâtiment qui Fait la Différence
Une Nouvelle Façon de Construire, Plus Rapide, Plus Précise, Plus Performante
LA CANOPÉE - Un Choix Stratégique pour renforcer votre image et votre Attractivité
BUREAUX - A LOUER / A VENDRE
Découvrez LA CANOPEE, le bâtiment innovant, certifié bas carbone, référence européenne soutenue par le FEDER, la Région et la Métropole, qui dépasse déjà les standards RE 2031 !
Et concrètement ?
- LA CANOPEE : Une vitrine d’innovation et de performance
Avec une consommation totale (électricité et eau) de 5,42 €/m²/an, La Canopée n’est pas seulement un bâtiment durable, c’est un argument économique imparable. C’est un outil pour les entreprises qui veulent optimiser leurs coûts de fonctionnement tout en améliorant leur image. Une fois l'autoconsommation et la revente issue de la production solaire, le total des charges estiamtives d'électricité des parties communes et privatives est estimé à 1,72 € HT/m²/An. (Ces informations sont basées sur des estimations et ne constituentpas un engagement contractuel. Les données réelles peuvent varier enfonction de divers facteurs tels que l'évolution des tarifs énergétiques,des usages spécifiques ou des réglementations applicables).
- Un système constructif qui change la donne
- 40 % de temps gagné sur la construction.
- Précision industrielle grâce à la préfabrication en usine.
- Matériaux innovants comme le bois et des technologies de pointe.
- Un levier stratégique pour les entreprises visionnaires qui veulent :
- Réduire et maitriser leurs coûts : La Canopée, c'est plus qu'un simple bâtiment : c'est un bâtiment à énergie positive qui dépasse les standards de la RE2020 pour vous offrir des économies tangibles dès le premier jour.
- Améliorer leur image : Avec La Canopée, votre engagement en faveur de la RSE prend vie. Construit avec des matériaux écologiques et durables, ce bâtiment à faible empreinte carbone soutient vos initiatives environnementales tout en offrant à vos équipes un environnement de travail sain, inspirant et aligné sur vos valeurs. Faites de vos bureaux un véritable levier pour vos actions responsables.
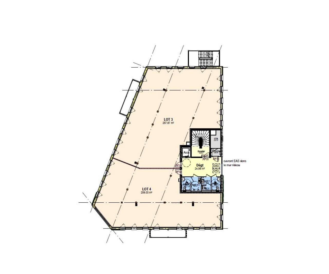
Ensemble composé de 2 868,84 m² de surface locative dont 435,64 m² de surface de communs, représentant seulement 15% de la surface globale tout en bénéficiant d'une magnifique terrasse partagée de 133m² avec les autres utilisateurs de l'immeuble.
Un Espace Partagé Polyvalent, Ouvert sur le Roof-Top : La Canopée offre aux entreprises un espace partagé multi-usage pensé pour favoriser la productivité, les échanges et le bien-être, avec un accès direct au roof-top végétalisé pour profiter d’une vue imprenable.
Salle de réunion : Accueillez jusqu'à 20 personnes dans une salle entièrement équipée avec écran, vidéoprojecteur et visioconférence, pour des réunions performantes et connectées.
Salle de séminaire : Organisez vos événements dans un espace spacieux pouvant accueillir 30 personnes, avec un accès direct aux espaces de convivialité pour vos pauses café et moments de networking.
Espace de convivialité : Un lieu chaleureux avec cuisine équipée et accès à la terrasse en attique, idéal pour se détendre, échanger et profiter de l'extérieur.
Espace sportif : Boostez la forme de vos équipes avec des cours collectifs proposés entre midi et deux ou en fin d'après-midi. Des douches et vestiaires sont à disposition pour un confort optimal.
Aux portes de Dijon Nord, au coeur du parc tertiaire du Parc de l'Europe,
Bâtiment de bureaux biosourcé à énergie positive en R+4 + Attique, bénéficiant d’un classement ERP de 5ème catégorie type W.
Un sous-sol comportant 31 places de stationnement pour véhicules légers et des locaux techniques. L’ensemble du niveau sera construit en prémurs béton armé.
En superstructure, le bâtiment sera réalisé en structure bois. Les murs extérieurs seront constitués d’un cadre en ossature bois avec un remplissage en paille de 22cm d’épaisseur.
Menuiseries mixtes bois/aluminium directement intégré en atelier dans les murs industrialisés et disposant d’un indice minimum d’affaiblissement acoustique Rw+C = 33dB.
Chauffage et rafraîchissement des locaux par Pompe à chaleur. Ventilation hygiénique par centrale d’air double flux.
Cuve de récupération des eaux de pluie 20m3.
Hauteur entre planchers bois CLT de 2.96m ht du Rdc au R+3 et 2.90m ht au R+4.
Hauteur variable sous toiture de l’Attique en fonction des pentes de la couverture.
Surcharges d’exploitation des plateaux : 250kg/m².
Plateaux livrés finis, non cloisonnés sur un principe d’Open Space mais divisibles en plusieurs cellules.
Stockage du carbone : Le carbone fixé dans les grumes des arbres et dans les épis de blé se retrouve stocké pour une longue durée, a minima celle de la vie du bâtiment. Cette caractéristique spécifique aux matériaux biosourcés permet à la CANOPÉE d’atteindre les objectifs E3/C2 et de remplir aux conditions du Label BBCA.
L’immeuble de LA CANOPÉE, une construction hors-site
La construction hors-site est une méthode qui vise à déplacer une partie de cette construction hors du chantier.
Elle permet d’améliorer les conditions de travail, de réduire les nuisances pour les riverains, de réaliser des constructions bas-carbone, d’optimiser les coûts et le temps des projets, et d’améliorer la qualité des constructions. Ce terme englobe la notionde préfabrication, mais en tenant compte des enjeux contemporains (carbone, filière locale, qualité de vie au travail, qualitéarchitecturale et d’usage). En complément, le processus doit faciliter le recyclage des matériaux ainsi que le développementresponsable des territoires.
Accessibilité :
- Tramway : ligne T2 station Toison d'Or à 6 minutes
- Réseau de bus urbain DIVIA arrêt Churchill à 4 minutes
- Rocade / LINO à proximité immédiate
- Parking Zénith Dijon à 3 minutes
Services :
- Centre commercial de la Toison d'Or à proximité permettant l'accès à tous commerces, restauration variée et hôtellerie.
Services & prestations
Aménagements
-
Accès Pers. Mobilité Réduite
-
Aménagement des bureaux : Espaces Ouverts
-
Salle informatique : Par niveau
-
Sanitaires : Parties communes, Parties communes
Equipements
-
Ascenseurs : 1 8 personnes - 630 kg - 1m/s
-
Charge au sol Etage : 250,00 kg/m²
-
Climatisation : Réversible par panneaux rayonnants
-
Distribution chauffage : Réversible par panneaux rayonnants
-
Douche : 2 au R+5
-
Eclairage Bureaux : Eclairage par lampadaires LED intelligents type WALDMANN sur tous les postes de travail
-
Faux plafond : Dalles 600X600 dans les petits espaces privatifs - Baffles acoustiques dans les open spaces
-
Fenêtres : Menuiseries mixtes bois/aluminium oscillo-battantes - compris brise-soleil orientables motorisés
-
Plinthes techniques périphériques : Provision pour 1PC / ml.
-
Production climatisation : Autonome Pompe à chaleur
-
Sol bureaux : Revêtement de sol souple en linoleum de chez TARKETT ou similaire ou en moquette BALSAN réf. L480 ou
Hauteurs
-
Hauteur sous-plafond : Entre planchers bois CLT de 2.96m ht du Rdc au R+3 et 2.90m ht au R+4
Prestations de service
-
Cafétéria : équipée et partagée
-
Sécurité : Contrôle d'accès
Extérieurs
-
Terrasses - jardins : Toiture végétalisée / jardin - terrasse partagé
-
Trame de façade : Murs ossatures bois extérieurs avec isolation en paille reconditionnée d’épaisseur 220mm
Normes, Certifications et Labels
-
Catégorie ERP : 5 type W
Type / Etat du bâtiment
-
Etat de l'immeuble : Neuf
Informations complémentaires
-
Douches H/F au R+5, Oui
-
Oui, Ventilation double flux
-
Oui, Panneaux photovoltaïques posés sur ombrière surplombant le roof-top et sur toiture du roof-top










