




33 Rue Marie Curie
44230 Saint-Sébastien-sur-Loire
7 492 m²
Divisible dès 242 m²
à partir de 155 €
HT/HC/m²/an
Disponibilité : 30/12/2027

Christine SERRA
Description
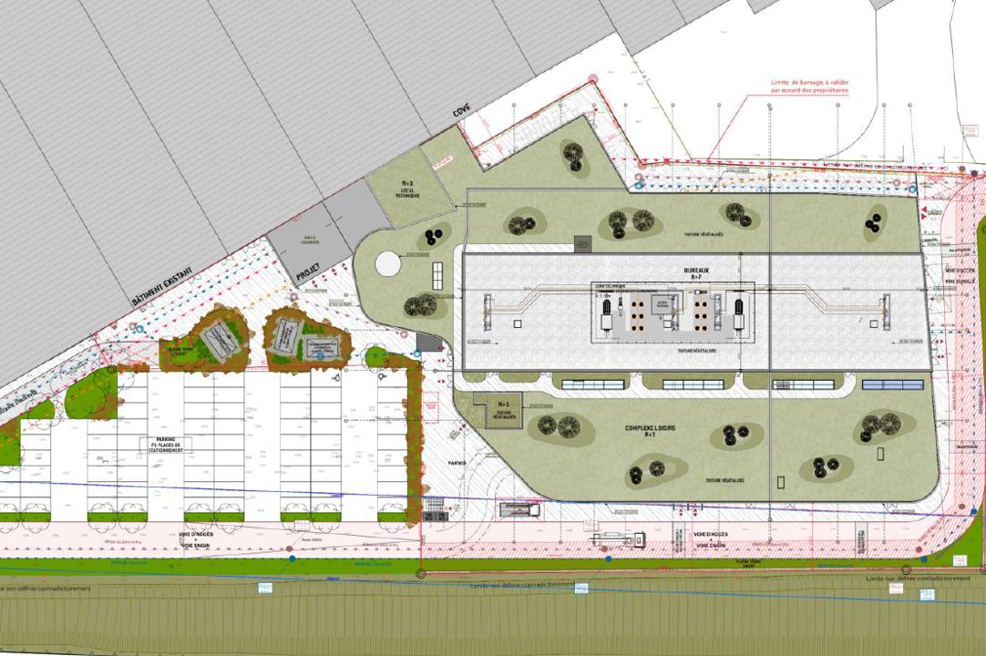
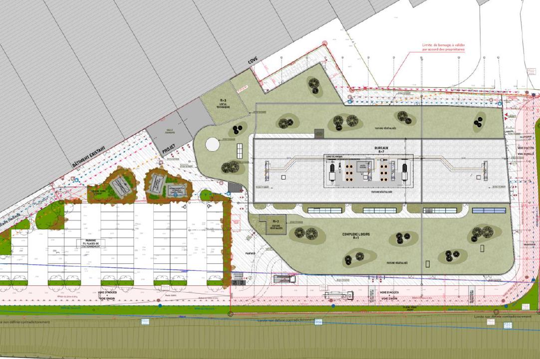
"ON AIR" : PROGRAMME NEUF EXCEPTIONNEL - BUREAUX À LOUER - BREEAM Very Good
Venez découvrir de très beaux plateaux de bureaux neufs en étage, proposés à la location, aux portes du périphérique Sud !
Près de 7500 m² de bureaux, répartis en plateaux aménagés non cloisonnés de 214 à 1327 m² (surface privative), offrant un capacitaire de 1/10 m².
Les plateaux sont climatisés et agrémentés de terrasses privatives selon les étages.
L'ensemble répond à la règlementation thermique RE2020.
Parking privatif : ratio 1 place / 60 m².
"ON AIR" bénéficie d'un environnement de commerces, restauration et services très dense.
Accolé au futur site de Loisirs et Restauration, avec studio de scénographie, tube de chute libre, fosse de plongée, ON AIR délivre un message fort de dynamisme et de créativité !
Services & prestations
Aménagements
-
Effectif théorique : 1/10 m²
-
Sanitaires : Privatif(s)
Equipements
-
Ascenseurs
-
Climatisation
Prestations de service
-
Sécurité : Contrôle d'accès entrée par contrôle accès 24/24 7/7
Normes, Certifications et Labels
-
Catégorie ERP : Possible 2è et 3è étages
-
Certification : BREEAM In Use
Type / Etat du bâtiment
-
Etat de l'immeuble : Neuf
Informations complémentaires
-
Bureaux aménagés non cloisonnés
-
Règlementation thermique RE 2020
-
Terrasses privatives arborées en R+4 et R+5










