




Vente Bureau 178 m²
44200 Nantes
178 m²
585 000 €
HT/HD
Disponibilité : Immédiate

Anne-Charlotte ZABEL
Description
BUREAUX EN RDC À VENDRE - VUE LOIRE
NANTES - ILE DE NANTES
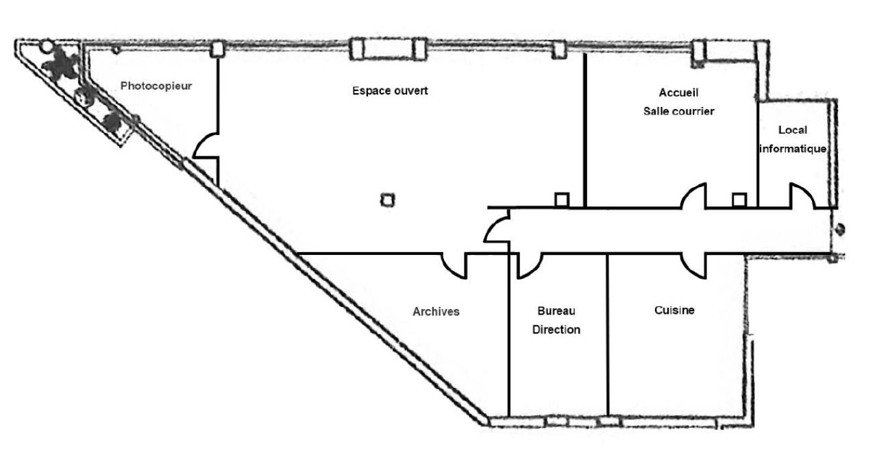
Dans un ensemble tertiaire sur l'Ile de Nantes, le long de la Loire, BNP PARIBAS REAL ESTATE vous propose à l'acquisition une surface de bureaux de 179 m² en excellent état composé d'1 accueil, 3 bureaux, 1 open space, 1 cuisine, 1 salle d'archive et 1 local informatique. Bénéficiant d'une grande flexibilité d'aménagement, le cloisonnement amovible vous permettra de mettre en place très facilement un aménagement répondant parfaitement à votre usage.
La surface dispose de 5 places de parking privatif en sous-sol, soit un ratio très avantageux de 1 place pour 36 m² ! Exceptionnel sur le secteur !
L'immeuble bénéficie d'un accès PMR.
Services & prestations
Aménagements
-
Accès Pers. Mobilité Réduite
-
Aménagement des bureaux : Cloisonnés 3 bureaux + 1 open space
-
Sanitaires : 2 Parties communes
Equipements
-
Ascenseurs
-
Climatisation
-
Eclairage Bureaux : Luminaires encastrés néons
-
Faux plafond : Dal. fibres minéral.
-
Plinthes techniques périphériques
-
Sol bureaux : Moquette
Type / Etat du bâtiment
-
Etat des locaux : Très bon état
Informations complémentaires
-
Cuisine équipée, Local 2 roues
-
Local informatique + local archives










