




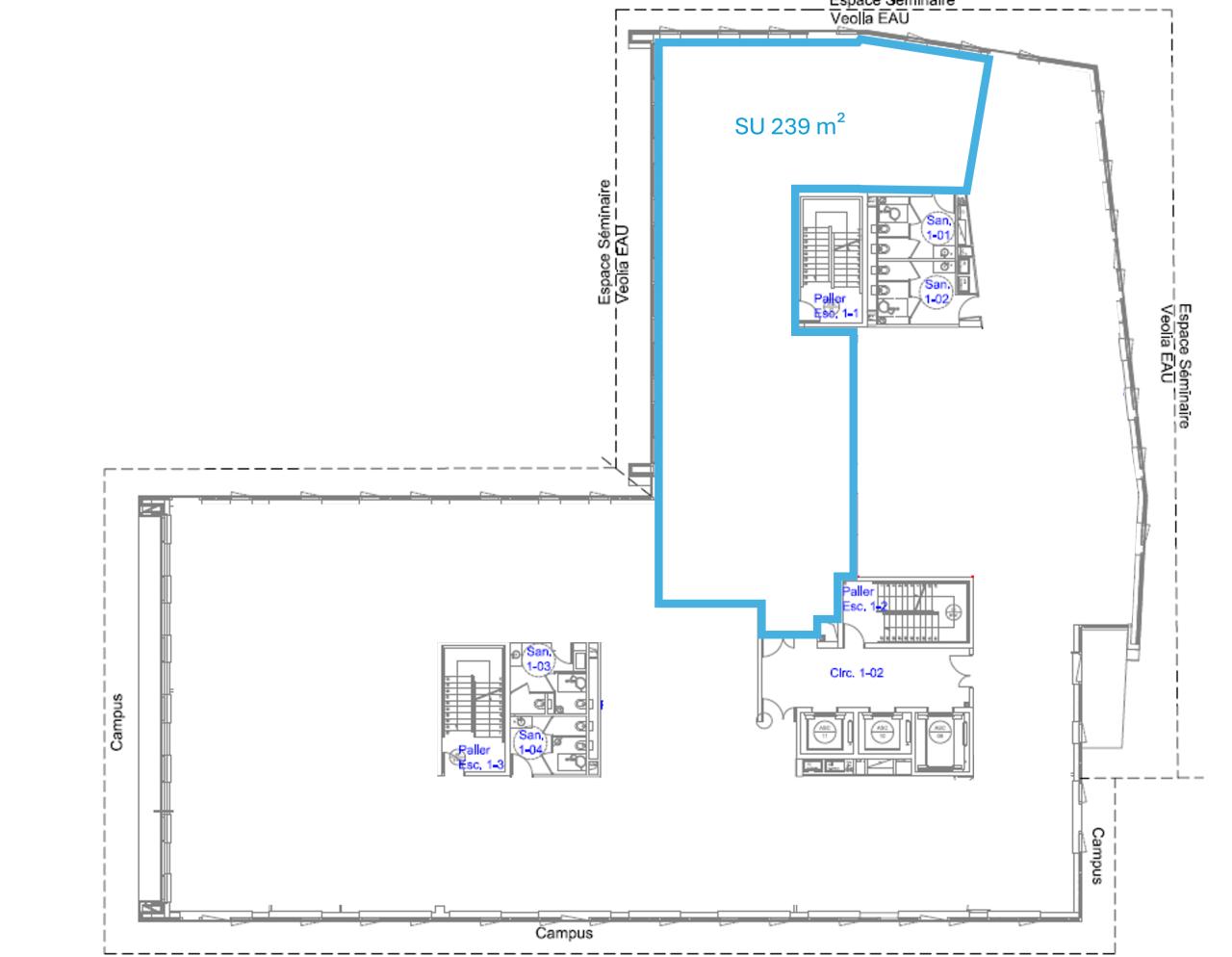
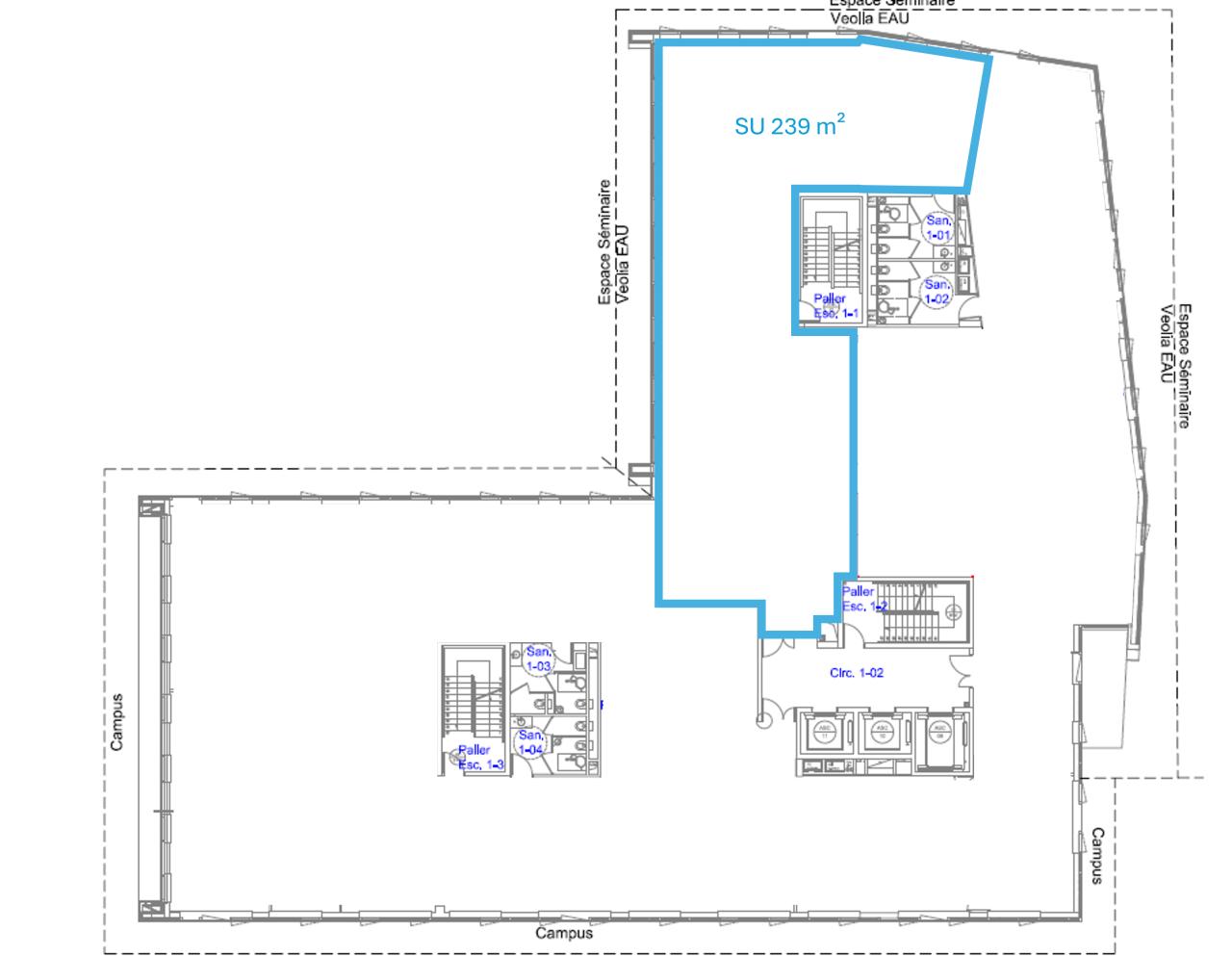
Location Bureau 295 m²
44200 Nantes
295 m²
175 €
HT/HC/m²/an
Disponibilité : Immédiate

Anne-Charlotte ZABEL
Description
PLATEAU DE BUREAUX À LOUER - PIED DE BUSWAY
BNP PARIBAS REAL ESTATE vous propose en sous-location une surface de bureaux entièrement aménagée, câblée, dans un immeuble haut-de gamme proche de la Cité des Congrès
La surface bénéficie d'un aménagement de qualité, prévu pour 26 postes de travail.
Principalement organisée en grand open-space, elle propose également :
3 salles de réunion de tailles différentes,
5 phone-box, et des casiers individuels pour faciliter le flex-office
1 espace accueil
un coin détente
Possibilité de mobilier / services inclus dans le cadre d'un contrat de mise à disposition.
A noter : les charges comprennent la totalité des consommations électriques (pas de contrat à prévoir).
Idéalement placé sur la ligne de busway, à proximité de la Cité des Congrès, et rapidement relié à la Gare TGV, cet immeuble de qualité offre une belle visibilité et une accessibilité optimale à ses occupants
Services & prestations
Aménagements
-
Accueil : + hôtesse
-
Accès Pers. Mobilité Réduite
-
Aménagement des bureaux : Cloisonnés/Ouverts
-
Sanitaires
Equipements
-
Ascenseurs : Et monte-charge
-
Climatisation : Réversible
-
Câblage informatique : Baie de brassage
-
Eclairage Bureaux : Luminaires encastrés néons
-
Faux plafond : Dal. fibres minéral.
-
Faux plancher : Technique
-
Gestion technique centralisée
-
Sol bureaux : Moquette et dalles PVC
Prestations de service
-
Sécurité : Contrôle d'accès
Normes, Certifications et Labels
-
Certification : HQE
Type / Etat du bâtiment
-
Etat des locaux : Très bon état
Informations complémentaires
-
Cloisonnement de qualité, Désenfumage naturel
-
3 salles de réunion + 5 phone box
-
Casiers










