




Location Bureau 1 291 m²
93500 Pantin
1 291 m²
Divisible dès 229 m²
Loyer sur demande
Disponibilité : Immédiate

Antoine MALHERBE
Description
Implantez votre entreprise au cœur de Pantin, dans un immeuble indépendant avec jardin privatif, à deux pas du métro Hoche et d’un environnement commerçant dynamique.
Bureaux à louer de 1 291 m² divisibles à partir de 229 m² à Pantin, entièrement aménagés, climatisés, avec jardin, parkings et excellente accessibilité.
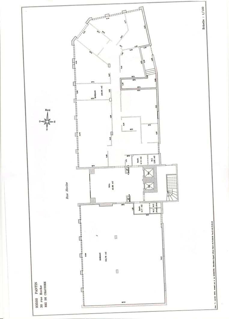
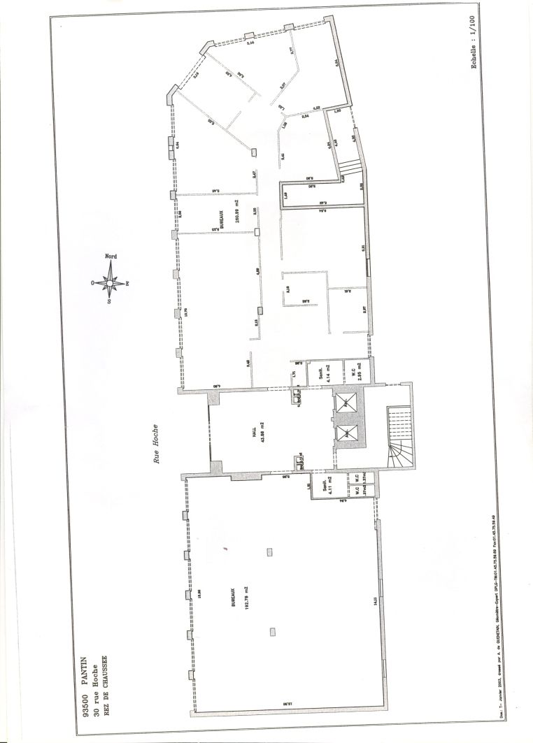
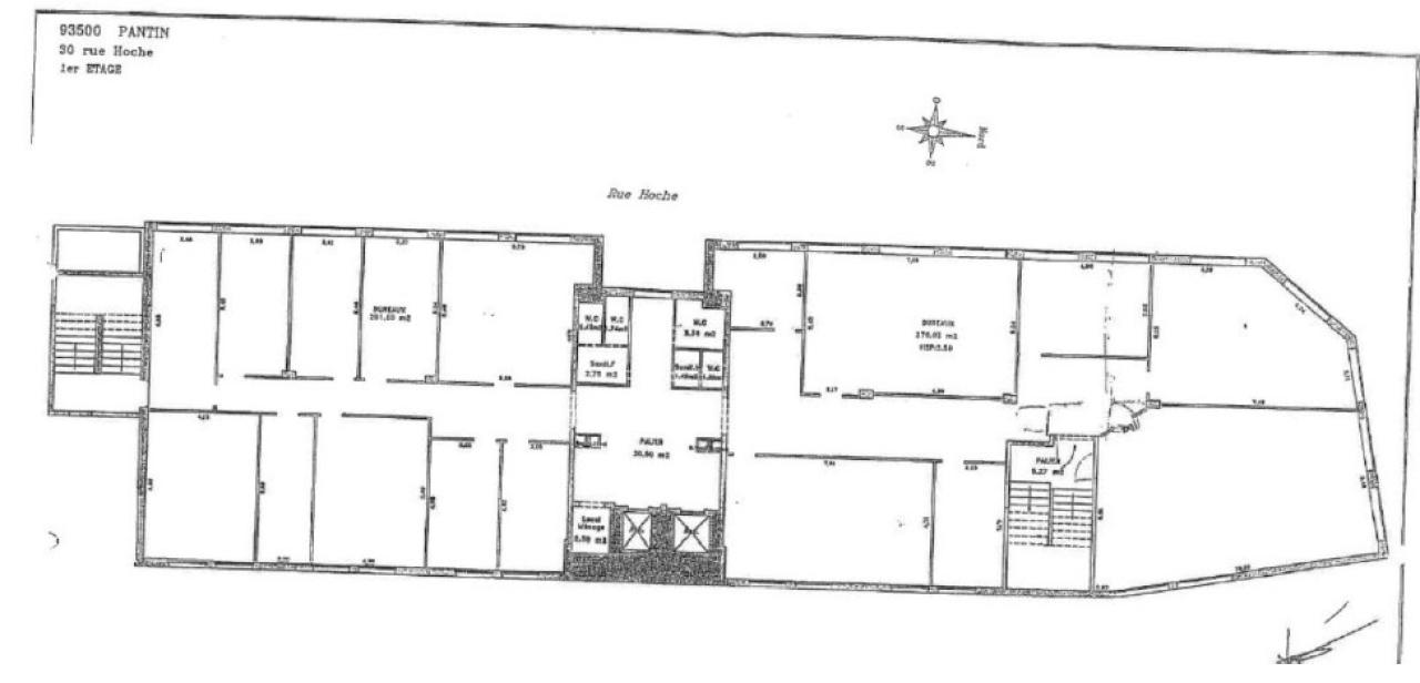
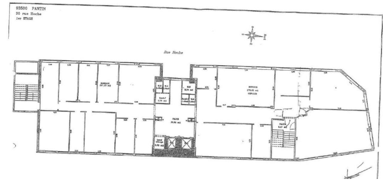
Situé au 30 rue Hoche à Pantin, en plein centre-ville, cet immeuble indépendant propose une surface totale d'environ 1 291 m², divisible à partir de 229 m², disponible à la location ou à la vente. Implanté dans un quartier commerçant et animé, il offre un cadre de travail attractif et pratique pour les entreprises souhaitant s'installer aux portes de Paris.
Les bureaux sont entièrement aménagés et climatisés, avec une organisation mixte combinant bureaux individuels et open-space, permettant une grande flexibilité d'utilisation. Les prestations techniques incluent :
Climatisation
Ascenseurs
Sanitaires privatifs
Salle informatique dédiée
Local de stockage en sous-sol d'environ 300 m² avec aire de livraison
L'immeuble bénéficie également d'un jardin privatif, véritable atout pour le confort des collaborateurs, ainsi que de parkings intérieurs. L'environnement immédiat propose une offre complète de restauration et de services, renforçant l'attractivité du site au quotidien.
L'accessibilité est optimale :
Métro
Ligne 5: Hoche à 250 mètres
RER E Pantin
Disponible immédiatement, cet actif constitue une opportunité rare de bureaux à louer ou à vendre à Pantin, alliant surface flexible, accessibilité, cadre de travail agréable et potentiel d'aménagement, idéal pour des entreprises en croissance ou des utilisateurs en recherche de visibilité et d'indépendance.
Services & prestations
Aménagements
-
Salle informatique
-
Sanitaires : Privatif(s)
Equipements
-
Ascenseurs : 2 630 et 800 Kg
-
Climatisation : Air pulsé
-
Câblage informatique : Ceinturage périphérique
-
Source chauffage : Electrique
-
Type de chauffage : Individuel
Hauteurs
-
Hauteur sous-plafond
Prestations de service
-
Parking
-
Restauration : A proximité
Extérieurs
-
Terrasses - jardins : Jardin privatif
Type / Etat du bâtiment
-
Etat de l'immeuble
-
Immeuble indépendant
Informations complémentaires
-
Aire de livraison
-
Local stockage avec air de livraison au -1 d'environ 300 m²










