




Location Bureau 1 451 m²
78300 Poissy
1 451 m²
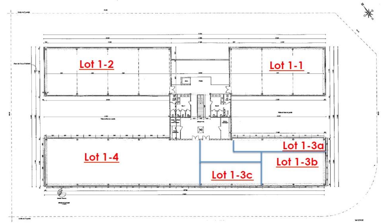
Divisible dès 129 m²
à partir de 135 €
HT/HC/m²/an
Disponibilité : Immédiate

Nathalie DELOEUVRE
Description
POISSY
Technoparc - Immeuble Antares
BNP PARIBAS Real Estate vous propose à la location plusieurs plateaux à usage de bureaux sur la commune de Poissy.
Situé à l'entrée du Technoparc de POISSY et dans un immeuble de très bon standing.
Dans un environnement calme et verdoyant, le Techonparc de POISSY est un véritable pole de développement économique qui regroupe plus de 150 entreprises dynamiques et innovantes.
De plus, il est idéalement positionné près des axes routiers strategiques reliant l'A 13 à l'A 15, via la N 184.
Ces bureaux, au sein de cet immeuble qualitatif , proposent de belles prestations, tels que
- Parking en sous-sol
- Ascenseur
- Accès aux Personnes à Mobilité Réduite
- Climatisation
N'hésitez pas à contacter votre conseiller BNPPARIBAS REAL ESTATE, pour toutes informations complémentaires
Services & prestations
Aménagements
-
Accueil
-
Aménagement des bureaux : Cloisonnés
-
Sanitaires : Parties communes
Equipements
-
Ascenseurs : 1
-
Climatisation : Double flux
-
Faux plafond
-
Onduleur
-
Plinthes techniques périphériques
-
Type de chauffage : Individuel
Prestations de service
-
Restauration : Sur site
-
Sécurité : Gardiennage , caméras de surveillance aux parking
Normes, Certifications et Labels
-
Catégorie ERP : 5 Printemps 2025
Type / Etat du bâtiment
-
Etat de l'immeuble : Etat d'usage
-
Etat des locaux : Etat d'usage, Etat d'usage
Informations complémentaires
-
Espace cuisine, Fibre optique
-
Accueil, Immeuble gardienné
-
Fibre optique










