




Location Entrepôt Classe B 70 611 m²
25000 Besançon
70 611 m²
Divisible dès 2 697 m²
à partir de 37 €
HT/HC/m²/an
Disponibilité : Immédiate

David RAYBOIS
Description
BESANÇON (25)
ENTREPÔTS LOGISTIQUES MULTI-TEMPÉRATURES CLASSE B - A LOUER
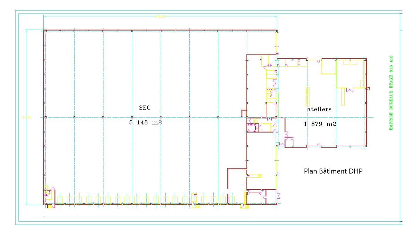
Nous vous proposons à la location des entrepôts logistiques multi-températures Classe B, d'une surface totale d'environ 70 611 m² comprenant un entrepôt froid de 24 954 m². Divisibilité possible à partir de 2 697 m². Chaque bâtiment dispose de portes à quais et portes sectionnelles. Disponibilité immédiate. Bail dérogatoire 3 ans.
ICPE : 1510-2 (E), 1511 (E), 1530-1 (NC), 1532-2 (D), 2925-1 (D), 1185 (DC), 2910 (DC), 2921 (E), 2663 (NC)
BNP PARIBAS REAL ESTATE propose à la location des entrepôts logistiques multi-températures Classe B, d'une surface totale d'environ 70 611 m² comprenant un entrepôt froid de 24 954 m². Divisibilité possible à partir de 2 697 m². Le bâtiment est situé à Besançon (25) à proximité des axes routiers N57 / A36.
Disponibilité : immédiate
Bail dérogatoire 3 ans
Caractéristiques techniques
Sols du bâtiment : béton
Locaux sociaux
Portes d'accès à quai
Portes de plain-pied
RIA
Raccordement fer
ICPE
ICPE E : 1510-2, 1511, 2921
ICPE D : 1532-2, 2925-1
ICPE DC : 1185, 2910
ICPE NC : 1530-1, 2663
Pour toute information complémentaire, contactez-nous.
Services & prestations
Normes, Certifications et Labels
-
Autorisation d'exploiter 2 : 1185, 1532, 2910, 2925
-
Autorisation d'exploiter 3 : 1510, 1511, 2921
Equipements
-
Câblage informatique
-
Faux plafond
-
Fenêtres
-
Plinthes techniques périphériques
-
Porte d'accès plain-pied
-
Porte d'accès à quai
-
Réseau Incendie Armé
-
Sols du bâtiment : Béton
-
Sprinklers
Prestations de service
-
Sécurité
Aménagements
-
Bureaux cloisonnés
-
Locaux sociaux
-
Salle informatique
-
Sanitaires
Extérieurs
-
Raccordement fer
