




Location Entrepôt Classe A 5 845 m²
30300 Beaucaire
5 845 m²
80 €
HT/HC/m²/an
Disponibilité : Immédiate

Mathieu PLANTIER
Description
BEAUCAIRE (30)
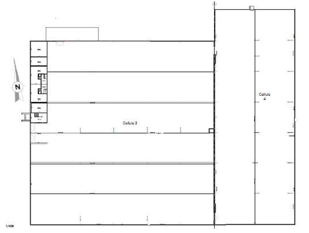
PROJET LOGISTIQUE ENTREPÔT CLASSE A - CELLULE À LOUER
Situé dans la Zone Industrielle Domitia Ouest à Beaucaire dans le Gard, nous vous proposons à la location une cellule logistique d'une superficie d'environ 5 844,70 m². Disponible immédiatement.
Certification BREEAM Excellent
ICPE : 1510 (E), 1530(E), 1532(E), 2662(E), 2663-1(E), 2663-2(E), 1511 (D), 2925 (D)
BNP PARIBAS REAL ESTATE vous propose à la location une cellule logistique, certification BREEAM Excellent, d'une surface totale d'environ 5 844,70 m². Le bâtiment est situé à Beaucaire (30) au sein de la ZI Domitia Ouest à Beaucaire dans le Gard, à proximité des axes routiers D90 / A54 / A9.
Disponibilité : immédiate
Caractéristiques techniques
Hauteur libre : 11,50 mètres
Portes d'accès à quai : 9
Portes de plain-pied : 1
Aire de manoeuvre : 35 ml
Charges au sol : 5 tonnes / m²
Sprinklers type ESFR
Parking : 76 places VL / 2 places PL
Certifications : BREEAM Excellent
ICPE
ICPE E : 1510, 1530, 1532, 2662, 2663-1, 2663-2
ICPE D : 1511, 2925
Accessibilité
Accès routiers : D90 / A54 / A9
Aéroport Nîmes Garons à 25 km
Gare Nîmes à 27 km et Gare de Beaucaire à 4 km
Pour toute information complémentaire, contactez-nous.
Services & prestations
Hauteurs
-
Hauteur libre : 11,50 mètre(s)
Normes, Certifications et Labels
-
Autorisation d'exploiter 2 : 1511, 2925
-
Autorisation d'exploiter 3 : 1510, 1530, 1532, 2662, 2663-1, 2663-2
-
Certification : BREEAM
Type / Etat du bâtiment
-
Etat de l'immeuble : Neuf
Structure du bâtiment
-
Charpente : Métallique
-
Murs : Bardage double peau
Equipements
-
Charge au sol Rdc : 5,00 tonne(s)/m²
-
Eclairage intérieur : LED
-
Porte d'accès plain-pied : 1
-
Porte d'accès à quai : 9 Niveleurs hydrauliq.
-
Réseau Incendie Armé
-
Source chauffage : Gaz
-
Sprinklers : Mono couche (ESFR) Local + Cuve
-
Transformateur
-
Zone de béquillage : Béton
Prestations de service
-
Parking : 2 Places Entrée et sortie PL distinctes, 76 Places dont 15 emplacements bornes électriques et 2 PMR / PL : 2 places
-
Sécurité : Clôture périphérique maille métallique soudée - hauteur 2M
Aménagements
-
Locaux sociaux
Extérieurs
-
Aire de manoeuvre : 35 ml
-
Local de charge
Informations complémentaires
-
Abris 2 roues, Centrale de Panneaux photovoltaïque en toiture
-
Bassin d'infiltration et bassin étanche










