




Location Entrepôt Classe A 20 513 m²
62117 Brebières
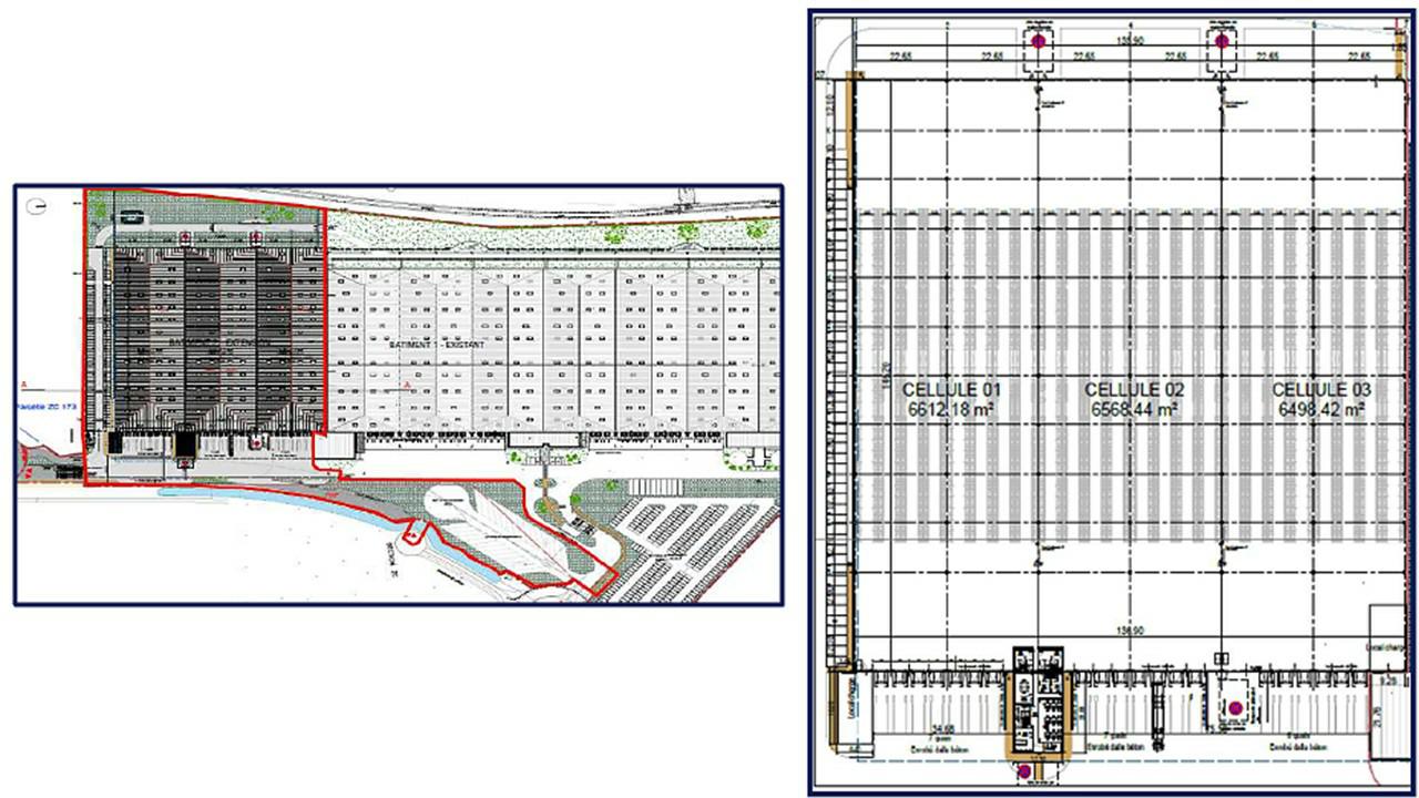
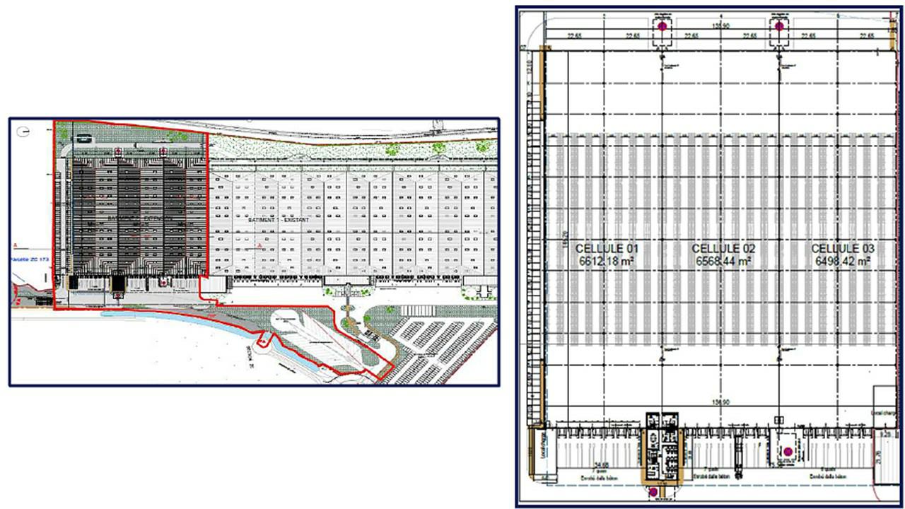
20 513 m²
Divisible dès 6 612 m²
47 €
HT/HC/m²/an
Disponibilité : Immédiate

Maxence MARECHAL
Description
BREBIERES (62)
Zac des Béliers / PC et ICPE à déposer
Entrepôt logistique à construire la commune de Brebières, à proximité de la D 621, A21, A1 et A26.
ICPE : 1510, 1530, 1532, 2662, 2663
BNP PARIBAS REAL ESTATE vous propose ce bâtiment de classe A de 3 cellules (divisible en 1-+2), qui bénéficiera d'une entrée indépendante, d'un parking VL, et de 5 parkings PL.
Autres caractéristiques :
- Portes à quai : 20 (et un accès plein pied : une rampe)
- 2 locaux de charge de 150 m² environ
- Hauteur: 12 m
- Cour de débord : plus de 35 m
- Parking VL : 100
- Parking PL: 5 parkings d'attente pour les 3 cellules, et 28 places en commun avec « BREBIERES 1 »
- Le site dans son ensemble est clos et sécurisé.
- ICPE : 1510,1, 1530,1, 1532, 1-2662, a-2663,1, 2-2925, et 2910,a
Le site est situé à BREBIERES à environ 40 km au Sud de Lille, au sein de le région des Hauts de France. Il fait partie de la ZAC des Béliers spécialisée dans l'industrie et les services.
- Accès autoroute : A1 à 7 km , D621 à 2,5 km, et A26 à 13 km.
- SNCF : TGV :Gare d'Arras à 35 km, et Lille à 50 km. TER à Brebières et Corbehem
- Aéroport de Lille Lesquin à 30 km.
Services & prestations
Hauteurs
-
Hauteur libre : 12,00 mètre(s)
Normes, Certifications et Labels
-
Autorisation d'exploiter 1 : 1510 2662, 2663
-
Autorisation d'exploiter 2 : 1530
-
Autorisation d'exploiter 3 : 1532
-
Certification : BREEAM
Type / Etat du bâtiment
-
Etat de l'immeuble : Neuf
-
Etat des locaux : Neuf
-
Immeuble indépendant
Structure du bâtiment
-
Charpente : Béton / Bois
-
Couverture : Bac acier isolé multicouches
-
Murs : Bardage métallque
Equipements
-
Charge au sol Rdc : 5,00 tonne(s)/m²
-
Câblage informatique : Plinthes périphériques
-
Eclairage intérieur : LED
-
Porte d'accès plain-pied : 1
-
Porte d'accès à quai : 20
-
Réseau Incendie Armé
-
Source chauffage : Aérotherme gaz eau chaude
-
Sprinklers : Mono couche (ESFR)
Prestations de service
-
Parking : 100 Places, 5 en attente
Aménagements
-
Hall d'accueil
-
Locaux sociaux
Extérieurs
-
Local de charge : 2 x 150 m² environ










