




Location Entrepôt Classe A 17 754 m²
71300 Montceau-les-Mines
17 754 m²
Divisible dès 4 492 m²
46 €
HT/HC/m²/an
Disponibilité : Immédiate

Nicolas MASERO
Description
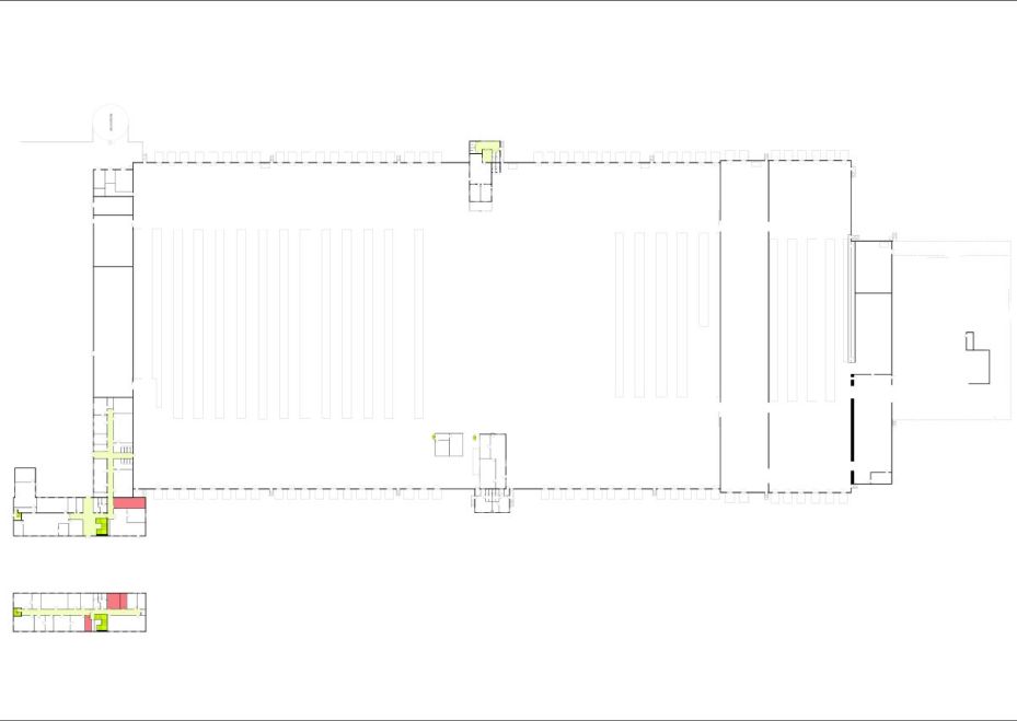
MONTCEAU-LES-MINES (71) ZI DU PRÉ LONG
ENTREPÔT LOGISTIQUE TRAVERSANT CLASSE A - CELLULES À LOUER
Au sein de la zone d'activités Le Pré Long à Montceau-Les-Mines(71), nous vous proposons à la location un entrepôt traversant de type Classe A avec cellules divisibles, accompagnées de bureaux .
ICPE Autorisation 1510 / 1530 / 1511 / 1435 / 1185 / 1532 / 2255 / 2925 / 2714 / 1432 / 2663 / 2920
MONTCEAU LES MINES (71) - ENTREPÔT LOGISTIQUE TRAVERSANT CLASSE A - CELLULES À LOUER
Dans la Zone d'Activités Le Pré Long à MONTCEAU LES MINES (71), au sein d'un entrepôt Bi-face traversant de type Classe A,
ICPE Autorisation 1510 / 1530 / 1511 / 1435 / 1185 / 1532 / 2255 / 2925 / 2714 / 1432 / 2663 / 2920
Accès :
- RN 70 : à proximité immédiate (900 m)
- A6 : 30 min
- Gare Chalon-Sur-Saône (TGV) : 47 km (35 min)
- Gare Montceau Les Mines (TER) : 3 km (6 min)
- REZO Ligne 7 (300 m)
- Aéroport Lyon Saint-Exupéry : 154 km
Caractéristiques techniques de l'entrepôt :
- Hauteur libre : 10 mètres
- Air de stockage extérieure pool palette
- Aire de manoeuvre : 35 mètres
- Charpente métallique
- Contrôle d'accès - alarme - vidéo surveillance
- Dallage : 5t/m²
- Eclairage interieur rampes tubes fluo
- Froid +2°C / +14°C sur 1 233m²
- Mur bardage double peau
- 80 portes d'accès à quai et 2 rampes d'accès (Cellules 2 et 4)
- RIA
- Sprinklers Type APSAD
- Toiture bac acier
- Transformateur 800 KVA
Caractéristiques techniques bureaux :
- Hall d'accueil
- Bureaux cloisonnés
- Câblage informatique
- Eclairage avec luminaires encastrés
- Faux plafond
- Sol moquette et carrelage
- Locaux sociaux avec douches et sanitaires
Caractéristiques autres :
- Parking : PL 22 places / VL 201 places
- Accès pers. à mobilité réduite
ICPE Autorisation 1510 / 1530 / 1511 / 1435 / 1185 / 1532 / 2255 / 2925 / 2714 / 1432 / 2663 / 2920
Services & prestations
Hauteurs
-
Hauteur libre : 10,00 mètre(s)
Normes, Certifications et Labels
-
Autorisation d'exploiter 1 : 1510 - 1530 - 2662 - 2663
Type / Etat du bâtiment
-
Etat de l'immeuble : Etat d'usage
-
Etat des locaux : Etat d'usage
Structure du bâtiment
-
Charpente : Métallique
-
Couverture : Bac acier isolé
-
Murs : Bardage double peau
Equipements
-
Charge au sol Rdc : 5,00 tonne(s)/m²
-
Câblage informatique
-
Eclairage Bureaux : Luminaires encastrés
-
Eclairage intérieur : Rampes tubes fluo.
-
Faux plafond
-
Porte d'accès à quai : 82
-
Rampes d'accès : 2
-
Réseau Incendie Armé
-
Sol bureaux : Moquette / Carrelage
-
Source chauffage : Gaz
-
Sprinklers : Type APSAD
-
Transformateur : 800 KVA
Prestations de service
-
Parking : 22 Places places / 201 places VL
-
Sécurité : Contrôle d'accès + alarme + vidéo-surveillance
Aménagements
-
Accès Pers. Mobilité Réduite
-
Bureaux cloisonnés
-
Hall d'accueil
-
Locaux sociaux : Sanitaires + douches
-
Sanitaires : Sanitaires et Douches
Extérieurs
-
Aire de manoeuvre : 35 ml
-
Aire de stockage extérieure : Pool palette
Accès véhicules
-
Accessibilité type véhicules : Tous porteurs
Informations complémentaires
-
Froid + 14°C sur 1.233 m²
-
Accès indépendants, Froid + 2° C