




Location Entrepôt 4 060 m²
95220 Herblay
4 060 m²
Divisible dès 1 393 m²
à partir de 82 €
HT/HC/m²/an
Disponibilité : Immédiate

Maxime LANDAIS
Description
Herblay
Secteur Patte d'Oie
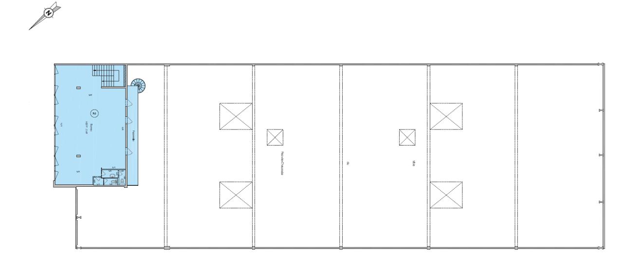
BNP PARIBAS Real Estate vous propose à la location des cellules d'activité/entrepôt avec bureaux d'accompagnements. Situé à Herblay, proche des axes routiers et transports en commun.
Ce site idéalement situé, en sortie immédiate d'autoroute A15, vous permettra d'installer votre société pour développer votre activité aussi bien pour de la production que pour votre stockage.
Ce site bénéficie d'accès d'une belle aire de manoeuvre pour accueillir vos gros porteurs, par de nombreuses portes à quai.
Toutefois, il vous sera toujours possible d'installer des rampes pour faciliter l'accès à vos petits porteurs.
N'hésitez pas à contacter votre conseiller BNPPARIBAS REAL ESTATE pour de plus amples informations.
Services & prestations
Hauteurs
-
Hauteur libre : 8,20 mètre(s) sous bardage
-
Hauteur sous poutre : 7,40 mètre(s)
Normes, Certifications et Labels
-
Autorisation d'exploiter 1 : 1510
Type / Etat du bâtiment
-
Etat de l'immeuble : Etat d'usage
-
Etat des locaux : Etat d'usage
Structure du bâtiment
-
Charpente : Béton et métallique
-
Couverture : Bac acier isolé (étanchéité multicouche)
-
Murs : Bardage double peau
Equipements
-
Charge au sol Rdc : 5,00 tonne(s)/m²
-
Eclairage Bureaux : Luminaires encastrés LED
-
Faux plafond
-
Porte d'accès à quai
-
Puissance électrique : 40,00 KWA à 80 KWA
-
Rampes d'accès : Selon les lots
-
Réseau Incendie Armé
-
Sprinklers
-
Type de chauffage : Collectif aérothermes à eau chaude
Prestations de service
-
Sécurité : Rondes de Securitas
Aménagements
-
Aménagement des bureaux : Espaces Ouverts
-
Hall d'accueil
-
Locaux sociaux : Sanitaires
Extérieurs
-
Aire de manoeuvre : Voirie lourde
Informations complémentaires
-
Cuisine










