




Location Local d'activité 3 168 m²
91090 Lisses
3 168 m²
82 €
HT/HC/m²/an
Disponibilité : Immédiate

Mathieu FOURDAN
Description
LISSES (91)
A LOUER - BATIMENT INDEPENDANT
ACTIVITE / BUREAUX
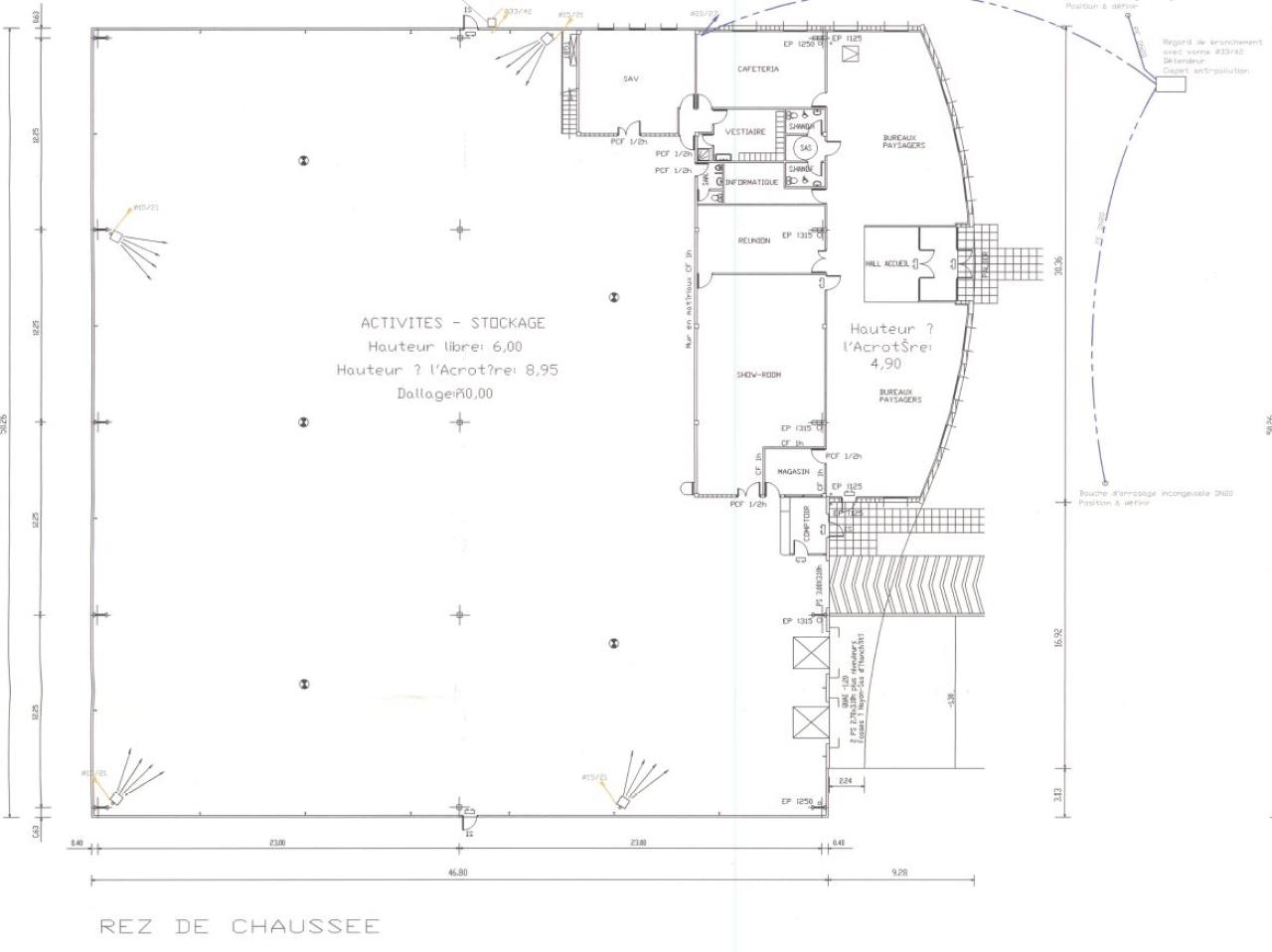
BNP PARIBAS REAL ESTATE vous propose, à la location, des un bâtiment d’activité indépendant avec bureaux d’accompagnement d’une surface de 3 168m²
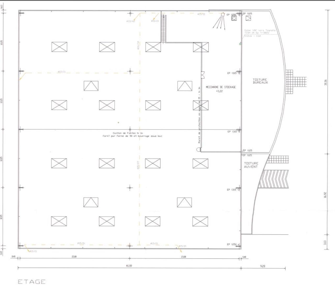
Le bâtiment offre de grands plateaux permettant une grande flexibilité d'aménagement, un accès aux véhicules légers/lourds et de nombreuses autres services et prestations techniques. Ces locaux bénéficient d’une accessibilité remarquable dans un environnement tertiaire et dynamique.
Accessibilité :
- Accès routier : N104,A6
- RER D : Esonnes Robinsson
Services / Prestations :
- Charge au sol RDC : 3t/m²
- Hauteur libre : 8,20m
- Porte d'accès à quai avce niveleurs : 2
- Porte d'accès plain-pied : 1
- Accessibilité type véhicules : tous porteurs
- Locaux sociaux : douches/vestiaires
- Hall d'accueil
- Sécurité :vidéosurveillance
Pour toute information complémentaire, n'hésitez pas à prendre contact avec nos consultants BNP PARIBAS REAL ESTATE.
Services & prestations
Hauteurs
-
Hauteur libre : 8,20 mètre(s)
Accès véhicules
-
Accessibilité type véhicules : Tous porteurs
Equipements
-
Charge au sol Rdc : 3,00 tonne(s)/m² (à confirmer)
-
Climatisation : Réversible
-
Faux plafond
-
Porte d'accès plain-pied : 1
-
Porte d'accès à quai : 2 avec niveleurs
-
Sol bureaux : Moquette
-
Sols du bâtiment : Béton
-
Source chauffage : Gaz
Structure du bâtiment
-
Charpente : Béton
-
Couverture : Bac acier isolé étanchéité multicouches
-
Murs : Bardage double peau
Prestations de service
-
Sécurité : Vidéo-surveillance
Informations complémentaires
-
Portail électrique
-
Terrain de 6 056 m²










