




Location Local d'activité 6 106 m²
59760 Grande-Synthe
6 106 m²
Divisible dès 134 m²
94 €
HT/HC/m²/an
Disponibilité : Immédiate

Hadrien NORY
Description
GRANDE SYNTHE / DUNKERQUE
BNP PARIBAS REAL ESTATE Lille vous propose à la location ce programme d'activités de plusieurs cellules d'entrepôt .
A partir de 134 m².
A louer - Cellules d'activités / stockage - GRANDE SYNTHE
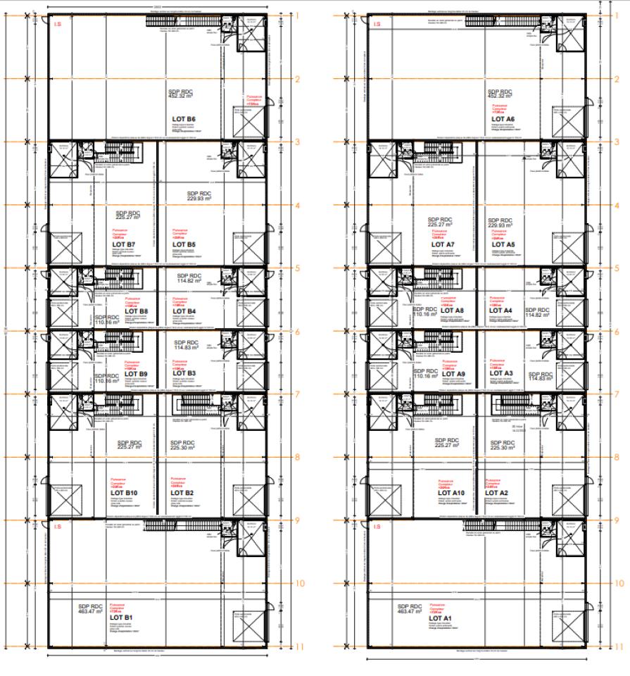
BNP PARIBAS REAL ESTATE Lille vous propose 20 Cellules de stockage disponibles au sein de ce programme d'activités.
GRANDE MODULARITÉ DES CELLULES :
134 m² - 157 m² - 230 m² - 320 m² - 547 m² - 559 m²
120 PLACES DE PARKING DONT 3 PLACES PMR 1 place pour 46,85 m²
PORTES SECTIONNELLES / CHARGE AU SOL
10 cellules en 3,5 m x 3,5 m avec 2t/m² 10 cellules en 4 m x 4 m avec 3t/m²
HAUTEUR LIBRE 6 m dans la partie entrepôt
MEZZANINE AMÉNAGÉE pour chaque cellule à usage de bureau ou de stockage
LUMIÈRE NATURELLE TOITURE SHED / POLYCARBONATE dans tous les espaces de travail
PORTES SECTIONNELLES / CHARGE AU SOL : 10 cellules en 3,5 m x3,5 m avec 2t/m² 10 cellules en 4 m x 4 m avec 3t/m²
Disponibilité : Février 2026







