




Location Local d'activité 1 834 m²
59960 Neuville-en-Ferrain
1 834 m²
Loyer sur demande
Disponibilité : Immédiate

Albane AMOROS
Description
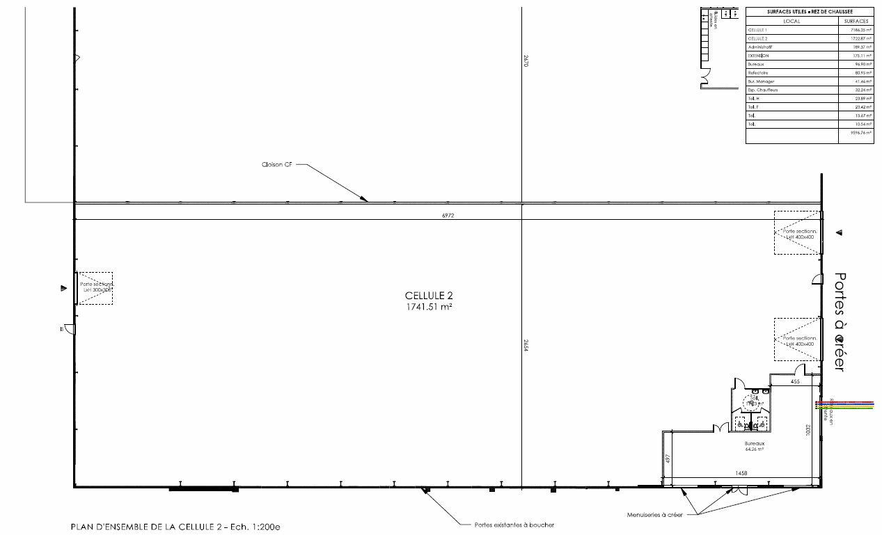
NEUVILLE EN FERRAIN - PARC NEWTON
Nous vous proposons un local d'activité / entrepôt polyvalent d'une surface de 1.834 m² à la location, idéalement accompagné de bureaux pour votre équipe.
Au sein du Parc , ce programme bénéficie d’une très bonne accessibilité par un accès direct aux grands axes autoroutiers et à sa proximité avec la Belgique.
Zone de référence de la métropole, le Parc bénéficie de nombreux commerces, services et restaurations.
Nous vous proposons un local d'activité polyvalent d'une surface de 1.834 m² à la location, idéalement accompagné de bureaux pour votre équipe. Cela vous permet de combiner vos opérations avec des espaces de travail fonctionnels, offrant une solution tout-en-un pour votre entreprise.
Reste une cellule au sein de ce parc d'activité
- Entrepôt : 1.723 m²
- Bureaux : 97 m²
- Locaux sociaux : 14 m²
La cellule bénéficie d'une porte sectionnelle et d'une belle aire de manoeuvre. La zone extérieure est spécialement conçue pour faciliter la manoeuvre des véhicules, en particulier des camions de livraison ou de transport.
ACCES
- A22 sortie n°18
- Bus à 3 min
- Métro Ligne 2 à 5 min
Disponibilité immédiate
Contactez-nous dès aujourd'hui pour planifier une visite et découvrir comment notre entrepôt peut contribuer à la croissance et à l'efficacité de votre entreprise. Nous sommes impatients de collaborer avec vous pour répondre à vos besoins de stockage.
Services & prestations
Equipements
-
Porte d'accès plain-pied
-
Sols du bâtiment : Béton
Structure du bâtiment
-
Charpente : Métallique
-
Murs : Bardage double peau
Aménagements
-
Locaux sociaux : Sanitaires
Extérieurs
-
Aire de manoeuvre
-
Aire de stockage extérieure










