




Location Local d'activité 11 194 m²
62400 Locon
11 194 m²
Loyer sur demande
Disponibilité : 01/04/2026

Albane AMOROS
Description
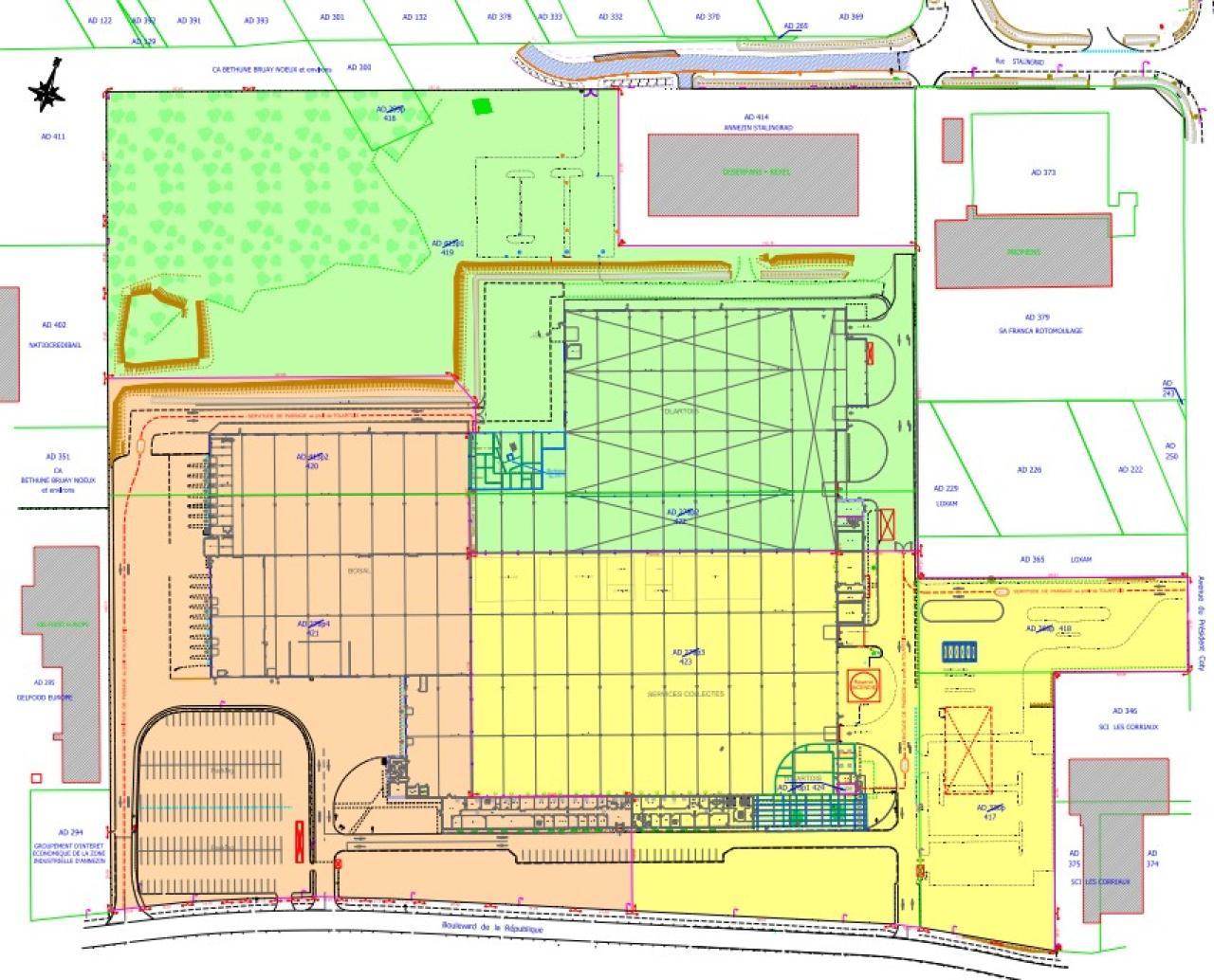
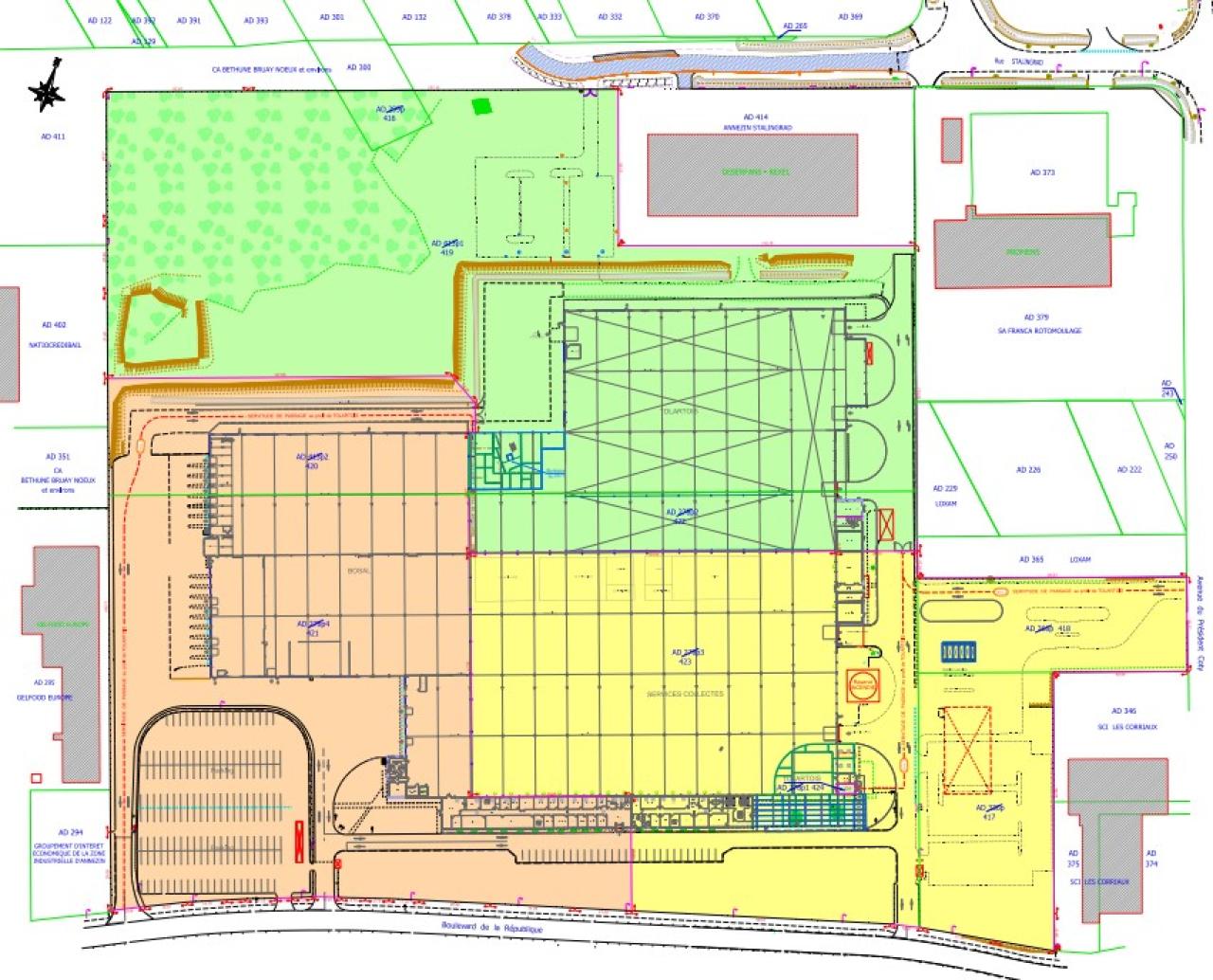
ANNEZIN / BETHUNE
BNP PARIBAS REAL ESTATE Lille vous propose à la location cet entrepôt de 11 194 m² situé sur la commune de ANNEZIN.
Entrepôt de 11 194 m² à louer Annezin (62232)
Localisation : Annezin, à proximité immédiate de Béthune, sur l'ancien site industriel Tolartois, bénéficiant d'un excellent accès aux autoroutes A26 et A21.
Idéal pour activité industrielle.
Surface totale : 11 194 m²
Bâtiment industriel rénové en 2017
Hauteur sous plafond : env. 7 à 9 m
Sol : dalle béton haute résistance
Accès poids lourds : large cour de manoeuvre (via une servitude de passage)
Portes sectionnelles : 4 accès de plain-pied
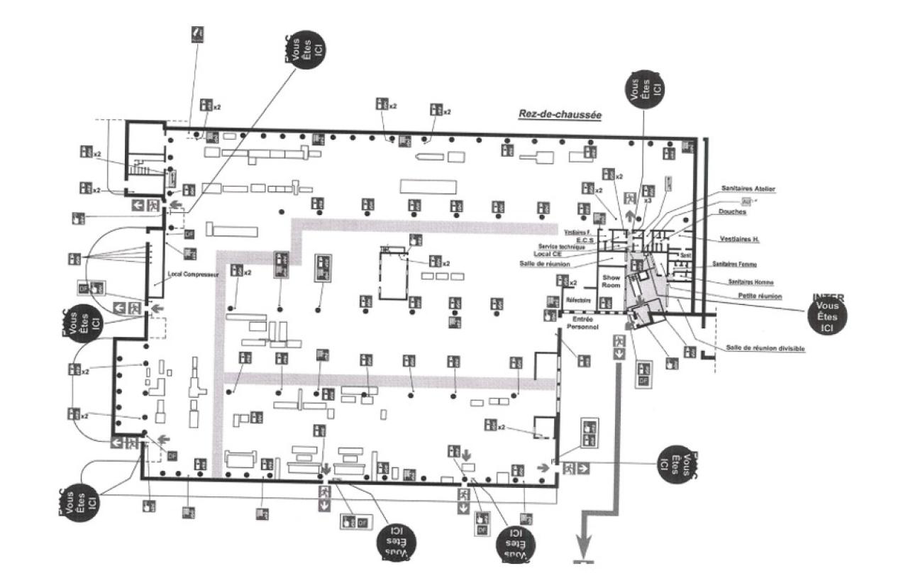
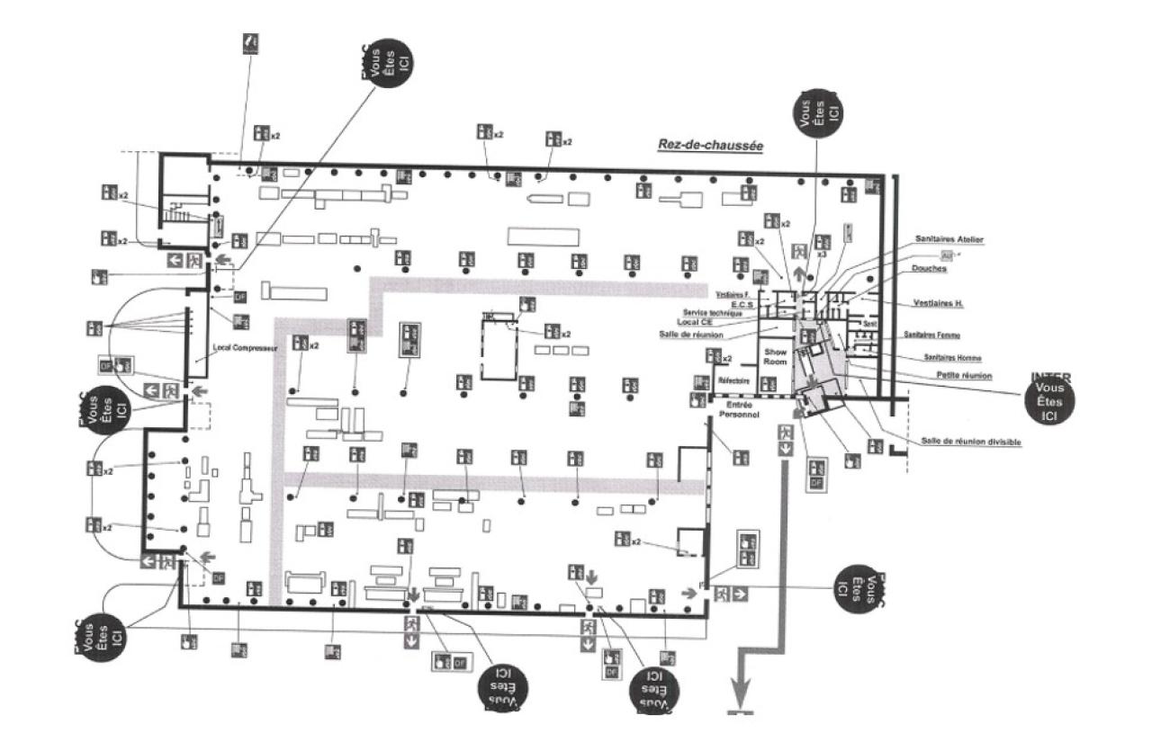
Bureaux entièrement rénové
4 ponts roulants de 5 T à 16 T
Site clos et sécurisé
40 places de parking VL
Bâtiment solide et fonctionnel
Accessibilité
5 min du centre-ville de Béthune
10 min de l'autoroute A26
35 min de Lille
1h10 de Calais
Disponibilité : Avril 2026
Services & prestations
Equipements
-
Plinthes techniques périphériques
-
Pont roulant : 4 ponts roulants de 5T à 16T
-
Porte d'accès plain-pied : 4
-
Sols du bâtiment : Béton
Structure du bâtiment
-
Couverture : Bac acier isolé
Aménagements
-
Bureaux cloisonnés
-
Sanitaires
Informations complémentaires
-
Climatisation, Entre 7 et 9 m
-
Entièrement rénovés










