




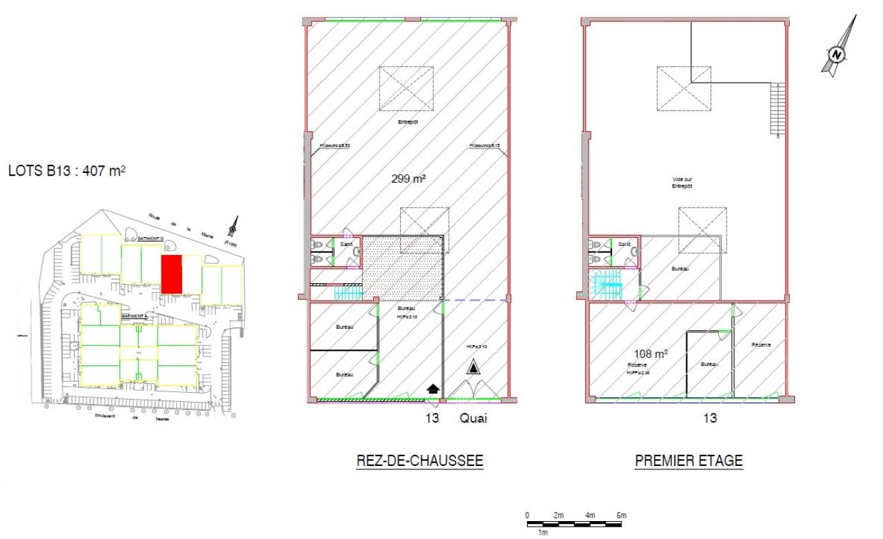
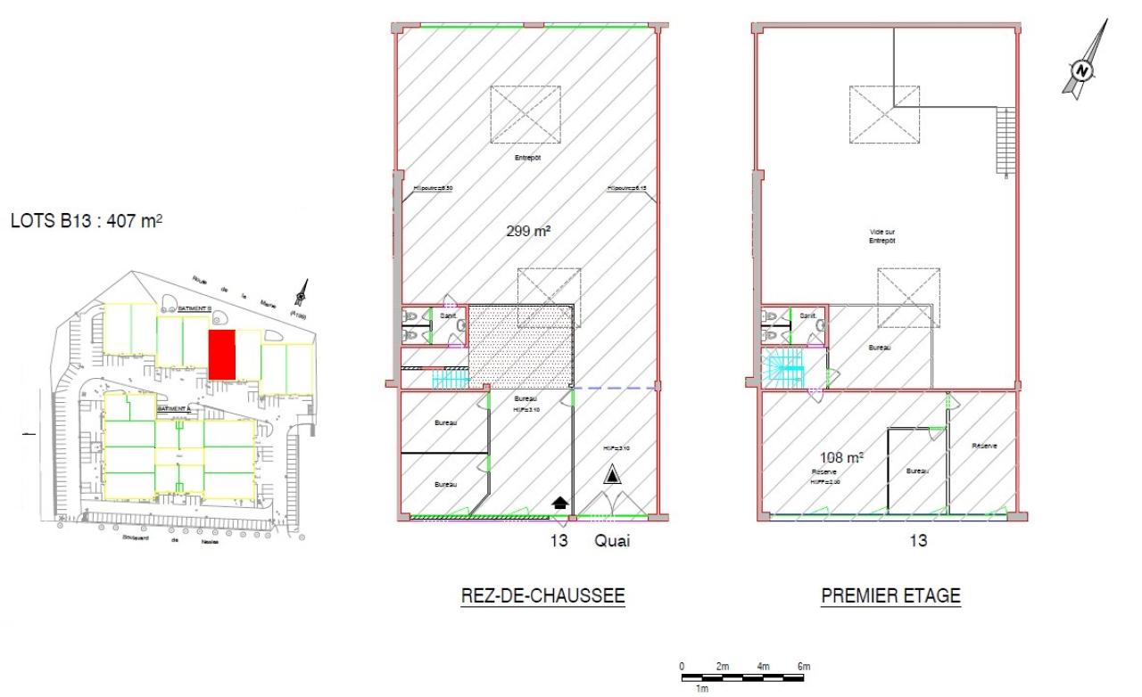
Location Local d'activité 407 m²
77420 Champs-sur-Marne
407 m²
110 €
HT/HC/m²/an
Disponibilité : 01/07/2026

Medina STEFANOVIC
Description
CHAMPS-SUR-MARNE (77)
A Louer
BNP PARIBAS REAL ESTATE vous propose, à la Location, une cellule d'activité avec Bureaux d'accompagnement, situé au sein d'un Parc d'Activité à Champs-sur-Marne.
Le site est situé à 500 mètres de la Gare du RER A et à proximité de l'Autoroute A4.
Services & prestations
Hauteurs
-
Hauteur libre : 3,00 mètre(s) à 6 mètre(s)
Accès véhicules
-
Accessibilité type véhicules : Tous porteurs
Equipements
-
Charge au sol Etage : 250,00 kg/m²
-
Charge au sol Rdc : 3,00 tonne(s)/m²
-
Eclairage Bureaux : Luminaires encastrés
-
Eclairage naturel : Skydomes
-
Faux plafond
-
Porte d'accès plain-pied : (3 m x 3 m)
-
Revêtement mural
-
Sol bureaux : Moquette
-
Sols du bâtiment : Béton
-
Source chauffage : Gaz Aérothermes
-
Type de chauffage : Individuel
Type / Etat du bâtiment
-
Etat de l'immeuble : Etat d'usage
-
Etat du terrain : Voirie lourde
Structure du bâtiment
-
Charpente : Béton
-
Couverture : Bac acier isolé
-
Murs : Parpaings
Prestations de service
-
Parking : 164 Places
Aménagements
-
Locaux sociaux : Sanitaires
Informations complémentaires
-
Chauffage par convecteurs électriques
-
Double vitrage










