




Location Local d'activité 5 000 m²
77127 Lieusaint
5 000 m²
110 €
HT/HC/m²/an
Disponibilité : 9 mois après accord

Romain LENOBLE
Description
LIEUSAINT (77) - A VENDRE - LOUER
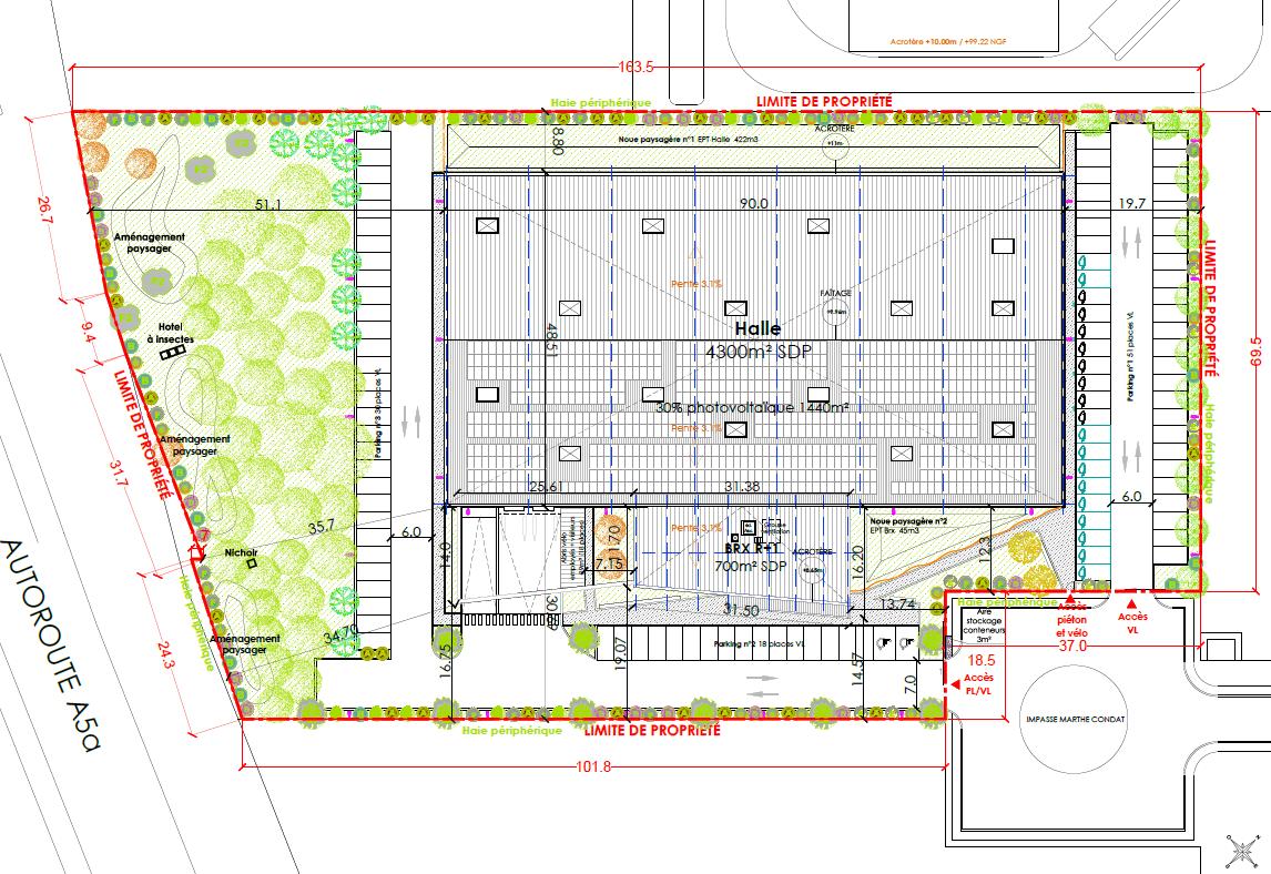
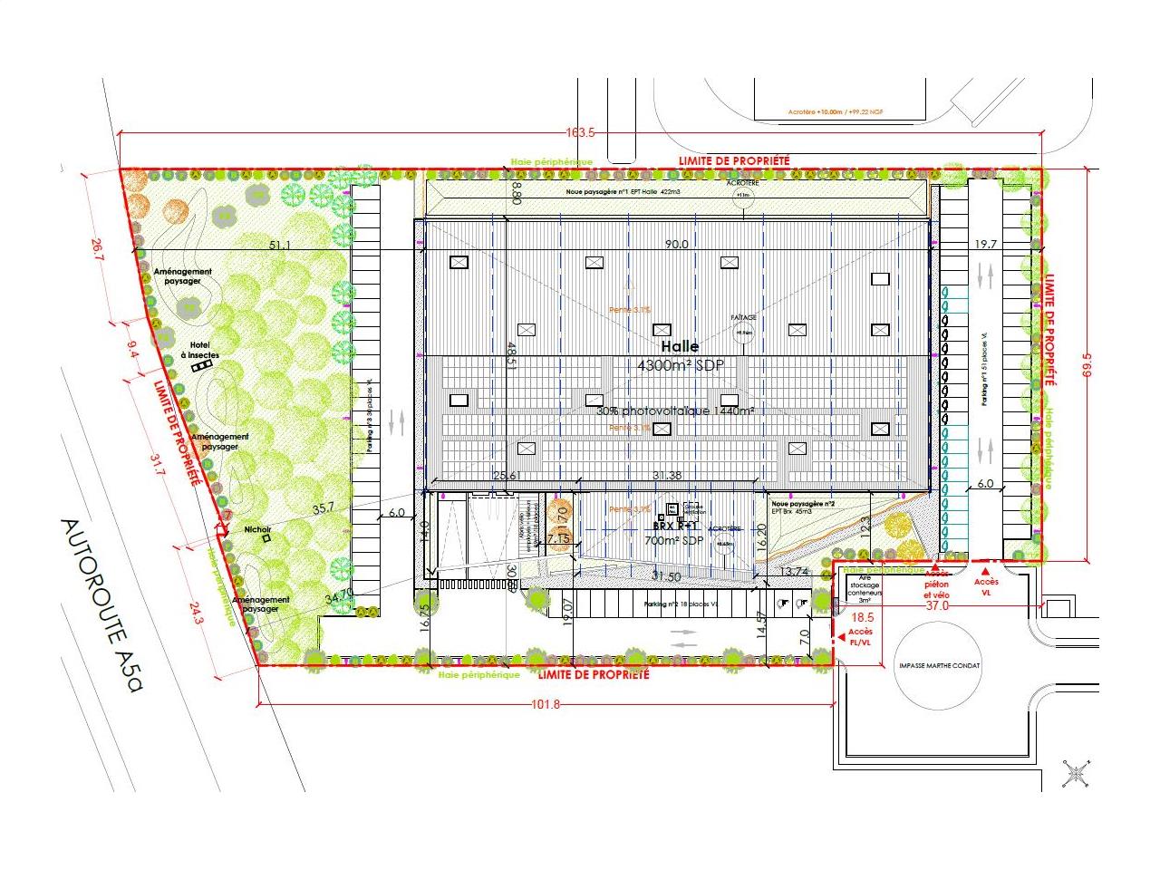
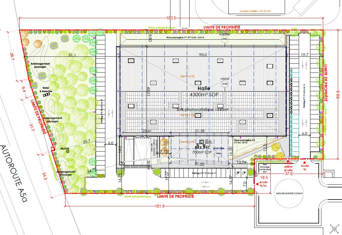
BNP PARIBAS REAL ESTATE vous propose, à Lieusaint un bâtiment d'activité et bureau à vendre ou à louer.
BNP PARIBAS REAL ESTATE vous propose, à la location ou à l'acquisition un bâtiment d'activité neuf d’une surface de 5 000 m².
Le bâtiment offre de grands plateaux permettant une grande flexibilité d'aménagement, un accès aux véhicules légers/lourds et de nombreuses autres services et prestations techniques. Ces locaux bénéficient d’une accessibilité remarquable dans un environnement tertiaire et dynamique.
Accessibilité :
- Accès routier : A5;N104;N6
- RER D :Lieusaint Moissy
- Bus 27 : Levant Margurite
Services/prestations
- Porte d'accès plain-pied : 1
- Porte d'accès à quai : 2
- Hauteur sous poutre : 8m
- 1 440m² de panneaux photovoltaïque
- Parking : 99 places
Pour toute information complémentaire, n'hésitez pas à prendre contact avec nos consultants BNP PARIBAS REAL ESTATE.
Services & prestations
Hauteurs
-
Hauteur sous poutre : 8,00 mètre(s)
Equipements
-
Climatisation
-
Porte d'accès plain-pied : 1
-
Porte d'accès à quai : 2 PL
Type / Etat du bâtiment
-
Etat de l'immeuble : Neuf
-
Etat des locaux : Neuf
Structure du bâtiment
-
Charpente : Béton
Prestations de service
-
Parking : 99 Places
Informations complémentaires
-
1 440 m² de photovoltaïque










