




390 Rue Louis Blériot
78530 Buc
169 m²
350 000 €
HT/HD
Disponibilité : Immédiate

Mikael FLEISMAHER
Description
BNP Paribas Real Estate vous propose à la vente un ensemble immobilier en pleine propriété sur la commune de BUC (78).
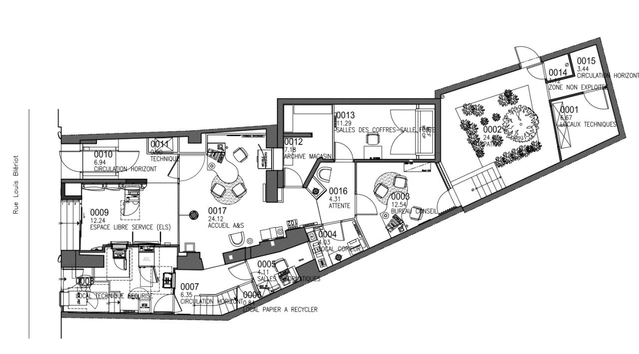
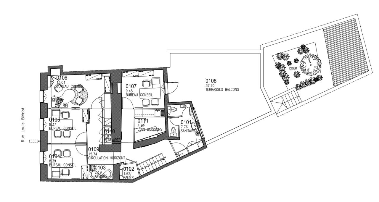
L'immeuble dispose d'une surface totale de 169,28 m² (Carrez) sur deux niveaux, composé de 103,11 m² au rez-de-chaussée et 66,17 m² à l'étage.
Petite courette privative à l'arrière des locaux ainsi qu'un potentiel toit-terrasse à l'étage. Ensemble immobilier disposant à ce jour d'une affection 100% commerciale.










