




Vente Local d'activité 50 430 m²
62575 Blendecques
50 430 m²
9 800 000 €
HT/HD
Disponibilité : Immédiate

Albane AMOROS
Description
BLENDECQUES
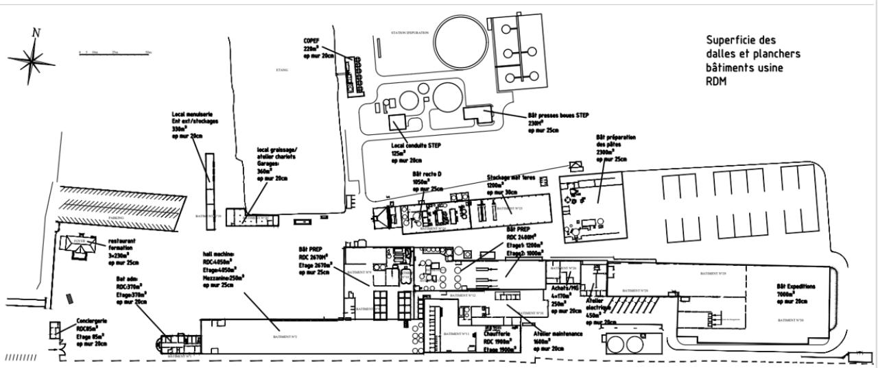
À VENDRE – SITE INDUSTRIEL D’ENVERGURE À BLENDECQUES (62) - ENTREPOT
Surface totale : 50 430 m²
Ancien site RDM – Opportunité rare au cœur de la région Hauts-de-France
Découvrez cette opportunité unique à Blendecques : idéalement situé à proximité immédiate de Saint-Omer, dans un environnement stratégique au carrefour des grands axes européens.
La surface foncière totale de 25 ha est déjà en fonction et permet donc d'éviter la contrainte de la loi ZAN, Zéro Artificialisation Nette.
Le site est dans le secteur économique de la CAPSO (Pays de St Omer).
Le site industriel est situé à proximité de la ZA Porte Multimodale et accessible depuis l'autoroute A26. Il est proche des usines Arc France et Goudale. Gare de Saint-Omer à 10 min
Electricité :
La limite actuelle du réseau est de 12 MW.
La puissance souscrite était de 8.3 MW lorsque l'usine était en fonctionnement.
La tension d'entrée est de 15000 Volt.
La consommation d'électricité annuelle en fonctionnement était de 60.000 MWh/an.
À la recherche de locaux ou d'entrepôts à louer ou à vendre dans la métropole lilloise / Lille ? Découvrez nos offres de location et de vente dans les parcs d'activités et zones d'activité du Nord Pas de Calais. Que ce soit pour des cellules de stockage, hangar, industrie, du foncier ou des projets clé en main, nos surfaces sont disponibles pour répondre à vos besoins.


