




Vente Local d'activité 2 395 m²
69440 Taluyers
2 395 m²
Divisible dès 150 m²
à partir de 268 500 €
HT/HD
Disponibilité : Immédiate

Amin BOUTCHAR
Description
Taluyers (69)
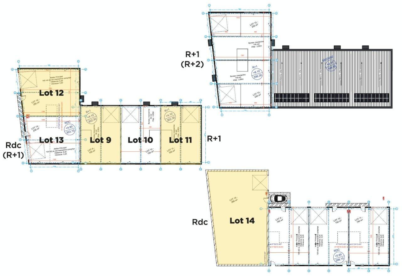
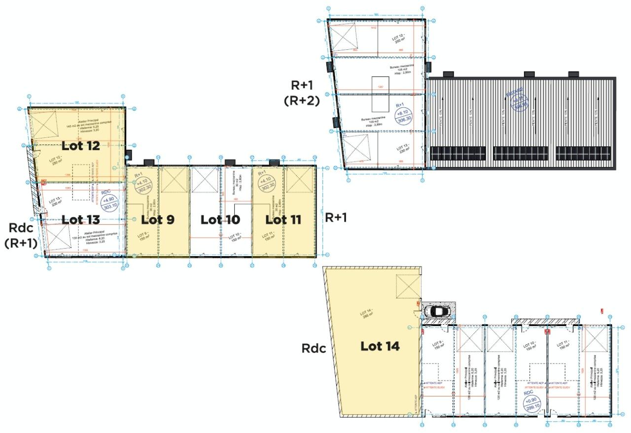
VENTE - NEUF - TALUYERS (69)- BNP PRE vous propose à la vente plusieurs cellules d'activités sur la commune de Taluyers (69). Proche de la D342. Disponible fin 2025. Venez découvrir nos cellules à partir de 150 m² équipées d'une mezzanine et d'une porte d'accès plain-pied par lot (3.80mX4m). BNP PRE vous accompagne dans tous vos projets. A votre disposition.
Côté accessibilité, ces cellules d'activité profitent de dessertes efficaces vers les axes départementaux reliant l'ensemble du pays mornantais à Brignais, Givors et à la métropole lyonnaise. Les connexions rapides vers l'A450 et la A7 facilitent les déplacements vers les pôles économiques du sud-ouest lyonnais.
Services & prestations
Hauteurs
-
Hauteur libre : 6,00 mètre(s)
-
Hauteur sous poutre : 3,15 mètre(s) Lot 14
Accès véhicules
-
Accessibilité type véhicules : Tous porteurs
Equipements
-
Charge au sol Etage : 250,00 kg/m²
-
Charge au sol Rdc : 1,50 tonne(s)/m²
-
Porte d'accès plain-pied : 1 par lot (3.80x4m)
-
Puissance électrique : Tarif Bleu
Structure du bâtiment
-
Charpente : Métallique
-
Couverture : Bac acier isolé
-
Murs : Bardage double peau
Prestations de service
-
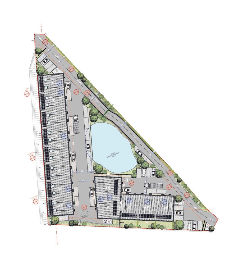
Parking : 39 Places
-
Sécurité : Contrôle d'accès 2 portails motorisés
Aménagements
-
Mezzanine
Informations complémentaires
-
Panneaux photovoltaïques sur chaque lot. Puissance 4Kvc










