




GARDEN SPACE
240 Rue Evariste Galois
06410 Biot
950 m²
235 €
HT/HC/m²/an
Disponibilité : Immédiate

Marine NICOLAS
Description
GARDEN SPACE : plateau clé en main !
Livré en 2020, cet immeuble propose des bureaux à louer à Sophia Antipolis au sein d’un actif tertiaire à énergie positive, certifié RT 2012. Le lot présenté, en excellent état, bénéficie d’une vue dégagée sur la technopole et d’aménagements permettant une installation immédiate des équipes. Les locaux peuvent être adaptés à un usage ERP de type W.
LOCATION BUREAUX - SOPHIA ANTIPOLIS - GARDEN SPACE
BNP Paribas Real Estate vous propose des bureaux à louer au sein du Garden Space, situé au 240 Rue Evariste Galois à Biot (0410), le bâtiment fait partie de 3 immeubles regroupés au sein de Garden Space.
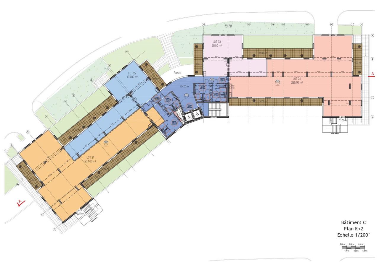
Au R+2 du Bât C : un lot clé en main de 950 m² à louer avec des places de stationnement en sous-sol.
Au coeur de la 1ère technopole d'Europe qui regroupe de nombreuses entreprises de multiples domaines comme la recherche, la santé, l'ingénierie, les sciences de la vie et l'environnement Sophia Antipolis est implantée dans un site préservé et agréable de par ses grands espaces verts.
Services de l'immeuble et avantages :
- Ascenseurs
- Terrasses privatisées
- Accès PMR
- Panneaux photovoltaïques
- Climatisation
- Faux plafonds et faux planchers
- Douches et sanitaires communs
- Hauteur sous plafond de 2,65 m
- Bien desservi
Ce quartier regroupe différents services tels que des snacks, restaurants, commerces, banques, pharmacie, des hôtels, une crèche accessibles facilement autour du bâtiment.
La technopole est parfaitement desservie par le réseau de transports en commun et les voix de circulation sont directement accessibles depuis la sortie d'autoroute.
Accessibilité :
- Autoroute A8 à 10 mn
- Gare SNCF d'Antibes à 15 mn
- Gare routière de Valbonne à 7 mn
- Aéroport de Nice Côte d'Azur à 20 mn
- Station BHNS à 2 mn
Services & prestations
Aménagements
-
Accès Pers. Mobilité Réduite
Equipements
-
Ascenseurs
-
Climatisation : Air rafraîchi type VRV
-
Câblage informatique : Foisonnement courant fort et faible / 2 prises électriques +
-
Eclairage Bureaux : Luminaires encastrés LED en faux-plafond
-
Faux plafond
-
Faux plancher
-
Gestion technique centralisée
-
Source chauffage : Photovoltaïque
Hauteurs
-
Hauteur sous-plafond : 2,65 mètre(s)
Prestations de service
-
Cafétéria : Snack restauration : 180 m²
-
Parking : 308 Places 1/25 m² loués
Extérieurs
-
Droit terrasse : 70 m² Privative
-
Terrasses - jardins : Terrasses privatives
Normes, Certifications et Labels
-
Catégorie ERP : ERP 5 type W possible
-
Certification : Autre certification
Structure du bâtiment
-
Extraction / Conduit cheminée
Type / Etat du bâtiment
-
Etat des locaux : Neuf
Informations complémentaires
-
Faibles charges d'exploitation, Fibre optique
-
Bâtiments à énergie positive, Panneaux photovoltaïque
-
Capacitaire 1/12,5 m²










