




Location Bureau 973 m²
30220 Aigues-Mortes
973 m²
139 €
HT/HC/m²/an
Disponibilité : Nous consulter

Rodolphe CHEVALLIER
Description
AIGUES-MORTES - TERRE DE CAMARGUE - LE THELIS - BUREAUX A LOUER
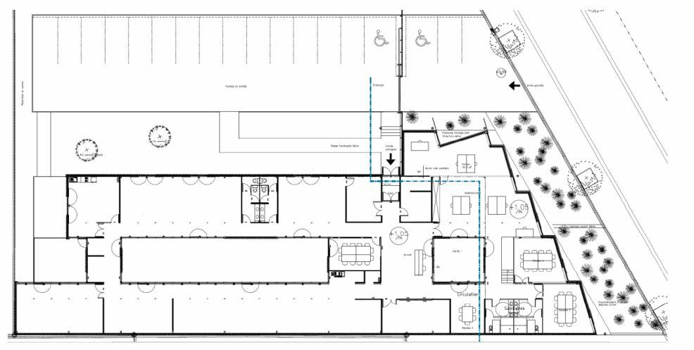
Bâtiment indépendant sur site clos et sécurisé en bordure de la D62 dans la zone artisanale "Terre de Camargue" à Aigues-Mortes.
Immeuble édifié sur deux niveaux offrant des prestations qualitatives et un patio.
18 places de parking dont 2 PMR.
LOCATION BUREAUX - AIGUES-MORTES - ZA TERRE DE CAMARGUE
Au coeur de la Zone Artisanale Terre de Camargue d'Aigues-Mortes, à 30 minutes de Montpellier, découvrez ces bureaux à vendre en bloc au RDC et R+1 de l'immeuble indépendant Le Thélis. Le site est clos et sécurisé par une alarme, un interphone et un contrôle d'accès.
Le bâtiment de 972 m² dispose des prestations suivantes : ossature et charpente métallique, bardage métallique double peau à onde fine, résille extérieure lamellée bois en façade (partie basse), toiture terrasse couverture bac acier, accès PMR.
Aménagés en open space et cloisonnés, ces bureaux climatisés sont équipés de belles prestations : câblage informatique, luminaires suspendus, sol en béton ciré, sanitaires privatifs.
Les utilisateurs pourront bénéficier d'une terrasse aménagée et de parking extérieur. Possibilité de créer 8 places de parking supplémentaires ainsi qu'un abri vélo.
N'hésitez pas à nous contacter pour plus de renseignements ou convenir d'une visite.
Accessibilité :
- Gare Sud de France à 22 minutes
- A709 à 19 minutes
- Aéroport de Montpellier à 16 minutes
Services & prestations
Aménagements
-
Accès Pers. Mobilité Réduite
-
Aménagement des bureaux : Cloisonnés/Ouverts
-
Effectif théorique
-
Sanitaires : Privatif(s)
Equipements
-
Climatisation : Réversible
-
Câblage informatique
-
Eclairage Bureaux : Luminaires suspendus
-
Production climatisation : Autonome
-
Sol bureaux : Béton ciré
Prestations de service
-
Parking : 18 Places Dont 2 PMR
-
Sécurité : Contrôle d'accès Alarme et interphone
Extérieurs
-
Terrasses - jardins
Type / Etat du bâtiment
-
Etat de l'immeuble : Etat d'usage
-
Etat des locaux : Etat d'usage
-
Immeuble indépendant
Informations complémentaires
-
Ossature et charpente métalliques
-
Résille extérieure bois
-
Bardage métallique










