




425 Rue Jean Rostand
31670 Labège
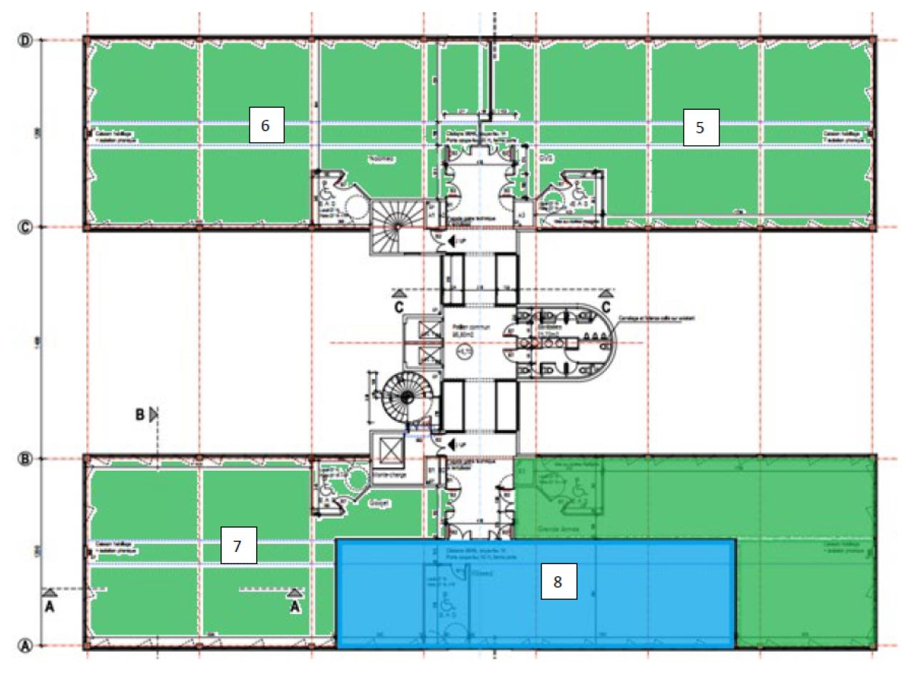
2 163 m²
Divisible dès 205 m²
125 €
HT/HC/m²/an
Disponibilité : Immédiate

Aymeric DE SAINT AULAIRE
Description
*** TOULOUSE SUD-EST / LABEGE ENOVA / BUREAUX A LOUER***
Au sein d'un immeuble occupé par un écosystème de start-up, BNP Paribas Real Estate vous propose plusieurs surfaces à usage de bureaux en bon état, disponibles à la location.
Au coeur de la ZAC de Labège Enova (ex Labège Innopole), proche des commerces & services (cinéma GAUMONT, centre commercial), du Centre de Congrès DIAGORA et du lac, découvrez l'immeuble tertiaire E-VOLUTION occupé par un écosystème de start-up et sociétés de conseil.
Les bureaux disponibles à la location sont en bon état, fonctionnels et lumineux. Ils vous permettront d'emménager rapidement.
PRESTATIONS :
Climatisation : Réversible
Distribution climatisation : Ventilo convecteur en plafonnier
Sécurité : Contrôle d'accès
Aménagement des bureaux modulable : Cloisonnés/Ouverts
Faux plafond : Dalles en fibre minérale
Plinthes techniques périphériques + perches
Ascenseur / Monte-charge
Eclairage Bureaux : Luminaires encastrés
Sol bureaux : Moquette
Sanitaire(s) : Parties communes
Douche(s)
Distribution chauffage : Réversible
Production climatisation : Autonome
Accès PMR (Personne à Mobilité Réduite)
Archives en sous-sol
ACCESSIBILITE :
Métro : Ligne B 6,5 km
Bus lignes n°79 e 109 à 100 m
Gare TER de Labège Inoopole à 10 min à pieds
Desserte routière sortie n°19 à 1 km
Aéroport Toulouse Blagnac à 26 kms
Parking vélos & Parking voiture de 54 places.
Concentrez-vous sur votre croissance, BNP Paribas Real Estate s'occupe de votre projet immobilier ! L'intégralité de nos offres sur : https://www.bnppre.fr/toulouse
Zoom sur Labège Enova :
La 3ème ligne de métro permettra à terme de relier la ZAC Labège Enova au centre-ville de Toulouse en moins de 15 min, 3 stations sont prévues pour desservir la zone à horizon 2028.
Le Parc d'Activités de Labège Enova regroupe un ensemble d'environ 700 entreprises, un centre commercial (CARREFOUR LABEGE 2), un cinéma, de nombreux restaurants et un centre des Congrès (DIAGORA).
Depuis 2014, un projet ambitieux de réaménagement du parc d'activité Enova Labège Toulouse (ex Labège-Innopole) en lien avec l'arrivée du métro est en réflexion. Un projet qui entre progressivement en phase opérationnelle.
Le Sicoval pilote actuellement une grande opération urbaine sur le quartier Enova Labège-Toulouse qui vise à développer de nouveaux quartiers économiques, commerciaux et résidentiels.
L'actualité liée au projet de 3ème ligne de métro Toulouse Aerospace Express (TAE), à l'achat d'un terrain de 10 hectares au coeur d'Enova Labège-Toulouse (ex terrain Sanofi) par le Sicoval et à la rénovation du pôle commercial ont amené à faire évoluer le projet d'aménagement initial.
Les évolutions présentés en Conseil permettront :
de répondre aux nouveaux enjeux de mobilité et de déplacements grâce à :
- la création d'un nouvel axe routier Est/Ouest permettant de limiter la circulation au coeur d'Enova Labège-Toulouse et la saturation des RD 16 et 916,
- de nouvelles aires de stationnement au niveau de la connexion entre les lignes B et TAE (secteur de la future station INPT),
- l'étude sur le doublement (passage à 2X2 voies) de la RD 916,
- la modification du tracé de la Diagonale (voie traversant Enova Labège-Toulouse dédiée aux modes doux) afin d'assurer l'accessibilité de l'ensemble du parc d'activité en 5 min à pied ou grâce à une navette électrique sans conducteur depuis les 3 nouvelles stations de métro,
d'intégrer les réflexions en cours entre le Sicoval et Tisséo-SMTC sur l'implantation des nouvelles stations de la 3e ligne de métro ;
de consacrer 100 000 m², situés au coeur d'Enova Labège-Toulouse, à l'émergence d'un futur pôle numérique.
Un changement d'identité pour un nouveau positionnement
Parallèlement, le Sicoval a mené une réflexion auprès des acteurs économiques, des élus du territoire, etc afin d'établir une nouvelle stratégie de valorisation de ce parc d'activité. L'axe de communication stratégique choisi est celui du « circuit court de l'innovation » : ce parc doit devenir le lieu de prédilection où les innovations de demain seront inventées et testées grandeur nature. Il a donc été rebaptisé Enova Labège-Toulouse. Enova fait référence à l'occitan « ennovada » qui signifie « innovation », et permet ainsi de faire le lien entre l'identité régionale de l'Occitanie et l'univers de l'innovation.
Services & prestations
Aménagements
-
Accès Pers. Mobilité Réduite
-
Aménagement des bureaux : Cloisonnés/Ouverts
-
Sanitaires : Parties communes
Equipements
-
Ascenseurs : / Monte-charge
-
Climatisation : Réversible
-
Distribution chauffage : Réversible
-
Distribution climatisation : Ventilo convecteur en plafonnier
-
Douche
-
Eclairage Bureaux : Luminaires encastrés
-
Faux plafond : Dal. fibres minéral.
-
Plinthes techniques périphériques : + perches
-
Production climatisation : Autonome
-
Sol bureaux : Moquette
Prestations de service
-
Sécurité : Contrôle d'accès
Extérieurs
-
Terrasses - jardins : Loyer : 70 € HT/m²
Type / Etat du bâtiment
-
Etat de l'immeuble : Etat d'usage
-
Etat des locaux : Etat d'usage
-
IGH / Code du travail : Code du travail
Informations complémentaires
-
Local archive 70 m² et local serveur 16 m² : charges 25 € HT/m²/an
-
Salle de sport










