

Location Bureau 414 m²
92100 Boulogne-Billancourt
414 m²
300 €
HT/HC/m²/an
Disponibilité : Immédiate

Sixtine LAFONT-BARNY
Description
Sous-location PLUG & PLAY au cœur du quartier emblématique du Trapèze
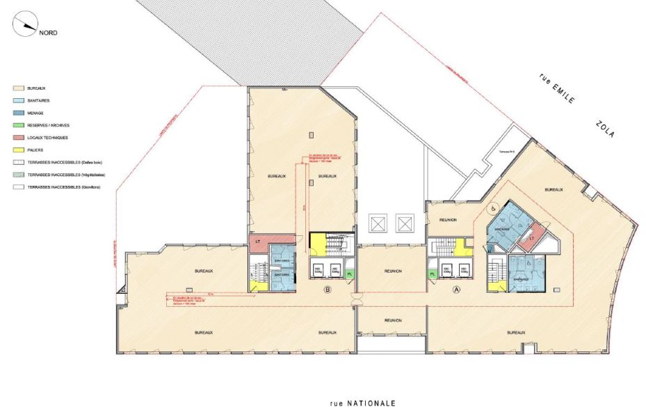
BNP PARIBAS REAL ESTATE vous propose à la location un plateau de bureaux Plug&Play de 400m², situé dans l'Immeuble AUSTRALIA, ce bien bénéficie des certifications les plus exigeantes en matière de performance environnementale : NF HQE "Excellent", HPE, BBC, Effinergie et BREEAM Very Good. L'immeuble est facilement accessible avec deux entrées au 93 rue Nationale et au 216 rue Emile Zola, et a été adapté pour être complètement accessible aux personnes en situation d'handicap.
La surface est disponible immédiatement
L'immeuble possède une hôtesse d'accueil.
Places de Parking disponibles
Services & prestations
Equipements
-
Climatisation : Air rafraîchi
-
Type de chauffage : Individuel
Prestations de service
-
Restauration : 15 Place(s) assise(s)
Type / Etat du bâtiment
-
Etat de l'immeuble : Rénové










