




Location Bureau 540 m²
34000 Montpellier
540 m²
Divisible dès 86 m²
à partir de 110 €
HT/HC/m²/an
Disponibilité : Immédiate

Rodolphe CHEVALLIER
Description
MONTPELLIER EST - A LOUER- MILLÉNAIRE - PARC CLUB 9 - LOCATION DE BUREAUX
A louer, immeuble de bureaux Parc Club 9 de 540 m² divisibles en 5 lots à partir de 86 m².
Bâtiment indépendant au sein du Parc Club du Millénaire.
Nombreux parkings à proximité immédiate d’un accès à l’A9.
LOCATION BUREAUX - MONTPELLIER EST - MILLÉNAIRE - PARC CLUB
A l'Est de Montpellier dans le parc tertiaire du Millénaire, parc dynamique et très prisé, découvrez ces bureaux à la location en cours de rénovation au sein de l'immeuble Parc Club 9.
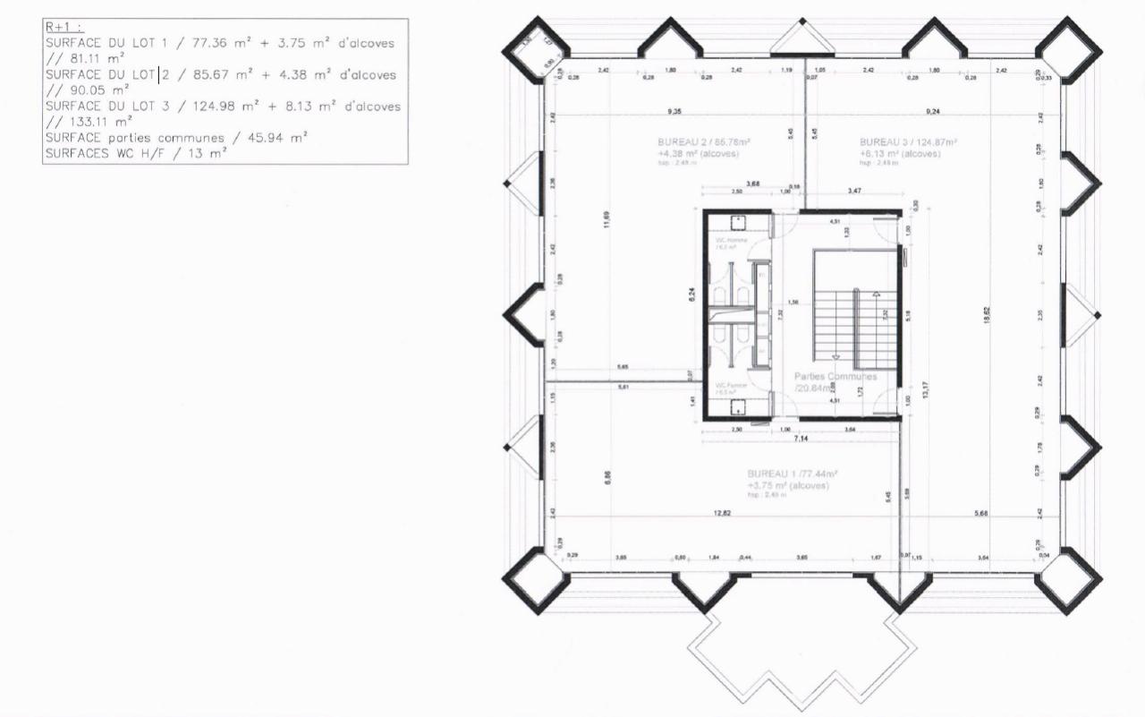
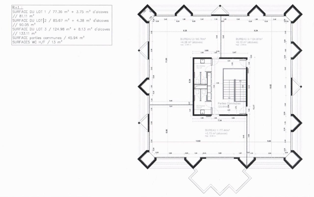
Ce bâtiment de 540 m² sera réparti comme suit :
- Au rez-de-chaussée, 2 lots de bureaux disponibles de 94 m² et 150 m².
- Au 1er étage, 3 lots disponibles entre 81 et 133 m². Les lots 5 et 7 peuvent être regroupés, une porte ayant été intégrée dans la cloison, soit 244 m².
Les parkings extérieurs sont libres en foisonnement.
La présence d'un jardin arboré, Poumont Vert du Parc, accompagné d'une fontaine apporte une touche de sérénité au cadre de travail.
Le Parc Club est situé dans une des plus grandes zones tertiaires de Montpellier. Il regroupe toutes les typologies d'entreprises (sièges sociaux, PME/TPE).
Le site du Parc Club bénéficie de nombreux services à proximité immédiate tels que : la reprographie, des restaurants, des salles de fitness, le Centre Commercial Odysseum...
Il bénéficie d'une excellente localisation à proximité immédiate d'un accès à l'A9.
Envie de rejoindre ce village attrayant ? N'hésitez pas à nous contacter pour plus d'informations ou une visite.
ACCESSIBILITÉS :
- Bus n°9 et la Ronde
- Gare Saint Roch à 15 min
- Tramway L1 arrêt 'Odysseum' à 15 min
- A9 à 5 min
- Aéroport de Montpellier à 10 min
Services & prestations
Aménagements
-
Accès Pers. Mobilité Réduite
-
Aménagement des bureaux : Cloisonnés/Ouverts
-
Complexe Salle de réunion : Sur site Parc Club
Equipements
-
Climatisation : Réversible double flux
-
Distribution climatisation : Ventilo convecteur en plafonnier
-
Eclairage Bureaux : Luminaires encastrés
-
Faux plafond : Dal. fibres minéral.
-
Plinthes techniques périphériques
-
Sol bureaux : Moquette
-
Type de chauffage : Individuel Electrique
Prestations de service
-
Parking : Au foisonnement
-
Sécurité : Contrôle d'accès
Type / Etat du bâtiment
-
Etat de l'immeuble : Rénové
-
Etat des locaux : Etat d'usage
-
Immeuble indépendant
Informations complémentaires
-
Espace de stockage, Sols : Dalles thermostatiques - Effet Parquet
-
Etat des locaux : état d'usage, Placards dans les alcoves










