




Location Bureau 687 m²
34000 Montpellier
687 m²
Divisible dès 91 m²
à partir de 110 €
HT/HC/m²/an
Disponibilité : Immédiate

Rodolphe CHEVALLIER
Description
MONTPELLIER EST - MILLENAIRE - PARC D'ATELIERS TECHNOLOGIQUES 11 - BUREAUX A LOUER
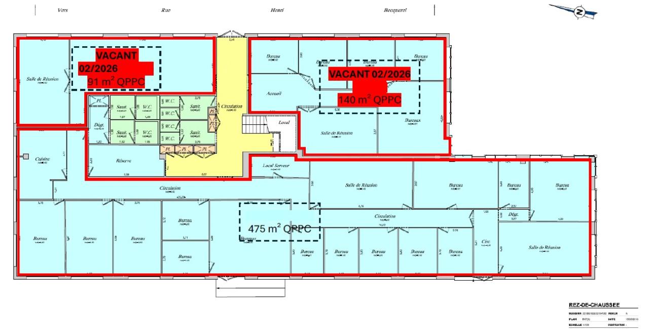
À l'Est de Montpellier, au sein du Parc du Millénaire, découvrez ces 4 lots de bureaux à la location aux RDC et R+1 de l'immeuble PAT 11, à partir de 91 m² jusqu'à 261 m².
MONTPELLIER EST - MILLENAIRE - PARC D'ATELIERS TECHNOLOGIQUES 11 - A LOUER
A louer, 4 lots de bureaux en RDC et R+1 du bâtiment PAT 11, à partir de 91 m² jusqu'à 261 m².
Ces bureaux très lumineux sont tous dotés de la climatisation réversible et ont été rénovés récemment (murs repeints et nouvelle moquette pour le lot de 261 m²).
L'immeuble est très calme et proche de toutes commodités (commerces, restauration, services). Les sanitaires sont situés en parties communes.
De nombreuses places de parking en foisonnement sont accessibles devant l'immeuble, l'accès au parking est sécurisé par un badge.
DISPONIBILITES :
LOT R+1 261 m² : Décembre 2025
Autres lots : Février 2026
PARC DU MILLENAIRE
Le Parc du Millénaire, le plus grand pôle tertiaire de Montpellier, regroupe 840 entreprises et 6.000 salariés sur une surface de plus de 110 hectares. C'est un parc très dynamique, avec toutes typologies d'entreprises (sièges sociaux, PME/TPE).
D'autres zones d'activités sont situées à proximité (Parcs Eurêka, Mermoz et Hippocrate) ce qui renforce l'activité économique et facilite les partenariats professionnels.
Il bénéficie d'une desserte en transport idéale, à quelques minutes de l'autoroute A9 et A709, du tramway ligne 1 et de nombreux bus.
N'hésitez pas à nous contacter pour plus de renseignements ou pour convenir d'une visite.
ACCESSIBILITES :
Bus au pied de l'immeuble
Bus Tram Ligne A à 10 minutes à pied
Tramway Ligne 1 à 10 minutes à pied
Gare Saint-Roch à 15 minutes
Gare Sud de France à 9 minutes
A9/A709 à 4 minutes
Aéroport de Montpellier à 10 minutes
Services & prestations
Aménagements
-
Aménagement des bureaux : Cloisonnés/Ouverts
-
Sanitaires : 4 Parties communes
Equipements
-
Climatisation : Réversible
-
Distribution climatisation : Ventilo convecteur en plafonnier
-
Eclairage Bureaux : Luminaires encastrés
-
Plinthes techniques périphériques
-
Production climatisation : Autonome
-
Sol bureaux : Dls.thermoplastiques Imitation parquet
Prestations de service
-
Parking : Libre
-
Sécurité : Interphone
Type / Etat du bâtiment
-
Etat de l'immeuble : Etat d'usage
-
Etat des locaux : Etat d'usage
Informations complémentaires
-
Reprographie sur site
-
Commerces et services à proximité










