


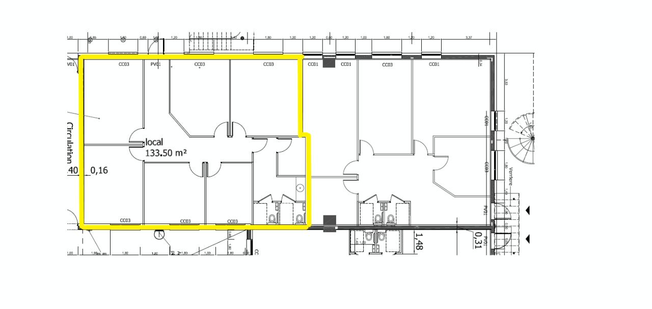
Location Bureau 134 m²
45160 Olivet
134 m²
142 €
HT/HC/m²/an
Disponibilité : Immédiate

Severine PRO
Description
SUD LOIRE - OLIVET - LES AULNAIES
BUREAUX À LOUER RDC
BNP Paribas Real Estate vous propose à la location une surface en RDC de 134 m² au sein d'un immeuble en copropriété. Plateau en RDC aménagé en espaces ouverts et fermé, idéal pour s'adapter selon les différents besoins. Le bien dispose de 5 places de parkings avec ce lot.
Climatisation réversible et plinthes techniques périphériques.
Sécurité optimale avec un contrôle d'accès.
Sanitaires privatifs.
Accessibilité et environnement
Accès rapide depuis les autoroutes A10 et A71, et à seulement 5 minutes de la RD 20.20
À 200 m d'un arrêt de bus, nombreux commerces et loisirs à proximité pour vos collaborateurs.
Disponibilité : Immédiate.
Ne manquez pas cette opportunité unique de concrétiser vos projets immobiliers sur la métropole d'Orléans.
Contactez BNP PARIBAS REAL ESTATE dès aujourd'hui pour organiser une visite !
Services & prestations
Aménagements
-
Accès Pers. Mobilité Réduite : Au RDC et ascenseur pour accès 1 étage
-
Aménagement des bureaux : Cloisonnés/Ouverts
-
Sanitaires : Privatifs
Equipements
-
Ascenseurs
-
Climatisation : Réversible
-
Eclairage Bureaux : Luminaires encastrés néons
-
Faux plafond : Dal. fibres minéral.
-
Plinthes techniques périphériques
-
Revêtement mural : Toile de verre
-
Sol bureaux : Dls.thermoplastiques
Prestations de service
-
Parking
-
Sécurité : Contrôle d'accès relié à une centrale
Type / Etat du bâtiment
-
Etat de l'immeuble : Etat d'usage
-
Etat des locaux : Etat d'usage
-
Immeuble copropriété
Informations complémentaires
-
Sol Bureaux : carrelage










