




2 Route de Bergues
59210 Coudekerque-Branche
3 897 m²
Divisible dès 645 m²
à partir de 165 €
HT/HC/m²/an
Disponibilité : 01/09/2027

Etienne DARTOIS
Description
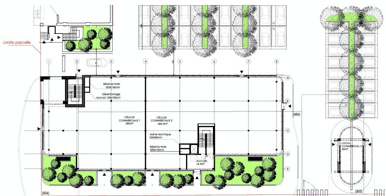
Bureaux à louer à Coudekerque-Branche - secteur DUNKERQUE
BNPPRE vous propose des surfaces de bureaux à la location, au sein du parc d’activités CREANOR à Coudekerque-Branche.
Nous vous proposons à la location des espaces de bureaux neufs situés à Coudekerque Branche, sur l'axe reliant l'A16 au centre ville de Dunkerque.
Ce bâtiment se situe sur la route de Bergues à proximité directe de l'autoroute A16, de la Gare de Dunkerque (1 km), du port de Dunkerque et de commerces (hypermarché Cora, supermarchés Aldi et Intermarché à proximité directe).
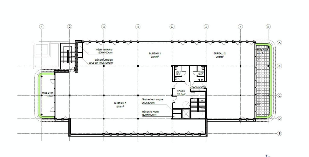
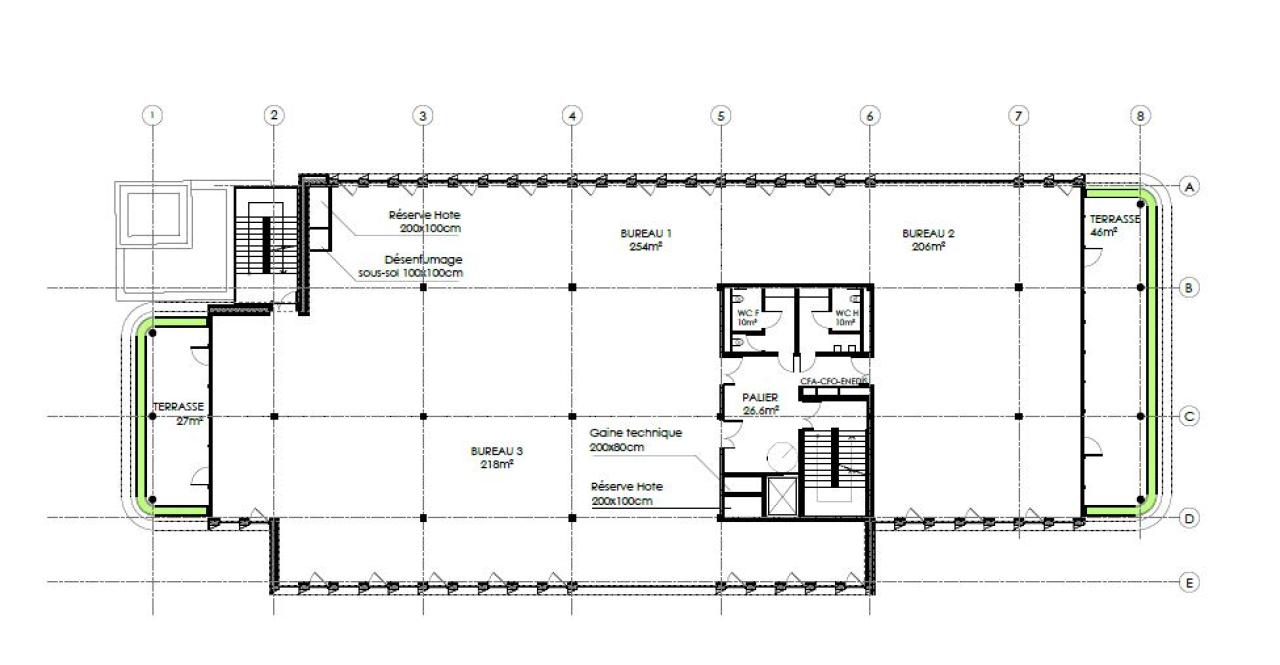
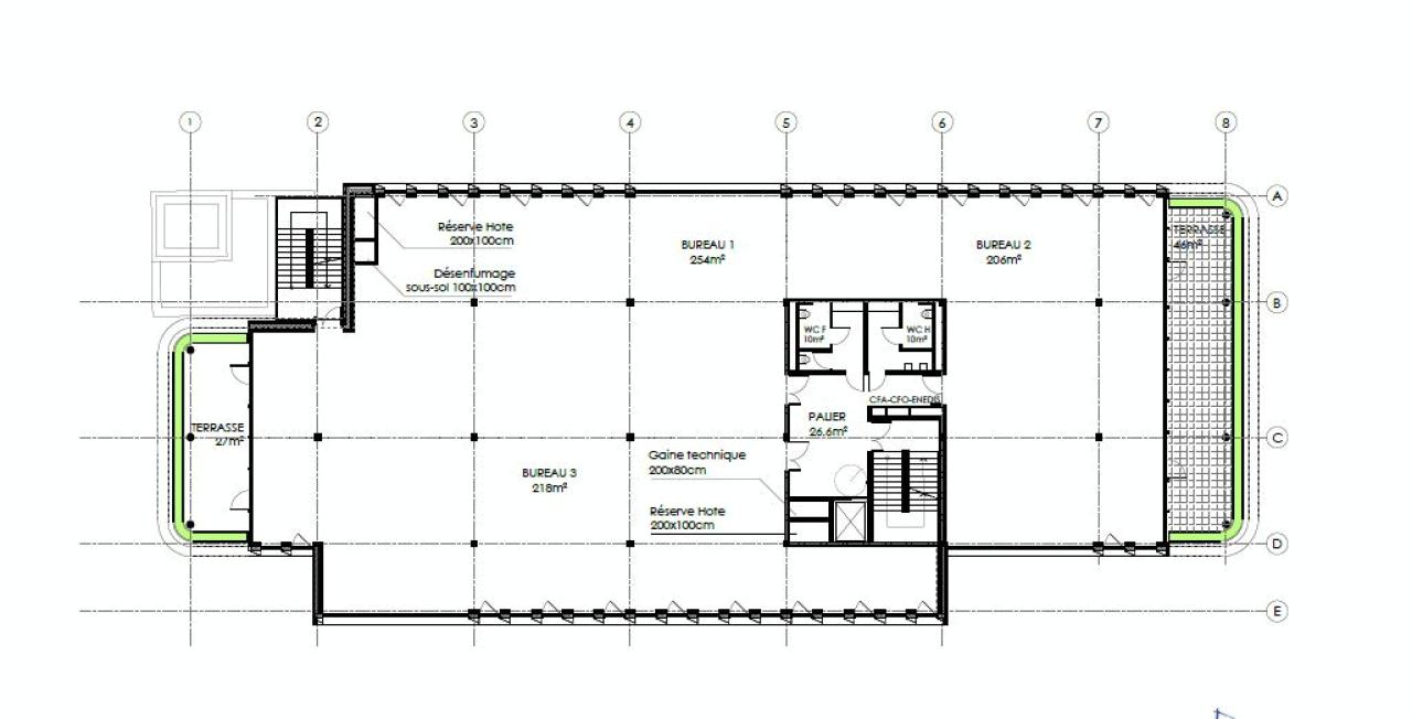
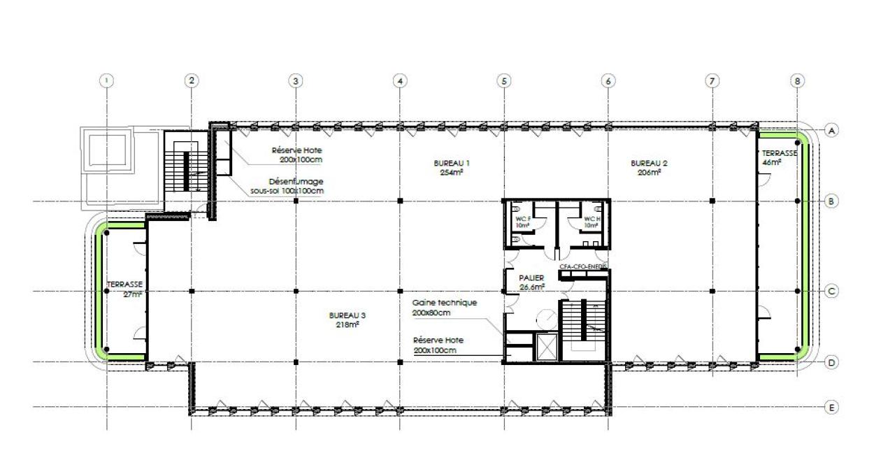
Il proposera des plateaux lumineux avec des terrasses à chaque étage.
Accessibilité :
- Gare de Dunkerque à 1 km
- A16 à 1 km
- Bus arrêt "Jeu de mail" à 400 m
Caractéristiques :
Immeuble neuf
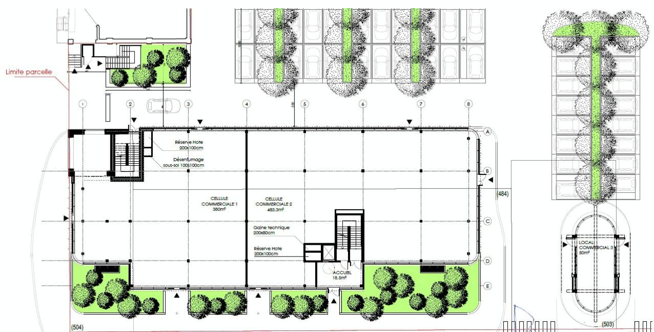
Places de stationnement en sous-sol,
Bâtiment bas carbone conforme RE 2020
Plateaux livré en base paysagère (hors RDC)
Plateaux lumineux avec de grandes façades vitrées
Raccordement fibre
Entrée, parking et local vélo sécurisés par badges et clés (et en sous-sol)
Balcons/Terrasses à tous les niveaux
Cellules en RDC classées ERP 5
Climatisation 3 tubes
Toutes nos offres de bureaux sur https://www.bnppre.fr/bureau/nord-59/










