




43 Rue Caumartin
59140 Dunkerque
340 m²
750 000 €
HT/HD
Disponibilité : Immédiate

Etienne DARTOIS
Description
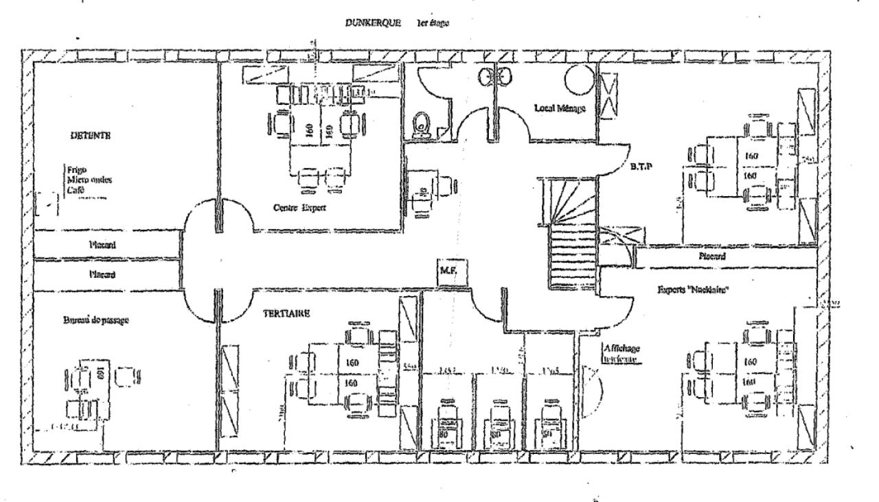
Bureaux en plein centre de Dunkerque - à louer ou à vendre - locaux aménagés avec espaces de stockage et garage
BNP Paribas Real Estate vous propose, à la location ou à la vente, un bâtiment indépendant idéalement situé en hypercentre de Dunkerque.
Nous vous proposons des locaux en plein coeur de Dunkerque, idéalement situés à proximité des transports en commun, avec un accès immédiat aux services et commerces du centre-ville.
Prestations :
Bâtiment indépendant
Locaux aménagés : open-space, bureaux, salle de réunion
Espace de stockage
Garage pouvant accueillir jusqu'à 10 véhicules
Services et commerces du centre-ville à 2 pas du bâtiment
Accessibilité :
Gare de Dunkerque à 900m
Espace DK'BUS à 900m
Axes autoroutiers (A16 et A25) à proximité
Disponibilité : immédiate
Toutes nos offres sur https://www.bnppre.fr/bureau/nord-59/
Services & prestations
Aménagements
-
Aménagement des bureaux : Bureaux aménagés : open-space, bureaux, salle de réunion
Equipements
-
Faux plafond : Faux plafond
-
Sol bureaux : Moquette Dalle moquette
-
Source chauffage : Electrique Convecteur électrique
Informations complémentaires
-
Espace de stockage et garage










