




Rue du Pic au Vent
59810 Lesquin
599 m²
Divisible dès 88 m²
à partir de 159 €
HT/HC/m²/an
Disponibilité : Immédiate

Camille PARISIS
Description
A LOUER CELLULES DE BUREAUX
PARC VENDOME
LESQUIN
BNPPRE vous propose à la location 3 espaces de bureaux situé à Lesquin, au cœur du CRT 1, PARC VENDOME.
ACCESSIBILITE :
Accès rapide à l'aéroport Lille-Lesquin (navettes et accès routier depuis d'A1)
Connexion directs aux grands axes routiers et autoroutiers
Gare SNCF de Lesquin à proximité
PRESTATIONS :
Ensemble tertiaire implanté rue du Pic au Vent à Lesquin
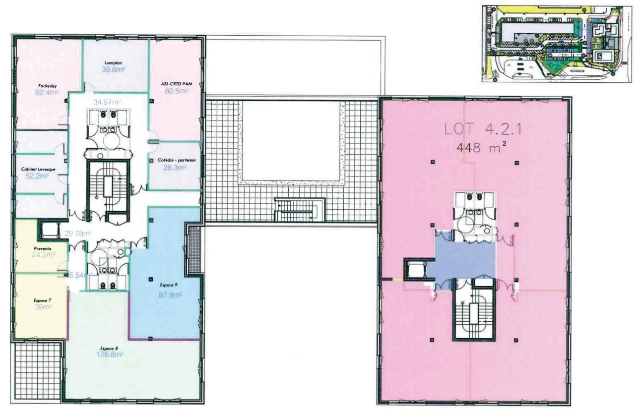
3 lots de bureaux disponibles à partir de 88 m²
Parkings privatifs attribués à chaque cellule
Localisation au sein d'un parc d'activité de référence
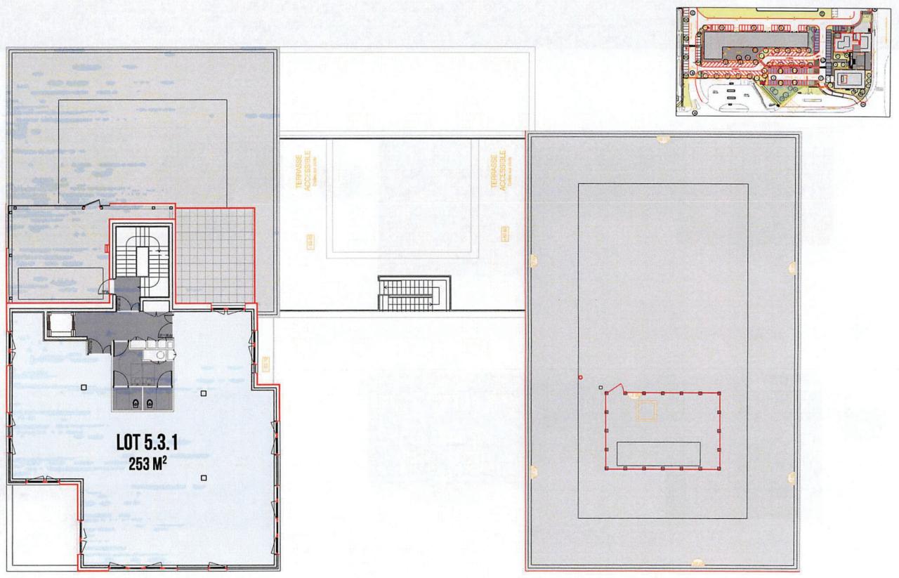
SURACES DISPONIBLES :
R+1 : 258 m² - ratio parking : 1 place pour 20 m² - disponibilité : début 2026
R+2 : 88 m² - ratio parking : 1 place pour 22 m² - disponibilité : immédiate
- R+3 : 253 m² - ratio parking : 1 place pour 32 m² - disponibilité : Février 2026
Toutes nos offres de bureaux sur https://www.bnppre.fr/bureau/nord-59/
Services & prestations
Aménagements
-
Accès Pers. Mobilité Réduite
Equipements
-
Climatisation
-
Eclairage Bureaux : Luminaires encastrés
Prestations de service
-
Parking : 1 place/34 m²
Extérieurs
-
Terrasses - jardins
Type / Etat du bâtiment
-
Etat des locaux : Neuf
Informations complémentaires
-
Immeuble raccordé à la fibre










