




METRONOM
2 Rue Claude Bernard
59000 Lille
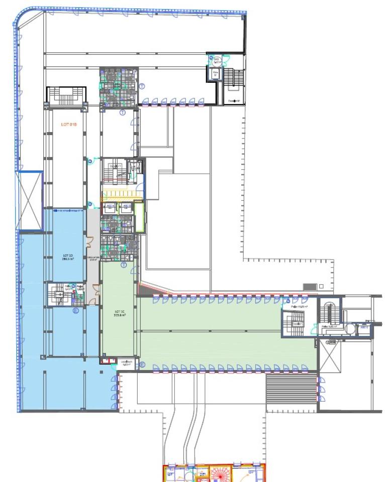
2 741 m²
Divisible dès 173 m²
à partir de 230 €
HT/HC/m²/an
Disponibilité : Immédiate

Etienne DARTOIS
Description
METRONOM LILLE - Location de bureaux
Bureaux neufs et labellisés au cœur du Quartier Saint-Sauveur de Lille à louer
Découvrez "Le METRONOM", un programme de bureaux novateur situé dans le quartier dynamique de Saint-Sauveur à Lille, à seulement 15 min des gares de Lille.
"Le METRONOM" bénéficie d'une situation géographique idéale, à proximité de nombreuses infrastructures :
Les deux lignes de métro à 10 min à pied ("Lille République Beaux-Arts" et "Lille Grand Palais")
Arrêt de bus "Jb Lebas" à 2 min à pied - Lignes 14, L1, N1
Station V'Lille au pied de l'immeuble
Boulevard Périphérique Sud, VRU, A25, A1, A22, A27
Ce projet architectural prometteur prévoit de reconstituer une partie significative de son d'ilôt, préservant la Tour déjà existante de dix étages tout en ajoutant une nouvelle construction pour une meilleure cohérence urbaine et des espaces végétalisés.
Caractéristique du "Le METRONOM" :
Immeuble de bureaux de nouvelle génération
Plateaux spacieux, terrasses, rooftoop avec une vue panoramique sur Lille
3 entrées distinctes, local vélos, douches disponibles
Situé au coeur du nouveau quartier Saint-Sauveur, ce projet offre un mélange harmonieux de logements, commerces, équipements, et un espace dédié au coworking.
Service Enexia - service premium, mis à disposition des futurs locataires, ayant pour but d'animer la vie de l'immeuble, basé sur 6 grands points :
Un service d'accueil, offrant aux invités un accueil inoubliable.
Community Management, expérience mémorable, génératrice d'émotions.
Service de conciergerie, facilitant la vie au bureau.
Service de micromobilité, simplifiant les déplacements sur Lille.
Gestion des espaces, ayant pour but de réunir facilement vos équipes.
Le "Private Club", permettant d'organiser facilement vos différents évènements.
Conditions financières :
Loyers bureaux : 230 à 250 HT/HC/m²/an
Loyers parkings : 1 450 HT/HC/place/an
Provision pour charges : estimation à 47 HT/m²/an comprenant assurance, honoraires de gestion technique, vitrerie, espaces verts, fluides en parties communes, et maintenance technique du bâtiment, service Enexia.
Impôt foncier : estimation à 8,31 HT/m²/an et dès 2027 estimation à 15,87 HT/m²/an
Disponibilité : Immédiate
Vous souhaitez trouver des espaces de bureaux, un plateau ou un local professionnel dans la métropole lilloise/ Lille ? Nous vous proposons une large gamme d'offre de location et de vente dans le Nord, adaptées aux besoins de votre entreprise. Consultez nos surfaces disponibles et choisissez l'unité de bureaux qui dynamisera votre activité dans le Nord-Pas-de-Calais.
Services & prestations
Aménagements
-
Accueil
-
Effectif théorique : Occupation possible de 15 % de salle de réunion par lot (30 m3/h/personne)
-
Hall d'accueil
Equipements
-
Ascenseurs : 4 dont 1 monte-charge
-
Climatisation : Double flux
-
Distribution chauffage : Plafonniers et/ou gainables à diffusion d’air
-
Douche
-
Fenêtres : Grandes baies vitrées
-
Plinthes techniques périphériques
-
Source chauffage : Pompes à chaleur 3 tubes système VRV
Hauteurs
-
Hauteur sous-plafond : 2,30 mètre(s) (sanitaires, 2,50 en RDC), 2,70 mètre(s) (plateaux, hors retombée de poutres), 3,40 mètre(s) (Hall côté Claude Bernard)
Prestations de service
-
Parking : 4 prises pour les parcs à vélos, Prise simple (3 kVa) par place de stationnement (62 au total) / 2 bornes de recharge rapide
-
Restauration : Brasserie en RDC
Extérieurs
-
Terrasses - jardins : Et Rooftop
Normes, Certifications et Labels
-
Catégorie ERP : 5 RDC, R+1, R+9
-
Certification : BREEAM
Type / Etat du bâtiment
-
Etat de l'immeuble : Neuf
-
Etat des locaux : Neuf
Informations complémentaires
-
Plafonds béton apparent avec baffles acoustiques










